Low-maintenance, energy-efficient family home with large top-floor bedroom and private garden.
Three-storey end-terrace new build with energy-efficient features
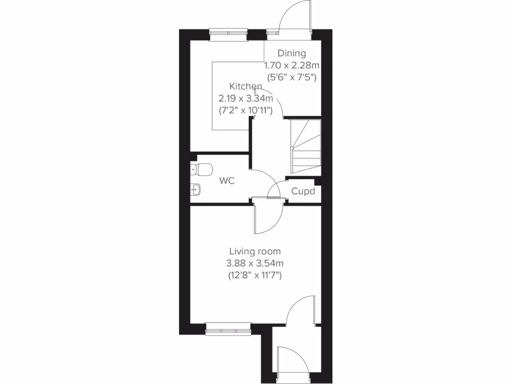
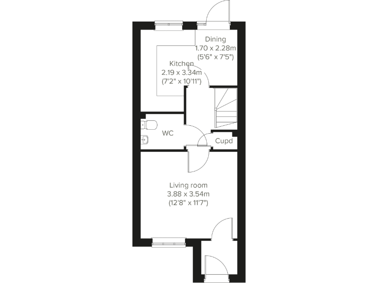
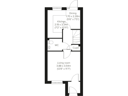
This three-bedroom, three-storey end-of-terrace new build on Staynor Link offers practical family living with contemporary finishes and energy-efficient features. The layout places the living room and kitchen/diner on the ground floor with direct garden access, useful for everyday family routines and indoor-outdoor flow.
Upstairs are two well-proportioned bedrooms and a single bathroom; the top-floor principal bedroom is notably large and includes a dress area, making it a flexible teenage retreat, nursery or home office. The house includes a downstairs WC and three handy storage cupboards to keep clutter under control.
Outside, the property has an allocated off-street parking space and a substantial plot with a garden — rare for a modern terrace. Local amenities include a Good-rated primary school on site, other highly rated schools nearby and easy access to leisure facilities, making this location particularly convenient for families.
Practical considerations: there is only one full bathroom, room dimensions are generally small to medium, and council tax banding will be confirmed post-occupation. Overall this freehold home suits buyers seeking a modern, low-maintenance family house with future adaptability in a well-served area.
3 bedroom end of terrace house for sale in Staynor Hall
Staynor Link
Selby
YO8 8GE, YO8 — £225,000 • 3 bed • 1 bath • 1751 ft²
3 bedroom terraced house for sale in Staynor Hall
Staynor Link
Selby
YO8 8GE, YO8 — £225,000 • 3 bed • 1 bath • 1307 ft²
3 bedroom house for sale in Staynor Hall
Staynor Link
Selby
YO8 8GE, YO8 — £217,500 • 3 bed • 1 bath • 654 ft²
2 bedroom end of terrace house for sale in Staynor Hall
Staynor Link
Selby
YO8 8GE, YO8 — £232,500 • 2 bed • 1 bath • 564 ft²
3 bedroom detached house for sale in Staynor Hall
Staynor Link
Selby
YO8 8GE, YO8 — £255,000 • 3 bed • 1 bath • 607 ft²
2 bedroom terraced house for sale in Staynor Hall
Staynor Link
Selby
YO8 8GE, YO8 — £225,000 • 2 bed • 1 bath • 1125 ft²






























































