Energy-efficient three-bed townhouse with large top-floor bedroom and garden..
Three-storey new-build townhouse with flexible living spaces
Top-floor principal bedroom with separate dress area/teenage hideaway
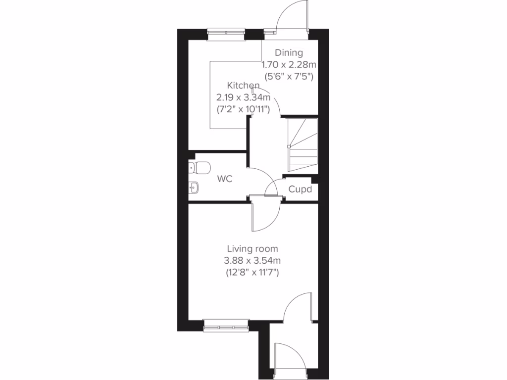
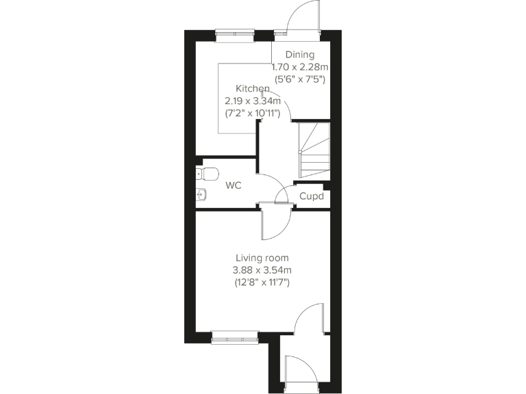
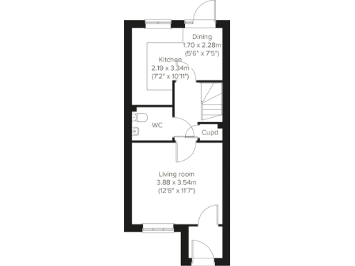
Kitchen/diner with direct access to a very large rear garden
Allocated off-street parking; freehold tenure
Energy-efficient construction and fast broadband
Single family bathroom only; busy households may need extra planning
Council tax banding not yet available until post-occupation
Overall footprint ~1,307 sq ft; approx 13 rooms including storage
Set over three floors, this freehold terraced townhouse offers flexible family living in Staynor Link. The top-floor principal bedroom is unusually large and includes a separate dress area — useful as a teenage retreat, play space or home office. Ground-floor living room and a kitchen/diner with direct garden access suit everyday family life and entertaining.
As a new-build, energy-efficient home it benefits from modern finishes, integrated kitchen appliances and fast broadband — practical for working from home. The property has allocated off-street parking and sits on a very large plot with an outdoor garden and nearby playgrounds and leisure facilities.
Practical points to note: there is a single family bathroom and a downstairs WC only, which may require planning for busy mornings. Council tax banding is not yet available until after occupation. Room sizes are compact in parts (kitchen/dining measured separately), so buyers seeking very large, open-plan ground floors should check measurements.
The location is family-friendly with an Ofsted-rated Good primary (Staynor Hall Primary Academy) and an Outstanding secondary (Brayton Academy) within easy reach. Flood risk is very low and the area offers average crime levels and fast broadband — attractive for everyday convenience and long-term running costs.
3 bedroom end of terrace house for sale in Staynor Hall
Staynor Link
Selby
YO8 8GE, YO8 — £225,000 • 3 bed • 1 bath • 1751 ft²
3 bedroom end of terrace house for sale in Staynor Hall
Staynor Link
Selby
YO8 8GE, YO8 — £227,500 • 3 bed • 1 bath • 1307 ft²
3 bedroom house for sale in Staynor Hall
Staynor Link
Selby
YO8 8GE, YO8 — £217,500 • 3 bed • 1 bath • 654 ft²
3 bedroom detached house for sale in Staynor Hall
Staynor Link
Selby
YO8 8GE, YO8 — £255,000 • 3 bed • 1 bath • 607 ft²
3 bedroom semi-detached house for sale in Staynor Hall
Staynor Link
Selby
YO8 8GE, YO8 — £237,500 • 3 bed • 1 bath • 503 ft²
3 bedroom house for sale in Staynor Hall
Staynor Link
Selby
YO8 8GE, YO8 — £222,500 • 3 bed • 1 bath • 654 ft²














































