Quiet sloping plot with outline consent for a starter self-build close to village amenities.
Outline planning permission for 2–3 bedroom detached home (Buckinghamshire 22/03762/AOP)
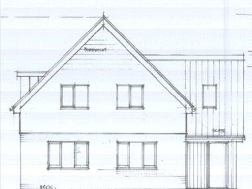
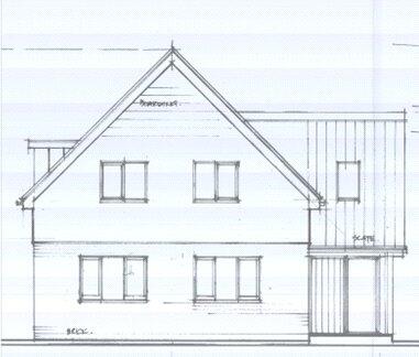
A quietly situated building plot in the village of Akeley with outline planning permission for a 2–3 bedroom detached home. The site rises from front to rear, offers semi-rural outlooks and a private garden area — a straightforward infill opportunity for a first home or self-build. Services and detailed designs remain subject to reserved matters approval.
The plot is freehold and benefits from fast broadband, excellent mobile signal and very low local crime. An existing garage/outbuilding sits on the site but is derelict and will need clearance or full repair before use. Buyers should expect site clearance and landscaping as part of development costs.
Important practical points: purchasers must apply for detailed planning (reserved matters) and make their own enquiries about services and connections. The land is sold subject to covenants, and offers are invited by sealed bid by the stated closing date. These factors suit a buyer comfortable managing a small build project or engaging professionals to deliver a personalised new home.
Plot for sale in Land At Moreton Road, Buckingham, Buckinghamshire, MK18 — £390,000 • 4 bed • 3 bath
Plot for sale in Land At Moreton Road, Buckingham, Buckinghamshire, MK18 — £390,000 • 3 bed • 3 bath • 1109 ft²
Plot for sale in Land At Moreton Road, Buckingham, Buckinghamshire, MK18 — £345,000 • 4 bed • 2 bath
3 bedroom detached house for sale in Southall, Maids Moreton, Buckingham, MK18 1QB, MK18 — £250,000 • 3 bed • 3 bath • 1668 ft²
Land for sale in Mount Pleasant Close, Buckingham, MK18 — £400,000 • 4 bed • 3 bath • 6157 ft²
Plot for sale in Land At Moreton Road, Buckingham, Buckinghamshire, MK18 — £345,000 • 4 bed • 2 bath


















