Rare freehold plot with approved plans for a four-bedroom family home.
Freehold self-build plot with all services connected to site
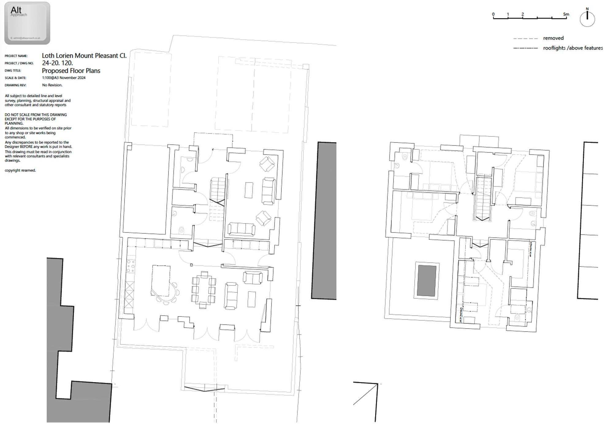
Full planning permission for a 4-bed, 3-bath, 186 m2 detached house
Generous level south-facing 572 m2 plot with good frontage and rear privacy
Within Royal Latin School catchment; short walk to schools and amenities
Integral garage and driveway parking included in plans
Broadband speeds reported as slow — may need upgrades for modern use
Local recorded crime levels higher than average; investigate security
Service charge £180 per year (below average)
This rare freehold self-build plot sits on a mature, level 572 m2 (approx 1/8 acre) corner in a quiet cul-de-sac, offered with all services to site. Full planning permission (Buckinghamshire Council ref: 24/03569/APP) is in place to replace the existing bungalow with a 186 m2 (2,002 sq ft) two-storey, four-bedroom family house — ideal for buyers wanting turnkey consent and scope to personalise finishes.
The plot benefits from a south-facing aspect and pleasant front elevation views towards Stowe and the distant countryside. The approved design provides generous living space, three bathrooms and integral garage parking, making it well suited to family life. It lies within the Royal Latin School catchment and close to primary and secondary schools, green spaces and local amenities.
Practical points to note: broadband speeds in the area are reported as slow and local recorded crime levels are higher than average, which some buyers may want to investigate further. A modest service charge of £180 applies. The planning permission requires materials and certain conditions to be met, giving flexibility but also obligations for build specification and approvals.
This opportunity will suit experienced self-builders, developers or growing families seeking a bespoke new home on a substantial, well-located plot. Full plans are available on request; buyers should make their own enquiries regarding build costs, connectivity upgrades and any local security considerations.
Plot for sale in Land At Moreton Road, Buckingham, Buckinghamshire, MK18 — £345,000 • 4 bed • 2 bath
Plot for sale in Land At Moreton Road, Buckingham, Buckinghamshire, MK18 — £390,000 • 4 bed • 3 bath
Plot for sale in Land At Moreton Road, Buckingham, Buckinghamshire, MK18 — £390,000 • 3 bed • 3 bath • 1109 ft²
Plot for sale in Land At Moreton Road, Buckingham, Buckinghamshire, MK18 — £345,000 • 4 bed • 2 bath
3 bedroom detached house for sale in Southall, Maids Moreton, Buckingham, MK18 1QB, MK18 — £250,000 • 3 bed • 3 bath • 1668 ft²
Plot for sale in The Avenue, Whitfield, Brackley, Northamptonshire, NN13 — £425,000 • 1 bed • 1 bath • 4648 ft²


















































































