Move-in ready with loft suite and sunny garden.
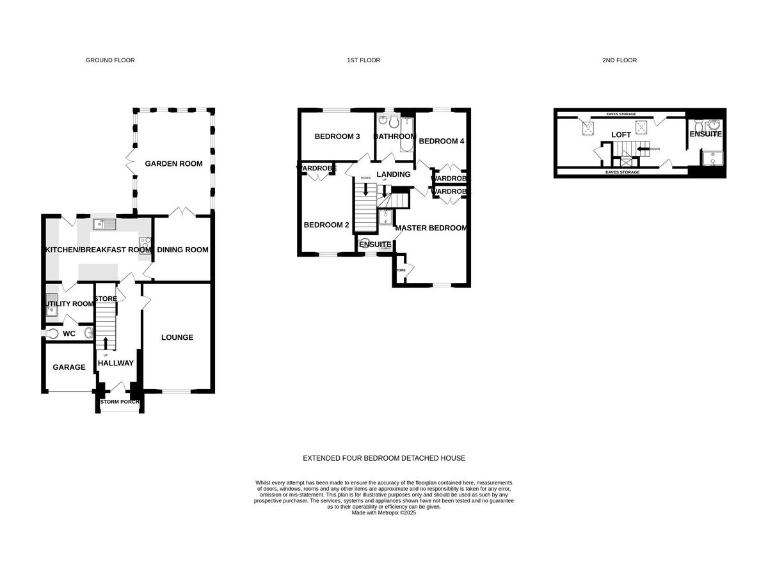
Four double bedrooms plus loft suite with en-suite and flexible use
Large year-round sun room overlooking a private, mature garden
Off-street parking for multiple cars and detached garage
Newly renovated — largely move-in ready, modern finishes throughout
Within Y Pant School comprehensive catchment — strong local schooling
Mains gas boiler and radiators; double glazing (install date unknown)
Freehold, no flood risk; very low local crime rate
Council tax level described as expensive; area has higher deprivation
Bright, well-presented detached house offering flexible living across three reception rooms and a loft conversion with en-suite. The large sun room overlooks a private, mature garden and the plot provides off-street parking for multiple cars — practical for family life and visitors.
Four double bedrooms and three bathrooms give room for a growing household or multi-generational living, while the recent renovation means the property is largely move-in ready. The house benefits from mains gas heating, double glazing and fast broadband; there is no flood risk and the tenure is freehold.
Location supports family needs: within the Y Pant School catchment and close to Pontyclun High Street amenities and transport links into Cardiff. Note the property sits in a ward identified with higher area deprivation and council tax is described as expensive — factor running costs into your budget despite the low crime and excellent mobile signal.
4 bedroom detached house for sale in Rowan Tree Lane, Miskin, Pontyclun, CF72 8SF, CF72 — £460,000 • 4 bed • 1 bath • 1443 ft²
4 bedroom detached house for sale in Windsor Drive, Miskin, Pontyclun, Rhondda Cynon Taff. CF72 8SH, CF72 — £485,000 • 4 bed • 2 bath
5 bedroom detached house for sale in Crystal Wood Drive, Miskin, Pontyclun, CF72 — £575,000 • 5 bed • 3 bath • 1959 ft²
4 bedroom detached house for sale in Shadow Wood Drive, Miskin, Pontyclun, Rhondda Cynon Taff. CF72 8SX, CF72 — £550,000 • 4 bed • 2 bath
3 bedroom detached house for sale in Newmill Gardens, Miskin, Pontyclun, Rhondda Cynon Taff. CF72 8RX, CF72 — £352,000 • 3 bed • 1 bath • 774 ft²
4 bedroom detached house for sale in Beechlea Close, Miskin, CF72 — £535,000 • 4 bed • 3 bath • 1822 ft²










































































































































