Chain-free three-bed home with garage, parking and quick links to Oxford.
Chain-free three-bedroom end-of-terrace, freehold
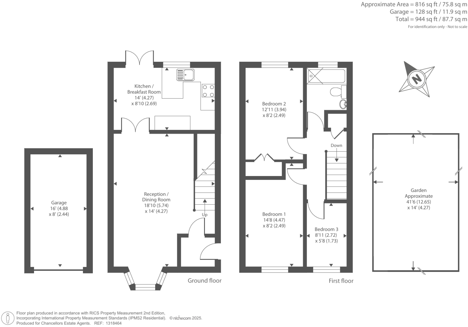
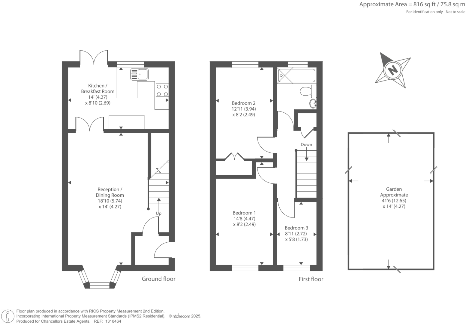
This chain-free three-bedroom end-of-terrace offers straightforward living with practical extras: a private garden, single garage and driveway parking. The layout is traditional and well-proportioned, making it a sensible purchase for a first home or a buy-to-let addition. The property is freehold and around 944 sq ft, built in the late 1960s–1970s and featuring double glazing and gas central heating.
Inside you'll find a bright living/dining room, a kitchen with useful storage, and three bedrooms served by a single family bathroom. The plot is small and low-maintenance, and the house is ready to occupy with potential to update kitchens, bathrooms or decoration to add value. Broadband speeds are fast and mobile signal is excellent, so the home suits modern working-from-home needs.
The location is convenient for local schools, shops and bus links into Oxford, but note the immediate area scores high for crime and is classed as relatively deprived. Buyers should weigh the good transport and parking against local social challenges. Overall this is a practical, affordable freehold property with clear potential for cosmetic improvement and rental or owner-occupier use.
3 bedroom end of terrace house for sale in St. Nicholas Road, Oxford, OX4 — £379,995 • 3 bed • 1 bath • 888 ft²
3 bedroom end of terrace house for sale in Giles Road, Oxford, OX4 — £375,000 • 3 bed • 1 bath • 937 ft²
3 bedroom terraced house for sale in Priory Road, Oxford, OX4 — £350,000 • 3 bed • 1 bath • 862 ft²
2 bedroom end of terrace house for sale in Lakefield Road, Oxford, OX4 — £325,000 • 2 bed • 1 bath • 694 ft²
3 bedroom semi-detached house for sale in Minchery Road, Oxford, OX4 — £345,000 • 3 bed • 1 bath • 1106 ft²
3 bedroom terraced house for sale in Littlemore, Oxford, OX4 — £300,000 • 3 bed • 1 bath • 826 ft²






























































































































