Chain-free two-bed end terrace with sunny private garden and commuter links.
Chain-free end-of-terrace two-bedroom house, approx. 845 sq ft
South-west facing rear garden; good for evening sun and entertaining
About 0.6 miles to Grove Park station; strong public transport links
Freehold tenure; council tax Band C (Lewisham)
Built late 1960s–70s; double glazing installed before 2002
Cavity walls likely uninsulated — energy upgrades recommended
Small plot and modest internal space for a small family or couple
Located in a very deprived area; consider local social-economic factors
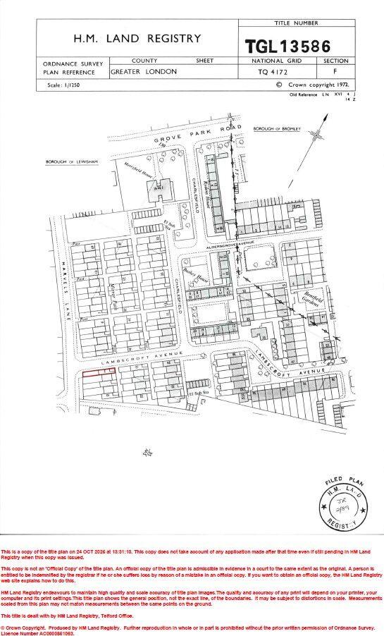
This chain-free, end-of-terrace two-bedroom house offers a compact, well-lit layout ideal for first-time buyers or buy-to-let investors. The ground floor features a separate kitchen and a long reception room with French doors that open onto a south-west facing rear garden — a useful outdoor space for evening sun and casual entertaining. The property is freehold and extends to approximately 845 sq ft.
Built in the late 1960s–70s, the house is generally well maintained but shows signs of period construction: double glazing was installed before 2002 and external cavity walls are assumed to have no added insulation. Practical upgrades such as improved insulation, modern heating controls or cosmetic modernisation would increase comfort and long-term energy efficiency.
Location is convenient for commuters and families: Grove Park station is about 0.6 miles away, frequent bus routes serve the area, and Chinbrook Meadows provides sizeable green space and sports facilities within walking distance. Local schools with good Ofsted ratings are nearby, making this a sensible purchase for those needing straightforward access to amenities.
Buyers should note the immediate area records higher levels of deprivation, the plot is small, and there is potential maintenance and modernisation work to consider. Overall, the property offers solid space and a sunny garden at an accessible price point for entry-level purchasers or investors seeking a let-ready home after modest updating.
2 bedroom end of terrace house for sale in Lambscroft Avenue, Mottingham, SE9 — £375,000 • 2 bed • 1 bath • 831 ft²
2 bedroom terraced house for sale in Castleton Road, Eltham, SE9 — £400,000 • 2 bed • 1 bath • 919 ft²
2 bedroom end of terrace house for sale in Shroffold Road, Bromley, BR1 — £400,000 • 2 bed • 1 bath • 808 ft²
3 bedroom semi-detached house for sale in Sibthorpe Road, London, SE12 — £400,000 • 3 bed • 1 bath • 770 ft²
2 bedroom terraced house for sale in Rangefield Road, Bromley, Lewisham, BR1 — £400,000 • 2 bed • 1 bath • 647 ft²
2 bedroom terraced house for sale in Glenbow Road, BROMLEY, Kent, BR1 — £400,000 • 2 bed • 1 bath • 779 ft²










































































