Private large garden, excellent schools and generous living for growing families.
Five double bedrooms including two en-suites and walk-in wardrobe
South-westerly private garden with multiple entertaining areas
Spacious open-plan living/dining with log-burning stove
Stylish breakfast kitchen with central island and walk-in pantry
Integral double garage, utility room and guest cloakroom
Built 1950–1966 — some services may be original and need updating
EPC C and council tax noted as quite expensive
Double glazing install date unknown; mobile signal average
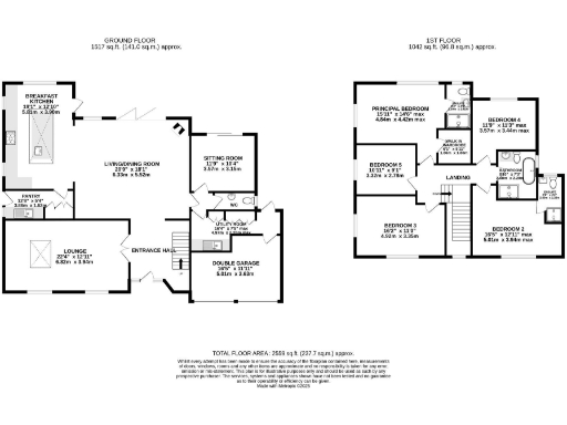
This immaculately presented five-bedroom detached house balances elegant living with everyday practicality on a large, mature plot in a highly regarded Knutsford location. Ground floor living is generous and well-planned: a large lounge, expansive open-plan living/dining room with a log-burning stove, a stylish breakfast kitchen with central island and walk-in pantry, plus a separate sitting room for quieter family moments.
The south-westerly rear garden is private and planted with mature trees, multiple seating areas and expansive lawn — excellent for afternoon and evening sun and for entertaining. Practical features include a utility room, guest cloakroom and an integral double garage, while fast broadband and a very low local crime rate suit modern family life.
Upstairs the principal suite offers an en-suite bathroom and walk-in wardrobe; four further generous bedrooms include a second en-suite and a sleek family bathroom, providing comfortable space for a large family or regular guests. The property sits on Fir Tree Avenue, near the Legh Road Conservation Area, combining a quiet, prestigious setting with good access to highly rated local schools.
Buyers should note a few practical considerations: the house was built in the 1950–1966 period so some services may be original and could require updating. The double glazing install date is unknown, the EPC rating is C, and council tax is described as quite expensive. Ground rent is low at £15 and the tenure is freehold.
4 bedroom detached house for sale in Legh Road, Knutsford, WA16 — £4,250,000 • 4 bed • 4 bath • 6531 ft²
5 bedroom detached house for sale in Ashworth Park, Knutsford, WA16 — £875,000 • 5 bed • 2 bath • 2523 ft²
5 bedroom detached house for sale in Newton Hall Lane, Mobberley, WA16 — £2,350,000 • 5 bed • 3 bath • 2545 ft²
3 bedroom house for sale in Lodge Road, Knutsford, WA16 — £450,000 • 3 bed • 1 bath • 1204 ft²
4 bedroom detached house for sale in Summers Way, Knutsford, WA16 — £700,000 • 4 bed • 3 bath • 1839 ft²
4 bedroom detached house for sale in Meadow Drive, Knutsford, WA16 — £725,000 • 4 bed • 2 bath • 1421 ft²


















































































































































