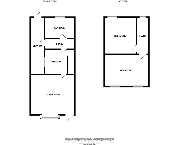
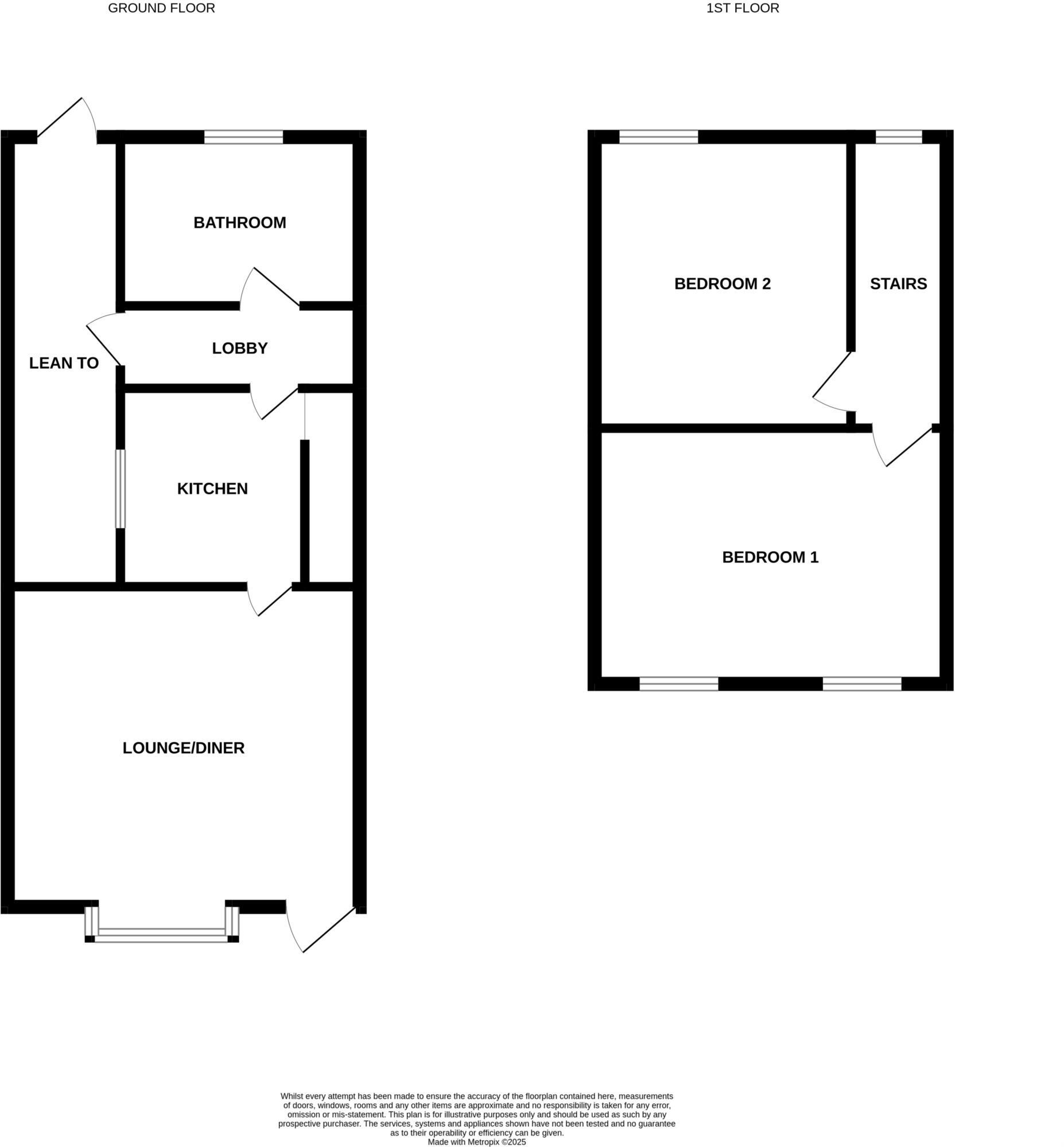
**Standout Features:**
- Two generously sized double bedrooms
- Spacious ground floor lounge
- Ground floor family bathroom
- Extended lean-to area for additional utility space
- Private rear garden
- Chain-free and ready for immediate occupation
- Excellent transport links (walking distance to Manor Park Station and Wanstead Flats)
- Affordable price at £415,000
**Concise Property Summary:**
Discover this charming Victorian terraced home tucked away in a quiet cul-de-sac in the heart of E12. This spacious residence features two well-proportioned double bedrooms, a large lounge, a family bathroom, and an extended lean-to area that adds valuable utility space. The private rear garden offers the perfect outdoor retreat for families or aspiring gardeners.
Ideal for first-time buyers and savvy investors, this property benefits from excellent transport connectivity, with quick access to Manor Park Station and the Elizabeth Line, complemented by good local amenities. While the home requires light renovation to reach its full potential, it’s chain-free and vacant, providing a fantastic opportunity to customize your living space to your taste.
Enjoy the tranquility of community living and make use of close-by green spaces such as Wanstead Flats. With council tax being economical and the ability to add value through updates, this property holds significant potential. Don’t miss out on this opportunity before it's gone!
3 bedroom terraced house for sale in Worcester Road, London, E12 — £475,000 • 3 bed • 1 bath • 576 ft²
3 bedroom terraced house for sale in Nine Acres Close, London, E12 6AU, E12 — £435,000 • 3 bed • 1 bath • 872 ft²
3 bedroom terraced house for sale in Monega Road, Manor Park, E12 6UF, E12 — £525,000 • 3 bed • 2 bath • 936 ft²
3 bedroom terraced house for sale in Harcourt Avenue, Manor Park, London, E12 — £485,000 • 3 bed • 1 bath • 1166 ft²
3 bedroom terraced house for sale in Barrington Road, Manor Park, London, E12 — £450,000 • 3 bed • 1 bath • 1015 ft²
2 bedroom flat for sale in Durham Road, Manor Park, E12 5AX, E12 — £315,000 • 2 bed • 1 bath • 463 ft²










































