PE16 6LW - 4 bed victorian detached gem in London Road, PE16 6LW

View on Property Piper

4 bedroom detached house for sale in London Road, Chatteris, PE16

Summary - London Road, Chatteris PE16 6LW

4 bed 1 bath Detached

Spacious home on almost an acre, ideal for families seeking rural character.
No forward chain — quicker sale possible
Substantial plot: approx. 3/4 acre, very private rear garden
Detached Victorian with period character and high ceilings
Conservatory opening to garden, useful additional living space
Kitchen dated (1980s) — likely needs modernization
Solid brick (pre-1900) — probable lack of wall insulation
Single family bathroom only; one ground-floor bedroom
Located in conservation area — planning restrictions likely
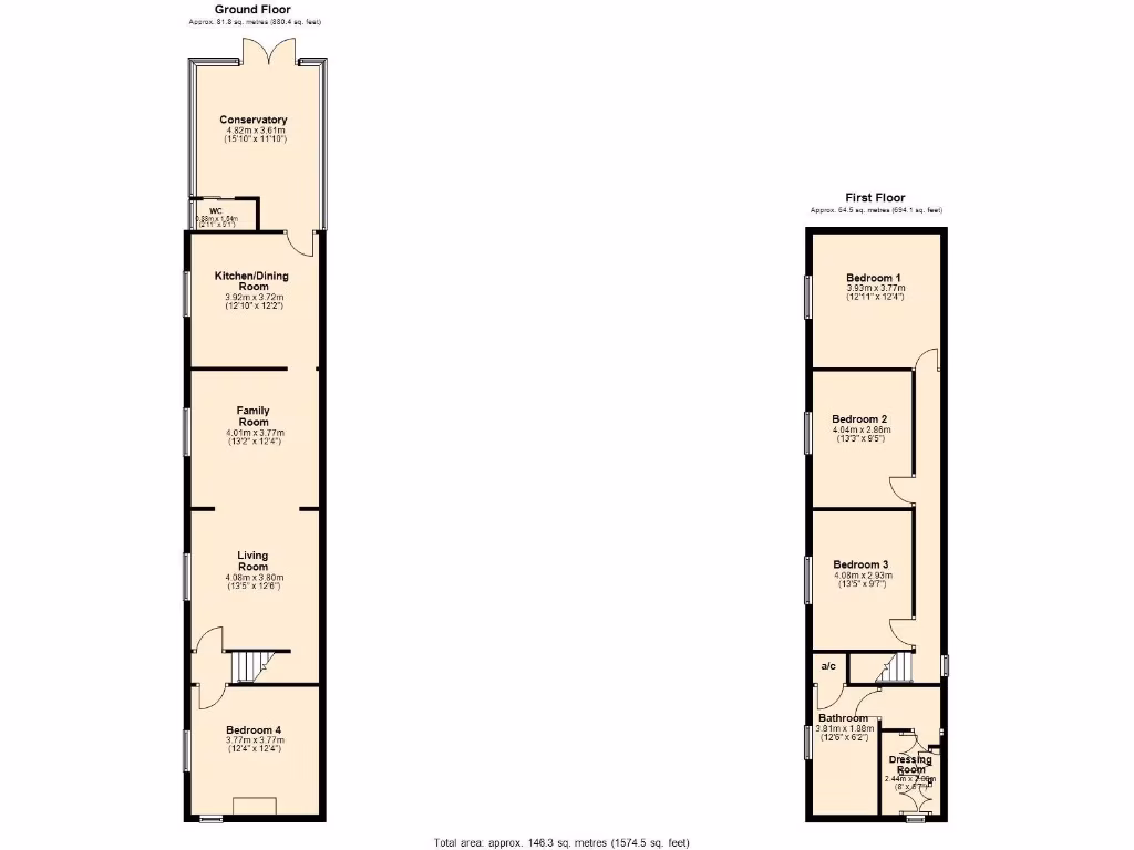
Set on an exceptional plot of approximately 3/4 of an acre, this detached Victorian house offers immediate privacy and genuine scope for improvement or extension (subject to consents). The property sits in a conservation area and combines traditional proportions with practical ground-floor living: separate living and family rooms, a kitchen/diner and a large conservatory that opens to the garden. There is no forward chain, which can speed a purchase.

Internally the house provides four bedrooms and a family bathroom, with one generous ground-floor bedroom and adaptable room layout across two floors. The building is of solid brick construction (pre-1900) with gas-fired central heating; the energy rating is D. Clear renovation potential exists — the kitchen and some fittings date from the 1980s and would benefit from modernization to improve comfort and efficiency.

Outside is the main attraction: an expansive, mature rear garden with trees and shrubs offering seclusion and amenity for families, gardeners or those seeking development potential (planning constraints may apply in the conservation area). A gravel driveway provides off-street parking and the plot’s size and position suit buyers looking for countryside character within easy reach of local schools and amenities.

Practical points to note: the property likely has solid walls without modern cavity insulation, so buyers should budget for energy upgrades. There is one bathroom and original-period features that may need preservation work. This home will suit purchasers seeking a character property with significant outside space and scope for sympathetic updating rather than a fully modern turnkey house.

Property Details

Brochure Descriptions

Image Descriptions

Floorplan Description

Rooms

Textual Property Features

Target Audience

AI Tags

Detected Visual Features

EPC Details

Nearby Schools

Nearest Bars And Restaurants

,,,,}

Nearest General Shops

,,}

Nearest Grocery shops

,,}

Nearest Supermarkets

,,}

Nearest Religious buildings

,,}

Nearest Medical buildings

,,,}

Nearest Leisure Facilities

,,,,}

Nearest Tourist attractions

,,}

Nearest Train stations

,,,,}

Nearest Bus stations and stops

,,,,}

Nearest Hotels

,,}

Tags

Local Market Stats

Similar Properties

Meta

High Res Images

Compatible Images

Low res Images

Thumbnails

Raw Images

High Res Floorplan Images

Compatible Floorplan Images

Low res Floorplan Images

FloorplanImages Thumbnail

Raw Floorplan Images