UB6 0LY - 3 bedroom end of terrace house for sale in Sudbury Heights…

View on Property Piper

3 bedroom end of terrace house for sale in Sudbury Heights Avenue, Greenford, UB6

Summary - 88 Sudbury Heights Avenue UB6 0LY

3 bed 1 bath End of Terrace

**Standout Features:**
- No upper chain; immediate availability
- Planning permission secured for conversion into two flats via double-storey side and rear extensions
- End-of-terrace layout with appealing brick façade
- Off-street parking and a spacious rear garden
- Two reception rooms create versatile living space

**Concise Property Summary:**
Seize this unique investment opportunity with this attractive three-bedroom end-of-terrace home located in the desirable Sudbury Heights area. Currently offering generous living space across two reception rooms and three bedrooms, this property is ripe for internal refurbishment, presenting a blank canvas for your vision. The approved planning permission for a double-storey side and rear extension allows you to convert it into two separate flats, maximizing rental potential in this thriving, multicultural community.

With off-street parking and a sizeable rear garden, this home combines convenience with comfort. Its prime location ensures easy access to both Sudbury Town (Piccadilly Line) and Sudbury & Harrow Stations, making it ideal for commuters. Families will appreciate the proximity to highly-rated schools such as Wembley High Technology College and local amenities, including parks and public transportation routes. This property won't stay on the market for long—don’t miss your chance to transform this house into your dream investment!

Property Details

Brochure Descriptions

Image Descriptions

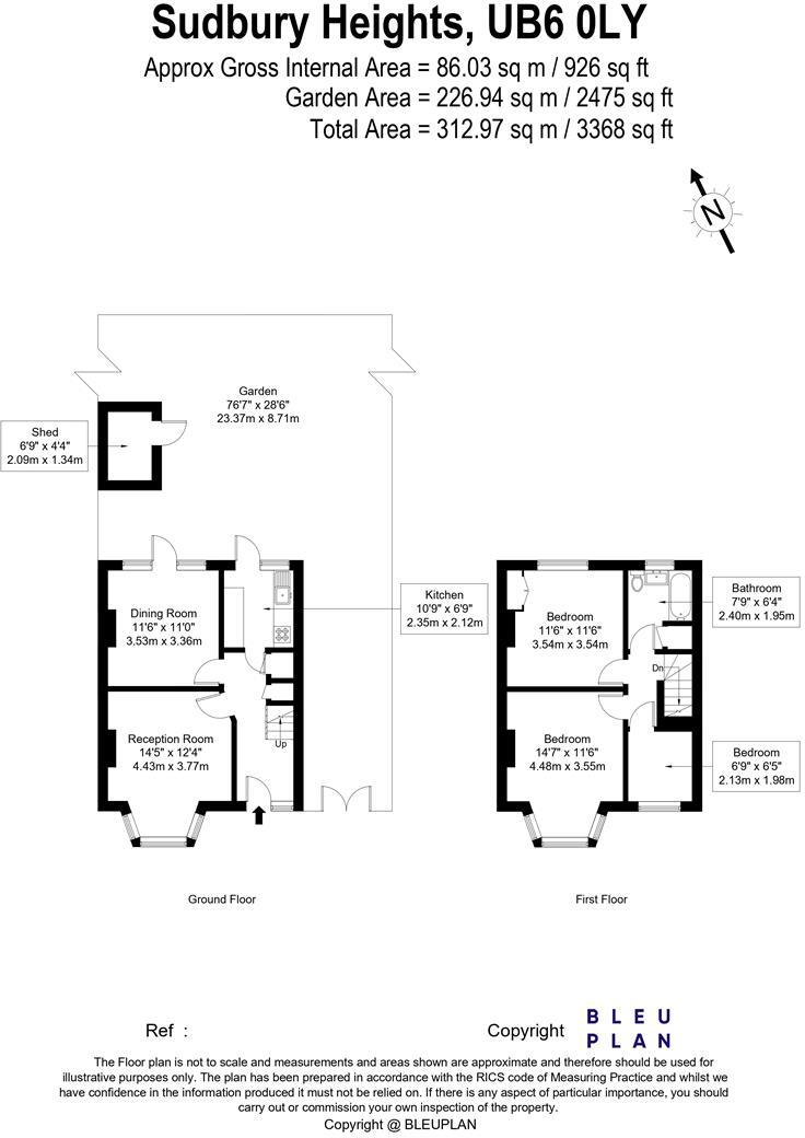
Floorplan Description

Rooms

Textual Property Features

Detected Visual Features

EPC Details

Nearby Schools

Nearest Bars And Restaurants

,,,,}

Nearest General Shops

,,}

Nearest Grocery shops

,,}

Nearest Supermarkets

,,}

Nearest Religious buildings

,,}

Nearest Medical buildings

,,,}

Nearest Airports

,}

Nearest Leisure Facilities

,,,,}

Nearest Tourist attractions

,,}

Nearest Train stations

,,,,}

Nearest Bus stations and stops

,,,,}

Nearest Hotels

,,}

Tags

Local Market Stats

AirBnB Data

Similar Properties

Meta

High Res Images

Compatible Images

Low res Images

Thumbnails

Raw Images

High Res Floorplan Images

Compatible Floorplan Images

Low res Floorplan Images

FloorplanImages Thumbnail

Raw Floorplan Images