Expansive five-bedroom residence on three-quarters of an acre with versatile living spaces.
Private gated estate in prestigious Keston Park
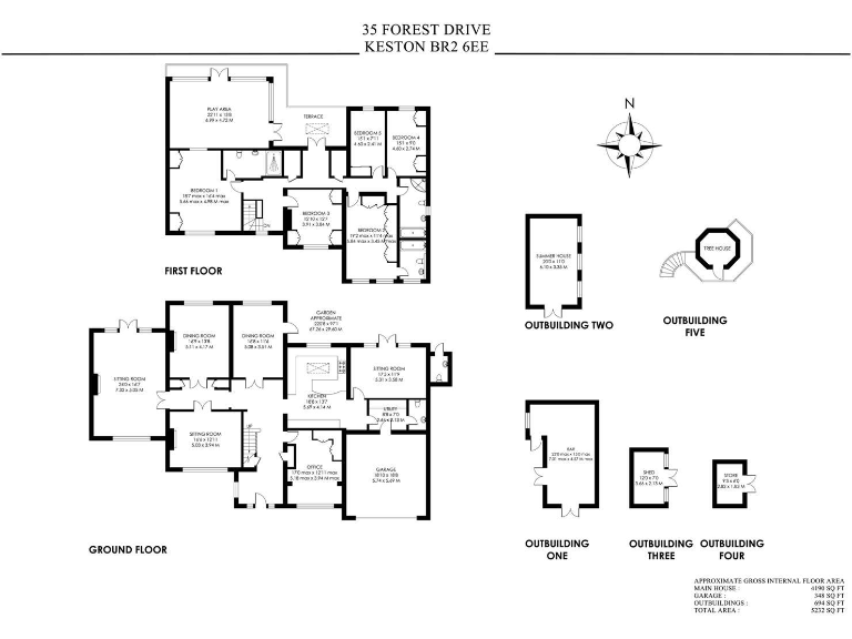
Set within the private, gated Keston Park estate, this substantial detached house occupies a highly sought-after, well-screened plot of approximately three-quarters of an acre. The property offers five double bedrooms, six reception rooms and a generous footprint (about 4,190 sq ft), delivering flexible accommodation for growing families or those needing dedicated home and entertaining spaces. Large full-height glazing and French doors at the rear connect living spaces to a broad paved terrace and extensive, level lawns with mature planting.
The house benefits from a sweeping gated driveway, separate garage/outbuilding and easy access to highly regarded local schools and excellent rail links into central London. Constructed between 1900–1929 and improved with double glazing after 2002, it provides period proportions with contemporary additions and good potential for internal reconfiguration or modernisation to suit current lifestyles.
Notable practical points: the property is on mains gas with a boiler-and-radiator system, freehold tenure, and moderate council tax. Broadband speeds in the area are reported slow, and the original solid brick walls are assumed to lack cavity insulation — further energy efficiency upgrades may be required. Overall this is a prestigious, versatile family estate offering privacy, space and long-term potential in one of Bromley’s most coveted enclaves.
6 bedroom house for sale in Forest Ridge, Keston Park, BR2 — £3,600,000 • 6 bed • 6 bath • 4700 ft²
5 bedroom detached house for sale in Forest Drive, Keston Park, Keston, Kent, BR2 — £3,500,000 • 5 bed • 3 bath • 4514 ft²
8 bedroom detached house for sale in Pine Glade, Keston Park, BR6 — £4,800,000 • 8 bed • 9 bath • 9389 ft²
6 bedroom detached house for sale in Forest Ridge, Keston, BR2 — £4,150,000 • 6 bed • 5 bath • 5500 ft²
5 bedroom detached house for sale in Heathfield Road, Keston, BR2 — £1,895,000 • 5 bed • 3 bath • 3100 ft²
4 bedroom detached house for sale in Longdon Wood, Keston, BR2 — £1,600,000 • 4 bed • 1 bath • 1711 ft²


































































































































