Spacious three-bedroom house with garage and garden in popular Bessacarr.
Three-bedroom detached family home with sun room and lounge-diner
Detached double garage plus generous driveway for off-street parking
No onward chain; freehold tenure for straightforward completion
Dated kitchen requires updating to modern standards
Ground-floor W/C and separate storage/utility room add practical space
Built late 1960s–1970s; solid construction but period features remain
Enclosed rear garden offering privacy and outdoor space
Excellent mobile signal, fast broadband, low crime in affluent area
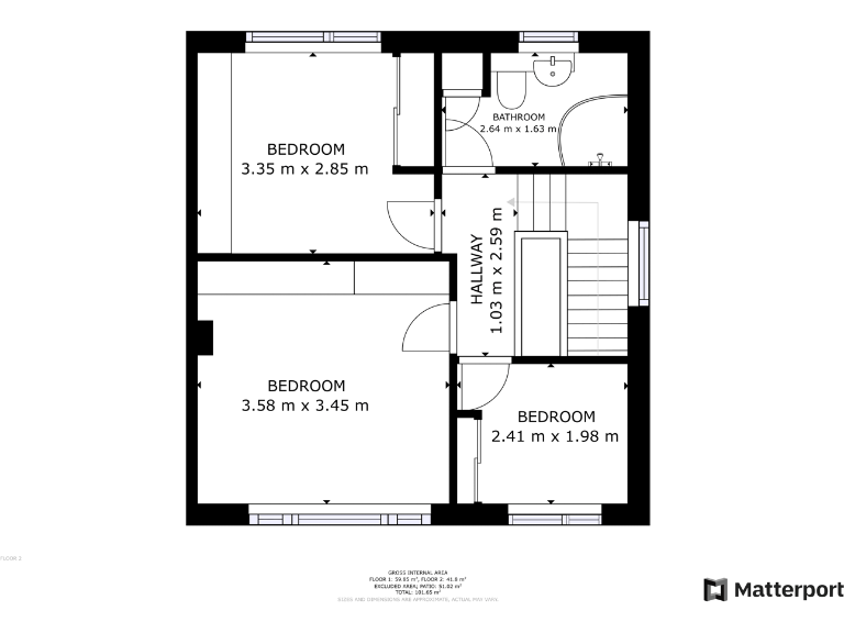
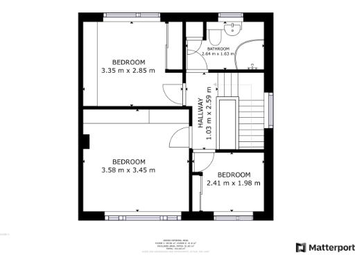
Set on a quiet cul-de-sac in sought-after Bessacarr, this three-bedroom detached house offers practical family living with no onward chain. The layout includes a bright lounge-diner, sun room overlooking the enclosed rear garden, ground-floor W/C and a separate storage/utility room — useful for busy households. The detached double garage and generous driveway provide strong parking and workshop/storage options.
Constructed in the late 1960s–1970s, the property is solid and well-proportioned but shows signs of its era. The kitchen is serviceable but dated and would benefit from updating to modern standards. Double glazing is present though the installation date is unknown; heating is by mains gas boiler and radiators. These are manageable items for buyers wanting to personalise and add value.
For families, the location is a major draw: good local schools, low crime, fast broadband and excellent mobile signal make day-to-day life straightforward. The garden and sun room create a private outdoor-facing space for children to play or adults to relax. With freehold tenure and no chain, the property is ready for a quick move or a planned renovation project.
This is a practical detached family home offering scope to modernise and increase value. Early viewing is recommended for buyers seeking parking, a double garage and flexible living in a well-regarded suburban pocket of Doncaster.
3 bedroom detached house for sale in Stoops Lane, Doncaster, South Yorkshire, DN4 — £230,000 • 3 bed • 1 bath • 858 ft²
3 bedroom detached house for sale in Hakehill Close, Bessacarr, Doncaster, DN4 — £289,000 • 3 bed • 2 bath • 862 ft²
3 bedroom detached house for sale in Bahram Road, Bessacarr, Doncaster, DN4 — £257,000 • 3 bed • 2 bath • 1249 ft²
3 bedroom detached house for sale in Lindsey Close, Doncaster, South Yorkshire, DN4 — £249,900 • 3 bed • 1 bath • 1113 ft²
3 bedroom semi-detached house for sale in Mattersey Close, Bessacarr, Doncaster, DN4 — £220,000 • 3 bed • 1 bath • 982 ft²
4 bedroom house for sale in Shardlow Gardens, Doncaster, DN4 — £285,000 • 4 bed • 1 bath • 1216 ft²






















































































