Chain-free three-bed with garden and garage in sought-after Bessacarr.
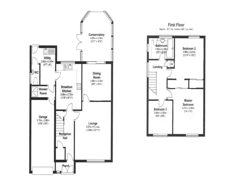
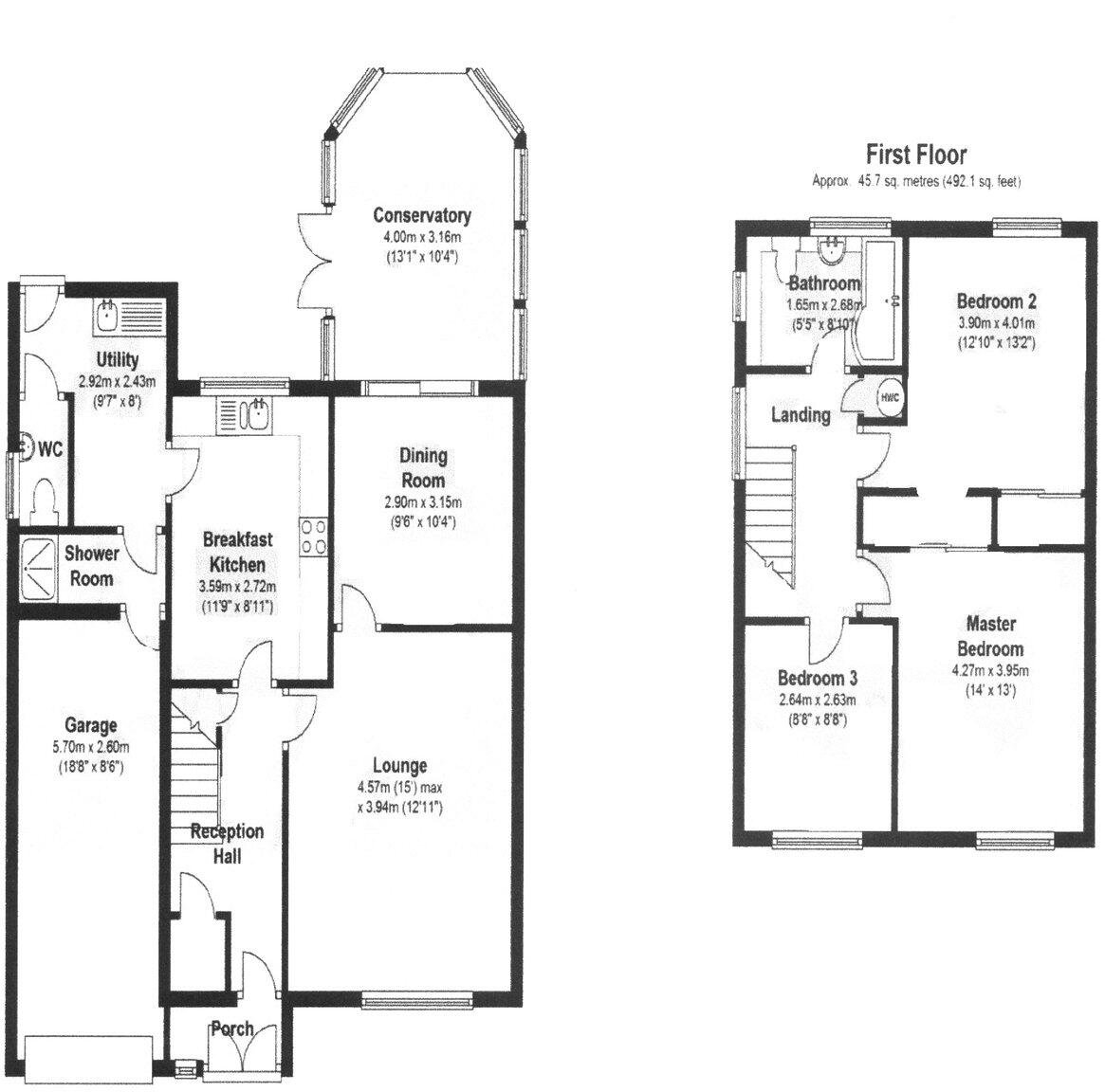
Three bedroom detached family house, 1,249 sq ft
Chain-free freehold sale, straightforward purchase
Large enclosed rear garden; private outdoor space
Driveway plus garage; generous off-road parking and storage
Needs renovation throughout; kitchen and finishes dated
Double glazing fitted post-2002; mains gas central heating
Located in Bessacarr near good primary schools and amenities
No flood risk; fast broadband, average local crime
Set on a popular Bessacarr road, this three-bedroom detached home offers space, privacy and clear potential for a growing family. The layout includes a lounge, separate dining room, sunroom, utility and ground-floor shower/WC — all arranged across a generous 1,249 sq ft footprint. Sale is freehold and chain-free, so an achievable move for buyers who want to renovate and personalise immediately.
Externally there’s a private, enclosed rear garden, off-road parking for several cars and an attached garage — useful for storage or conversion subject to permissions. The property dates from the late 1970s/early 1980s and benefits from double glazing installed since 2002 and mains gas central heating, but it clearly needs renovation and updating throughout, particularly the kitchen and some internal finishes.
The house sits within an affluent, family-friendly neighbourhood close to good primary schools, local amenities, sports and leisure facilities, and reliable transport links into Doncaster. Broadband speeds are fast and there’s no flooding risk. Buyers should note partial cavity wall insulation is assumed and the property requires cosmetic and likely some mechanical upgrading.
This is a straightforward opportunity for families seeking space and long-term value uplift through refurbishment. The layout and plot give scope to modernise the living areas or reconfigure rooms, while the garage and driveway add practical appeal for everyday family life.
3 bedroom detached house for sale in Bawtry Road, Bessacarr, Doncaster, DN4 — £525,000 • 3 bed • 1 bath • 1551 ft²
3 bedroom semi-detached house for sale in Broughton Road, Bessacarr, Doncaster, DN4 — £300,000 • 3 bed • 2 bath • 1390 ft²
3 bedroom detached house for sale in Stoops Lane, Doncaster, South Yorkshire, DN4 — £250,000 • 3 bed • 1 bath • 858 ft²
3 bedroom detached house for sale in Stoops Lane, Bessacarr, Doncaster, DN4 — £289,950 • 3 bed • 2 bath • 990 ft²
3 bedroom detached house for sale in Lindsey Close, Doncaster, South Yorkshire, DN4 — £249,900 • 3 bed • 1 bath • 1113 ft²
3 bedroom detached bungalow for sale in Stonecross Gardens, Bessacarr, Doncaster, DN4 — £325,000 • 3 bed • 1 bath • 938 ft²






















































































































