1930s detached family house on 0.29-acre plot with extension potential and efficient heating.
Detached 1930s Garden City home on approximately 0.29-acre plot
South-facing, large rear garden with greenhouse and productive vegetable plot
Air source heat pump heating, double-glazed (some triple-glazed) windows
Wood-burning stove in sitting room; traditional layout with separate dining room
Ample off-street parking plus detached garage; gated driveway access
Considerable scope to extend, subject to planning and Heritage Foundation rules
Previous structural movement remediated; Certificate of Structural Adequacy issued
Subject to restrictive covenants and possible easements; council tax above average
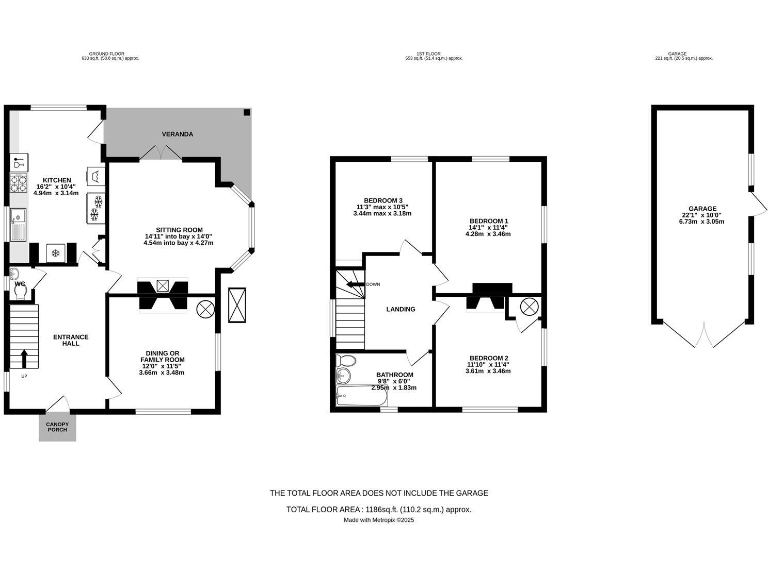
Set on a notable 0.29-acre plot in sought-after Norton Road, this 1930s detached Garden City house combines period character with substantial outdoor space. The sitting room features a bay and wood-burning stove; double-glazed windows (some with secondary triple-glazing) and an air source heat pump supply efficient heating. There is generous off-street parking and a detached garage at the rear.
The layout is traditional: sitting room, separate dining/family room, kitchen/breakfast room, cloakroom/WC on the ground floor, with three good first-floor bedrooms and a family bathroom. The south-facing rear garden extends to about 105ft, widening toward the rear, with lawn, patio, fruit trees, greenhouse and a productive vegetable plot — excellent for family life and entertaining.
The house has considerable scope to extend, subject to any necessary planning consents and the additional planning requirements of the Letchworth Garden City Heritage Foundation. Practical matters have been addressed: previous structural movement was monitored, remedial work carried out (root removal and root barrier), and a Certificate of Structural Adequacy issued.
Buyers should note material details: the property is freehold but subject to restrictive covenants and potential easements; council tax is above average. This home suits a family seeking space, character and future extension potential close to good schools, green open spaces and fast rail links to London and Cambridge.
4 bedroom semi-detached house for sale in Cowslip Hill, Letchworth Garden City, SG6 — £745,000 • 4 bed • 2 bath • 1790 ft²
3 bedroom semi-detached house for sale in Lordship Lane, Letchworth Garden City, SG6 — £575,000 • 3 bed • 2 bath • 1224 ft²
4 bedroom detached house for sale in Wilbury Road, Letchworth Garden City, SG6 — £890,000 • 4 bed • 2 bath • 1720 ft²
4 bedroom detached house for sale in Berkeley, Letchworth Garden City, SG6 — £785,000 • 4 bed • 2 bath • 1693 ft²
4 bedroom detached house for sale in Howard Gate, Letchworth Garden City, SG6 — £685,000 • 4 bed • 2 bath • 1701 ft²
3 bedroom semi-detached house for sale in Baldock Road, Letchworth Garden City, SG6 — £550,000 • 3 bed • 1 bath • 1201 ft²


















































































































































