Spacious conversion apartment with large rooms, parking and woodland outlook.
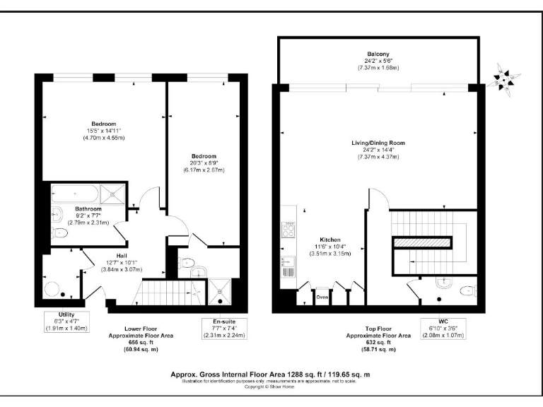
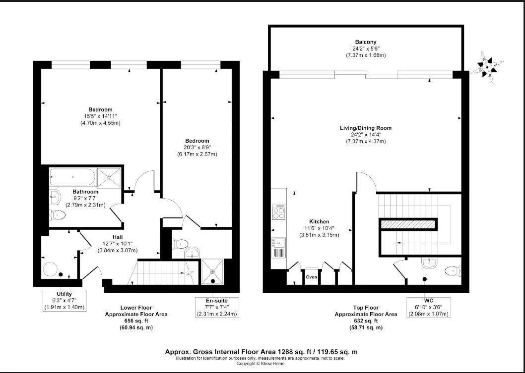
Over 1,200 sqft of duplex accommodation across two floors
Private large balcony with treed village and woodland views
Allocated secure off‑street parking for one vehicle
Two bedrooms, master with en suite and underfloor heating
Recently refitted house bathroom with underfloor heating
Long lease (250 years) and chain‑free for quick completion
Service charge c. £2,118.22 pa; leasehold tenure with no ground rent
EPC band E (score ~53); electric heating and medium flood risk
Set across the sixth and seventh floors of a converted Edwardian mill, this duplex apartment offers unusually large, flexible accommodation for a two-bedroom home. The upper floor hosts an open-plan kitchen–living–dining area with quartz worktops and integrated appliances that opens onto a private balcony with treed village views — ideal for relaxed entertaining or quiet mornings. One bedroom benefits from an en suite; both bathrooms were recently refitted and have underfloor heating.
Practical points suit buyers seeking low-maintenance living: the apartment is chain-free, comes with one secure allocated parking space, and sits on a long 250‑year lease with no ground rent. The development is well placed for Horsforth village amenities, local woodland and Horsforth rail station, providing straightforward commuter access to Leeds and Leeds Bradford Airport.
Buyers should note this is a leasehold property with an annual service charge of approximately £2,118.22 and an EPC in band E (score c.53), indicating below‑average thermal efficiency. Heating is electric (radiators/room heaters), and there is a medium flood risk and above‑average local crime rate; these factors may affect running costs and insurance.
Overall this is a convincing option for downsizers or professionals wanting unusually large, characterful accommodation with modern finishes and private outdoor space — provided you accept the running‑cost and location considerations.
2 bedroom penthouse for sale in Apartment 34, Horsforth Mill, Horsforth, LS18 — £355,000 • 2 bed • 2 bath • 1281 ft²
2 bedroom flat for sale in Low Lane, Horsforth, Leeds, West Yorkshire, LS18 — £275,000 • 2 bed • 2 bath • 916 ft²
2 bedroom flat for sale in Horsforth Mill, Low Lane, Horsforth, LS18 — £265,000 • 2 bed • 2 bath • 782 ft²
1 bedroom apartment for sale in Flat 1 Horsforth Mill, Low Lane, Leeds, LS18 — £175,000 • 1 bed • 1 bath • 613 ft²
2 bedroom apartment for sale in Springfield House, Long Row, Horsforth, LS18 — £260,000 • 2 bed • 1 bath • 1292 ft²
2 bedroom apartment for sale in Dyehouse Walk, Yeadon, Leeds, LS19 — £200,000 • 2 bed • 2 bath • 762 ft²






































































































