**Standout Features:**
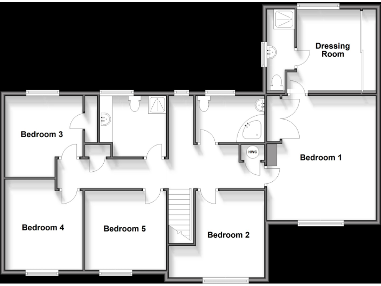
- Extended five-bedroom detached home
- Four spacious reception rooms, including an elegant lounge with a feature fireplace
- Principle bedroom suite with dressing room and en-suite shower
- Flexible ground floor office space
- Double integral garage and gravelled driveway accommodating several vehicles
- Beautifully landscaped central circle with plants and shrubs
- Family-friendly rear garden ideal for entertaining, with patio and lawn areas
- Rural location with stunning views
**Potential Downsides:**
- Average broadband speeds and high council tax
- Area has a reputation for higher crime rates
Discover this charming, extended five-bedroom detached neo-Tudor home in the idyllic rural setting of Charlwood. Priced attractively between £825,000 and £850,000, this property offers generous and versatile living spaces tailored for modern family life. With four reception rooms, including a cozy lounge and a bright kitchen/breakfast area, this home is perfect for communal living and entertaining.
The private rear garden presents an enchanting escape for family gatherings, while the double garage and sizeable driveway provide extensive parking options. Ideal for families, it features nearby schools with 'Good' ratings, ensuring quality education is at your doorstep.
Though the property currently reflects an average broadband service and high council tax, its expansive layout and rural charm make it a prime candidate for personal touch renovations and future enhancements. Don’t miss the opportunity to view this property—homes like this don’t stay on the market long!
3 bedroom detached house for sale in Glovers Road, Charlwood, Horley, RH6 — £550,000 • 3 bed • 1 bath • 1000 ft²
3 bedroom semi-detached house for sale in Ref: EL - Chalmers Close, Charlwood, RH6 0DP, RH6 — £450,000 • 3 bed • 1 bath • 1155 ft²
3 bedroom semi-detached house for sale in The Street, Charlwood, Horley, RH6 — £500,000 • 3 bed • 2 bath • 1536 ft²
3 bedroom semi-detached house for sale in The Street, Charlwood, Horley, RH6 — £500,000 • 3 bed • 2 bath • 1536 ft²
4 bedroom detached house for sale in Blue Bird Gate, Charlwood, RH6 — £950,000 • 4 bed • 3 bath • 1443 ft²
3 bedroom detached house for sale in The Street, Charlwood, Surrey, RH6 — £525,000 • 3 bed • 1 bath • 859 ft²






















































































































