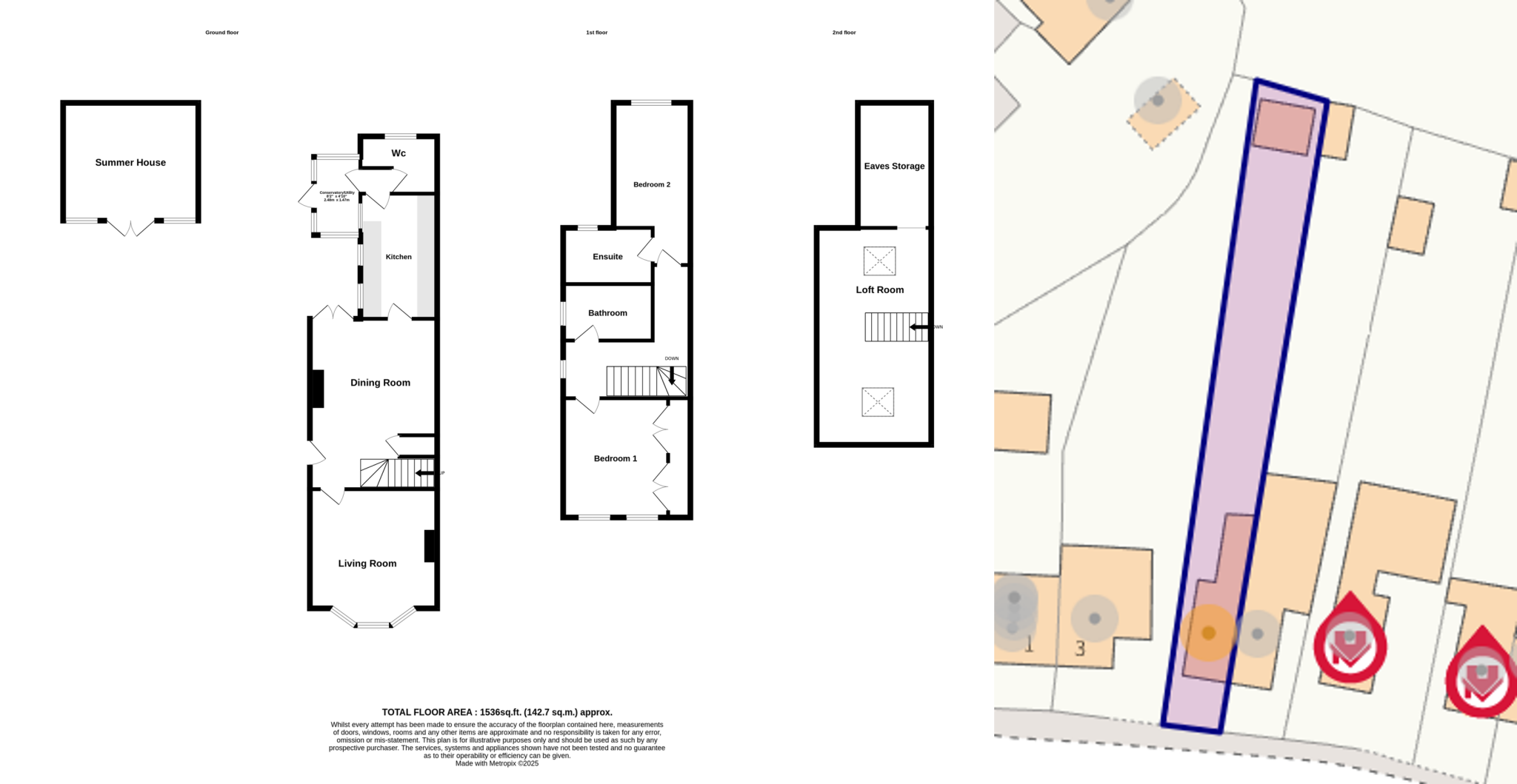
**Standout Features:**
- Spacious semi-detached home in a picturesque village location
- Two double bedrooms plus a versatile loft conversion/bonus room
- Generous living room with feature bay window and electric fireplace
- Well-presented kitchen with utility room and downstairs WC
- Private large rear garden with outbuilding, perfect for summer house or office
- Driveway parking for two vehicles
**Potential Concerns:**
- Average mobile signal and slow broadband speeds
- Above-average council tax and crime rate in the area
Introducing a delightful semi-detached Edwardian home in the serene village of Charlwood, offering a spacious and family-friendly layout that is both charming and functional. This beautifully presented property features two double bedrooms, a well-appointed ensuite, and an inviting living room with a bay window and electric fireplace—perfect for cozy family gatherings. The added loft conversion presents a flexible bonus space, ideal for guests, an office, or a creative retreat.
Step outside to discover a generous private garden, bordered by mature hedges, providing a tranquil escape and plenty of room for outdoor activities. The outbuilding at the rear of the garden opens up additional possibilities, whether as a games room or work-from-home space. With driveway parking for two cars and access to local amenities, this home is perfectly suited for families and first-time buyers looking for a comfortable, character-filled residence. Don't miss out on this exceptional opportunity to embrace village life while enjoying modern conveniences.
3 bedroom semi-detached house for sale in The Street, Charlwood, Horley, RH6 — £500,000 • 3 bed • 2 bath • 1536 ft²
3 bedroom semi-detached house for sale in The Street, Charlwood, Horley, Surrey, RH6 — £500,000 • 3 bed • 2 bath • 1723 ft²
3 bedroom semi-detached house for sale in Norwood Hill Road, Charlwood, Horley, Surrey, RH6 — £425,000 • 3 bed • 3 bath • 1200 ft²
3 bedroom detached house for sale in Glovers Road, Charlwood, Horley, RH6 — £550,000 • 3 bed • 1 bath • 1000 ft²
3 bedroom semi-detached house for sale in Ref: EL - Chalmers Close, Charlwood, RH6 0DP, RH6 — £450,000 • 3 bed • 1 bath • 1155 ft²
2 bedroom semi-detached house for sale in Perrylands, Charlwood, Horley, RH6 — £400,000 • 2 bed • 1 bath • 721 ft²










































































