Characterful three-bedroom home near station and top schools for families..
Grade II listed character cottage with original beams and fireplace
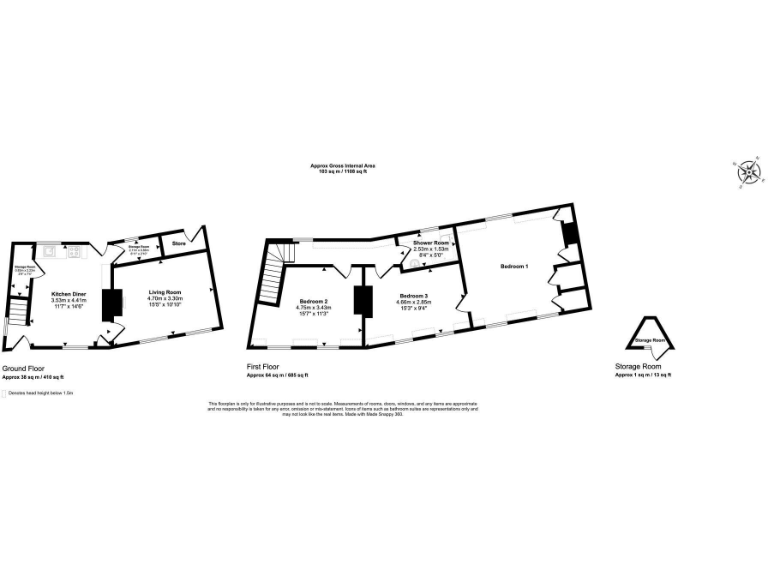
Approx. 570 sqft — modest internal space across multiple storeys
Three bedrooms; single bathroom only
Chain free — ready for a quick purchase
Small private courtyard garden — low maintenance outdoor space
Listed status restricts alterations; consent likely required for changes
Solid brick walls, probable lack of insulation; EPC D
Above-average council tax and higher local crime levels
Set in Chesham Old Town, this Grade II listed end-of-terrace cottage combines period character with practical proximity to town and rail. Exposed beams, a fireplace and original details give the house charm and a strong sense of history that will appeal to families and professionals seeking character close to schools and amenities.
The accommodation provides three bedrooms over multiple storeys and a small courtyard garden — compact but private and low maintenance. The location is a major asset: a short walk to Chesham town centre, the train station and several well-regarded schools, making daily commutes and school runs straightforward.
Buyers should note the property’s constraints and running costs. Its listed status will restrict alterations and could complicate improvement work. The house is modest in size (approximately 570 sq ft), has one bathroom, an EPC rating of D and solid brick walls likely without insulation. Council tax is above average and the area records higher crime levels than average.
This chain-free cottage suits a buyer who values period character and location over space, or someone prepared to manage listed-building consent for sensitive improvements. With good broadband and excellent mobile signal, it also offers immediate liveability for modern family life while retaining potential for careful upgrading.
3 bedroom terraced house for sale in Germain Street, Chesham, Buckinghamshire, HP5 — £575,000 • 3 bed • 2 bath • 1179 ft²
3 bedroom end of terrace house for sale in Church Street, Old Chesham, Buckinghamshire, HP5 — £575,000 • 3 bed • 1 bath • 842 ft²
3 bedroom end of terrace house for sale in Missenden Road, Chesham, Buckinghamshire, HP5 — £500,000 • 3 bed • 1 bath • 818 ft²
2 bedroom terraced house for sale in Market Square, Old Amersham, Buckinghamshire, HP7 — £650,000 • 2 bed • 2 bath • 1004 ft²
1 bedroom terraced house for sale in Church Street, Chesham, HP5 — £250,000 • 1 bed • 1 bath • 446 ft²
2 bedroom terraced house for sale in High Street, Amersham, Buckinghamshire, HP7 — £475,000 • 2 bed • 1 bath • 560 ft²






































































