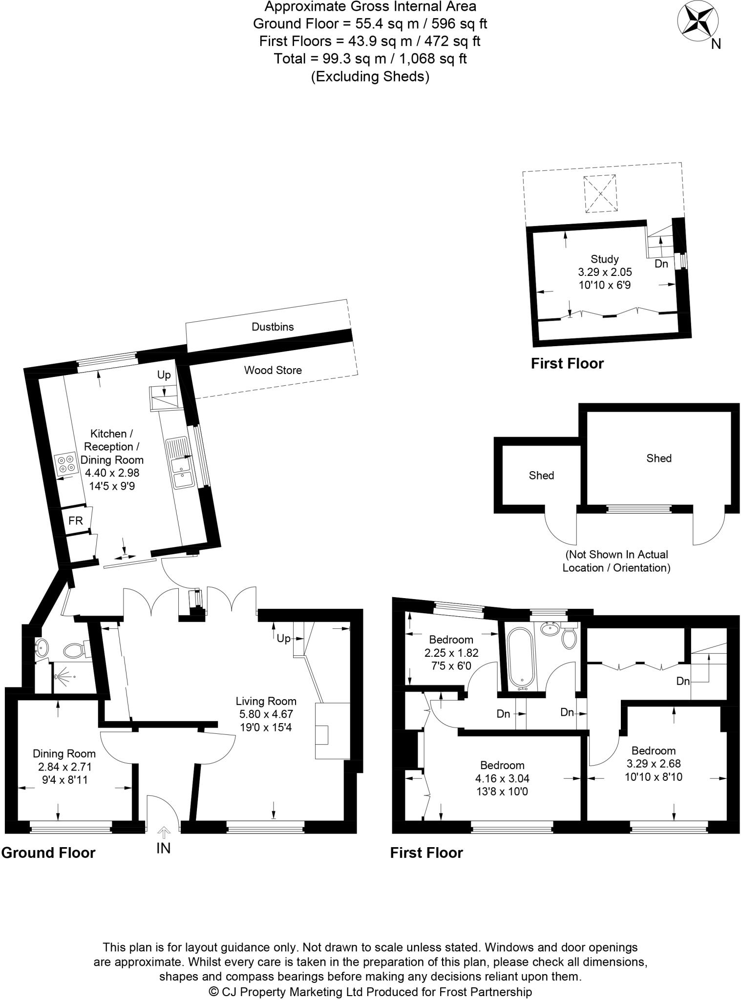
**Standout Features:**
- Charming double-fronted Tudor Revival cottage
- Spacious walled garden offering privacy and tranquility
- Bespoke kitchen with modern fittings and rustic charm
- Two reception rooms for comfortable living and entertaining
- Three bedrooms and two bathrooms
- Short walk to the town center and station, with access to beautiful countryside routes
**Summary:**
Discover a stunning double-fronted cottage nestled in the highly desirable Old Town of Chesham. This characterful home retains enchanting original features, while seamlessly blending contemporary finishes. The well-designed layout encompasses three spacious bedrooms and two bathrooms, providing ample accommodation for families or professionals. You'll love the beautiful bespoke kitchen with a breakfast area, leading into light-filled reception rooms; perfect for gatherings. The remarkable large walled garden is a true highlight, ideal for relaxation and outdoor entertaining.
Situated just a short walk from local amenities, excellent schools—including the outstanding Chesham Grammar School—and scenic countryside walks, this property presents a unique opportunity for both first-time buyers and family-oriented individuals. The delightful charm combined with modern comforts makes it hard to resist. Don’t miss out on the chance to make this beautiful cottage your new home—schedule a viewing today!
1 bedroom terraced house for sale in Pednormead End, Chesham, Buckinghamshire, HP5 — £365,000 • 1 bed • 1 bath • 463 ft²
3 bedroom end of terrace house for sale in Missenden Road, Chesham, Buckinghamshire, HP5 — £525,000 • 3 bed • 1 bath • 818 ft²
3 bedroom end of terrace house for sale in Church Street, Chesham, HP5 — £465,000 • 3 bed • 1 bath • 570 ft²
2 bedroom house for sale in Church Street, Chesham, Buckinghamshire, HP5 — £550,000 • 2 bed • 2 bath • 1151 ft²
3 bedroom end of terrace house for sale in White Hill, Chesham, Buckinghamshire, HP5 — £465,000 • 3 bed • 1 bath • 1005 ft²
2 bedroom terraced house for sale in Missenden Road, Chesham, Buckinghamshire, HP5 — £485,000 • 2 bed • 2 bath • 990 ft²


















































































