Period character, large garden and garage close to city amenities.
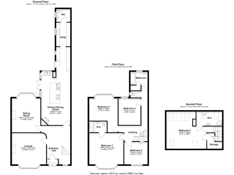
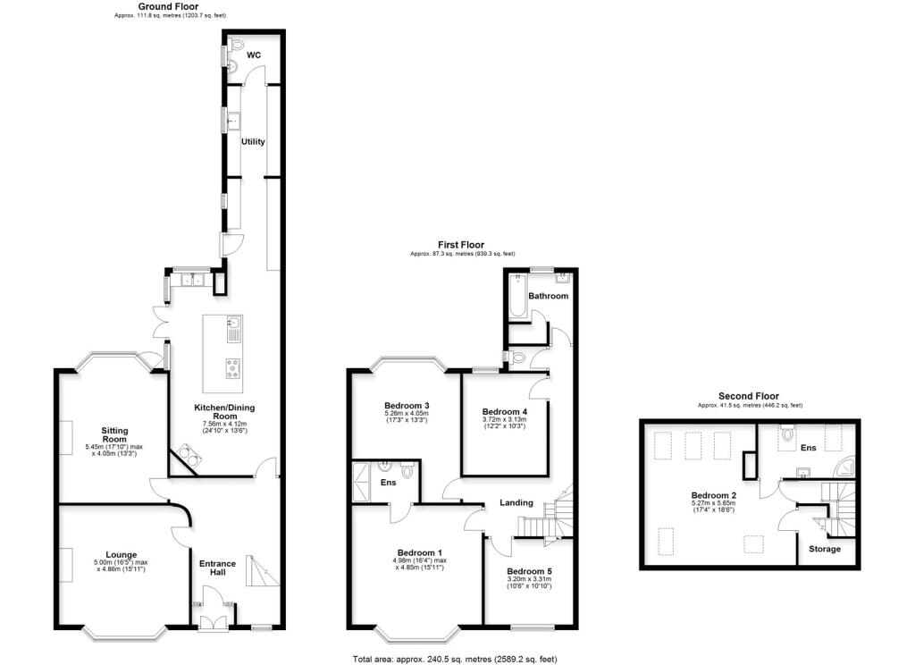
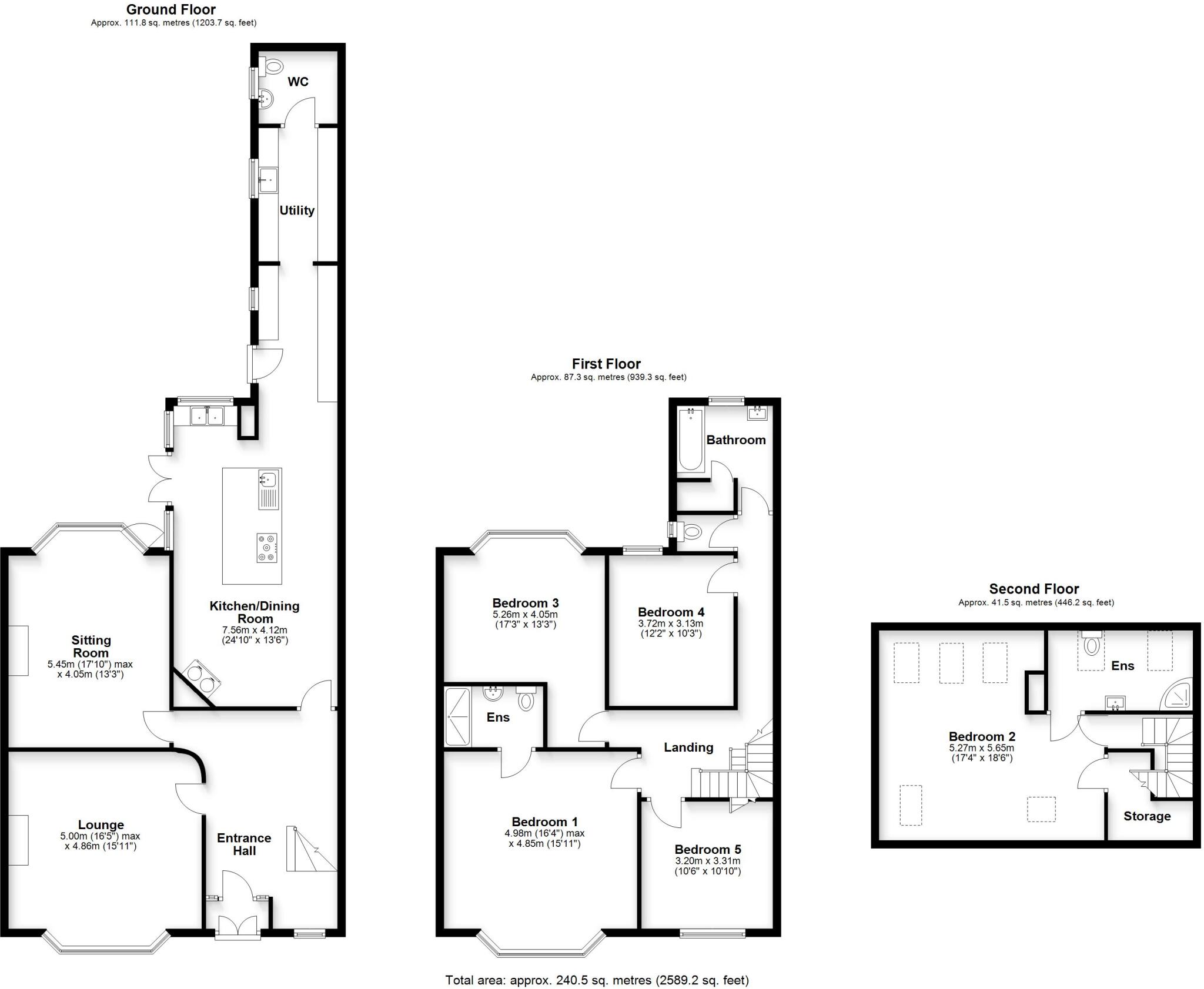
Five double bedrooms across three floors
This spacious Victorian mid-terrace combines period charm with generous family living across multiple floors. Five double bedrooms and three bathrooms give flexible sleeping and living arrangements for families, home offices or guests. High ceilings, original bay windows, herringbone woodblock flooring and retained servant bells preserve strong character throughout.
The extended kitchen is a clear highlight: granite worktops, an island with gas hob, a classic Aga (which also provides hot water), Stoves double oven and substantial storage beside a practical utility area. Ground-floor living includes two reception rooms, a pleasant cloakroom and direct access to a thoughtfully planted rear garden with lane access, brick shed and garage.
Practical points are straightforward and important. Heating is provided by electric plinth heaters rather than gas central heating. Broadband speeds are average and council tax is described as quite expensive. The property sits in a very deprived local area classification despite an otherwise affluent local demographic — buyers should consider local services and long-term area factors.
Lovingly maintained by one family for over forty years, the house offers immediate liveability with scope to update or modernise heating and services if desired. Its size (approximately 2,589 sq ft) and garden/garage make it a rare, substantial Victorian terrace in CF23. Early viewing is advisable for families seeking character, space and productive outside space.
5 bedroom terraced house for sale in Balaclava Road, Penylan, Cardiff, CF23 — £525,000 • 5 bed • 2 bath • 1565 ft²
5 bedroom terraced house for sale in York Place, Newport, NP20 — £230,000 • 5 bed • 2 bath
5 bedroom terraced house for sale in Neville Street, Cardiff, CF11 — £480,000 • 5 bed • 2 bath • 2078 ft²
3 bedroom terraced house for sale in Denton Road, Cardiff, CF5 — £375,000 • 3 bed • 1 bath • 1034 ft²
5 bedroom end of terrace house for sale in Pencisely Road, Cardiff, CF5 — £750,000 • 5 bed • 2 bath • 1495 ft²
4 bedroom end of terrace house for sale in Kimberley Road, Penylan, Cardiff, CF23 — £750,000 • 4 bed • 2 bath • 2083 ft²


























































































































































































