Single-floor comfort with parking, garden and easy move-in readiness.
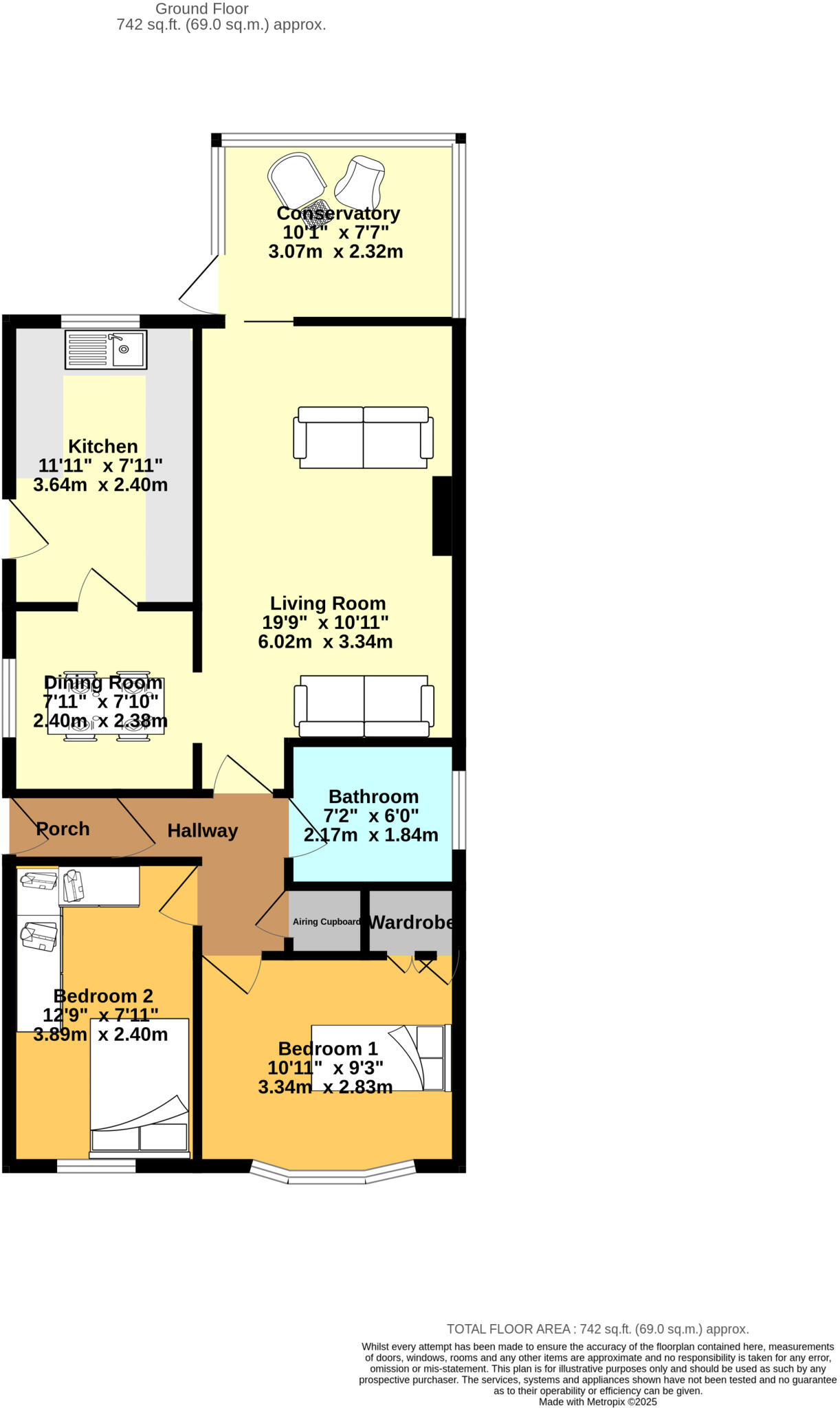
Chain-free detached bungalow with single-level living
Long private driveway and detached garage with electric roller door
Bright conservatory off a generous living room
Modern fitted kitchen with ample storage and workspace
Two bedrooms with built-in wardrobes
Contemporary bathroom with walk-in shower enclosure
Average size property (approx. 742 sq ft) — limited living space for extensions
Living room decor dated and may need updating
This detached two-bedroom bungalow on Fairview Avenue offers uncomplicated, single-level living in a peaceful cul-de-sac — ideal for downsizers or couples seeking ease and privacy. The layout flows well from a generous living room into a bright conservatory, creating a calm spot to relax and enjoy the garden. Practical features include a modern fitted kitchen, contemporary bathroom with walk-in shower, and built-in bedroom wardrobes.
Outside, a long private driveway and a detached garage with an electric roller door provide ample parking and storage, while the patio and lawn create a low-maintenance garden for outdoor sitting or light gardening. The property is freehold, chain-free and sits in a very low-crime, affluent village setting with fast broadband and good nearby schools.
The bungalow is an average-sized home (approx. 742 sq ft) and while well presented overall, parts of the living room decor are dated and may benefit from modernising to match the rest of the accommodation. This is a practical, comfortable home offering straightforward move-in readiness, with potential to personalise in ways that suit a quieter, low-maintenance lifestyle.
3 bedroom detached bungalow for sale in Witham Close, Crewe, CW2 — £290,000 • 3 bed • 1 bath • 528 ft²
2 bedroom bungalow for sale in Hurn Close, Crewe, Cheshire, CW1 — £172,500 • 2 bed • 1 bath • 558 ft²
2 bedroom bungalow for sale in Lords Mill Road, Shavington, Crewe, Cheshire, CW2 — £180,000 • 2 bed • 1 bath • 959 ft²
2 bedroom semi-detached bungalow for sale in Cemetery Road, Weston, Cheshire, CW2 — £260,000 • 2 bed • 1 bath • 650 ft²
2 bedroom detached bungalow for sale in Ravenscroft, Holmes Chapel, CW4 — £395,000 • 2 bed • 1 bath • 947 ft²
2 bedroom semi-detached bungalow for sale in Burlea Drive, Crewe, CW2 — £230,000 • 2 bed • 1 bath • 689 ft²










































































































