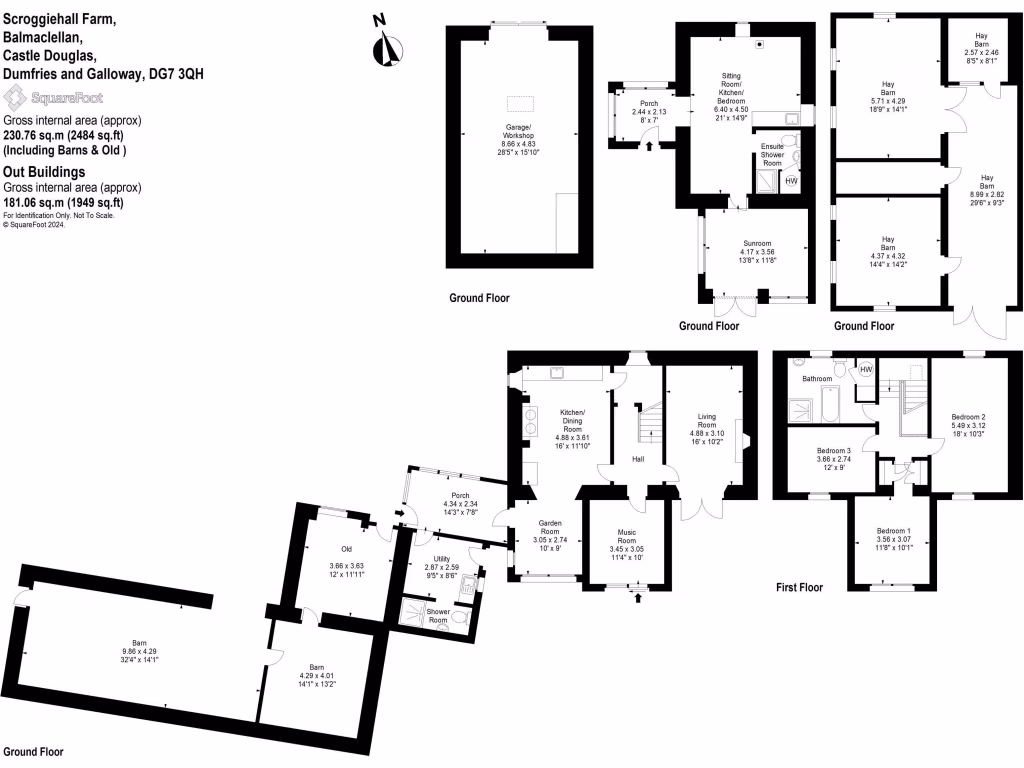
**Standout Features:**
- Expansive 130.32 acres certified organic/biodynamic farmland
- Charming traditional farmhouse built circa 1790 (3 bedrooms, 2 bathrooms)
- General purpose building with two loose boxes
- Bothy and byre with planning consent for conversion
- Solar panels and sustainable farming practices
- Remote, picturesque setting in Dumfries and Galloway
**Potential Concerns:**
- EPC Rating = F indicates energy efficiency concerns
- Some maintenance required due to age of the property
- Limited access to amenities, necessitating travel for shopping and services
Discover Scroggie Hall, a stunning 130.32-acre biodynamic farm tucked away in the breathtaking Dumfries and Galloway countryside. This unique property features a traditional three-bedroom farmhouse, rich in character, with expansive gardens and sustainable features such as solar panels. With the added benefit of a self-contained bothy that has planning consent for conversion, this home presents a unique opportunity for those looking to embrace a self-sufficient lifestyle or establish a serene retreat.
The agricultural capabilities of this property are remarkable, with fertile grounds currently managed to support livestock, including a flock of breeding ewes and woodland pastures for tranquility. Enjoy the idyllic rural lifestyle while still being within reach of local amenities in nearby villages. While achieving an EPC Rating of F, which may require future upgrades, the home’s charm and the vast land’s potential for renovation and agricultural ventures are hard to resist. Embrace the opportunity for future flexibility and create your dream sustainable living or farming project in this serene, welcoming setting. Don’t miss out on this unique offering—properties like Scroggie Hall are rare to find.
5 bedroom detached house for sale in Hill Of Balmaclellan, Balmaclellan, Castle Douglas, Dumfries and Galloway, DG7 — £520,000 • 5 bed • 1 bath
Farm land for sale in High Auchenlarie & Holecroft Farms, Gatehouse of Fleet, DG7 2HB, DG7 — £1,200,000 • 4 bed • 1 bath • 1364 ft²
5 bedroom farm house for sale in Larglanglee House, Crocketford, DG2 — £725,000 • 5 bed • 2 bath • 2926 ft²
Land for sale in Greenmerse Smallholding, Dumfries, Dumfries and Galloway, DG2 — £395,000 • 3 bed • 1 bath • 25900 ft²
5 bedroom detached house for sale in Glenquicken Estate, Creetown, Newton Stewart, Dumfries and Galloway, South West Scotland, DG8 — £4,450,000 • 5 bed • 4 bath • 2368 ft²
6 bedroom country house for sale in Kirkmahoe, Dumfries, DG1 1SY, DG1 — £795,000 • 6 bed • 3 bath • 2110 ft²


































































































