Bright, move-in ready apartment with private courtyard and strong transport links.
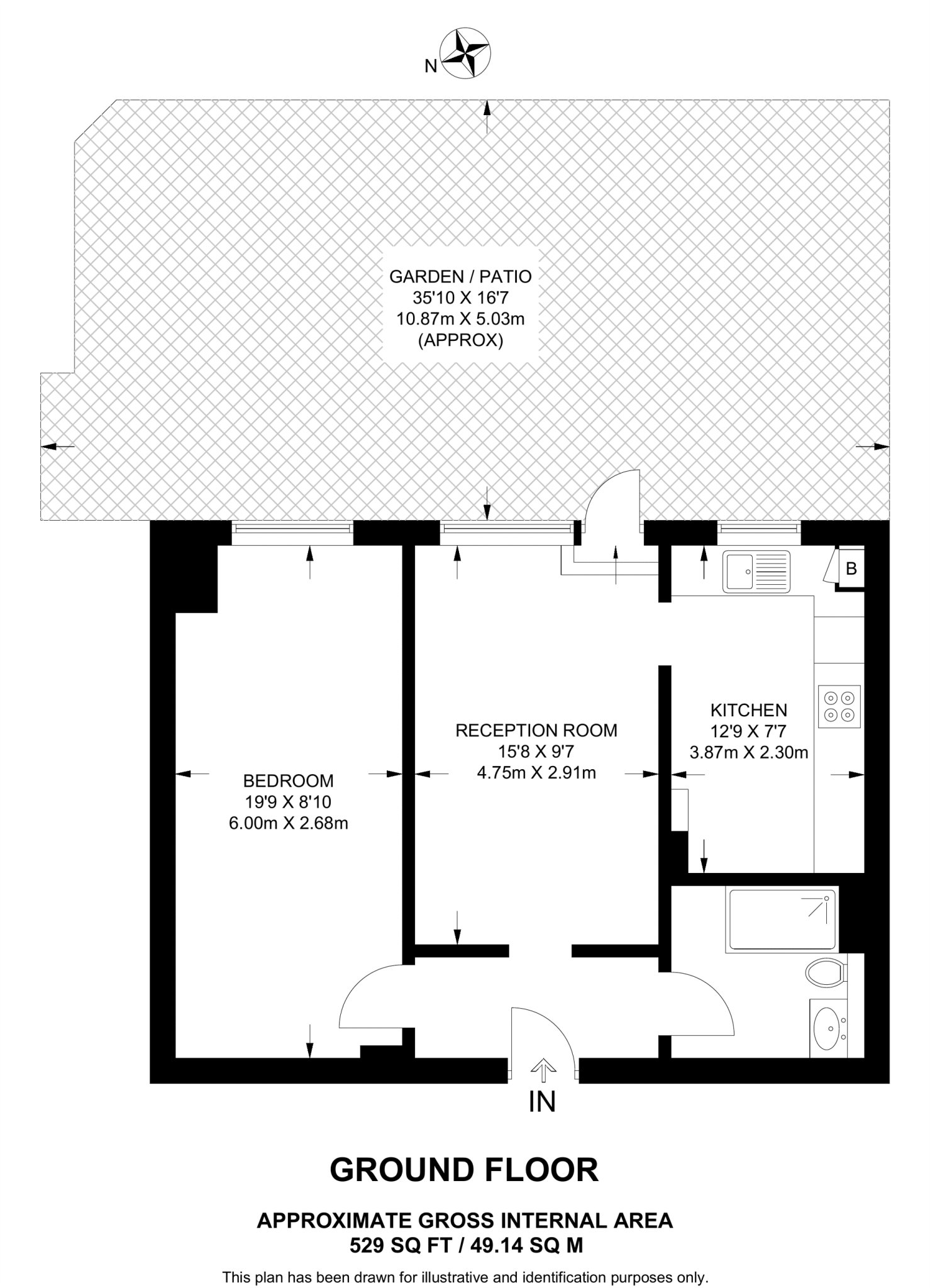
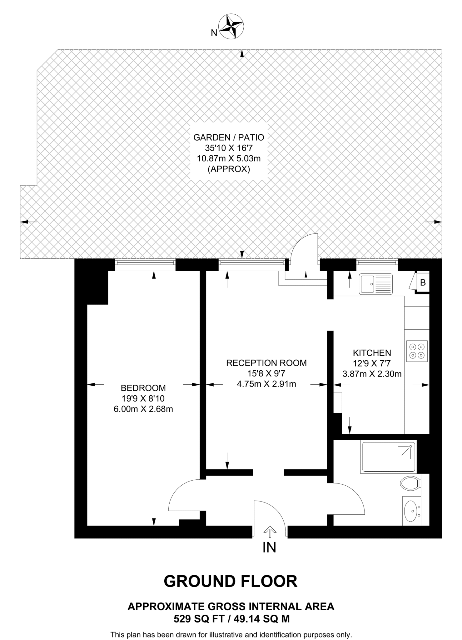
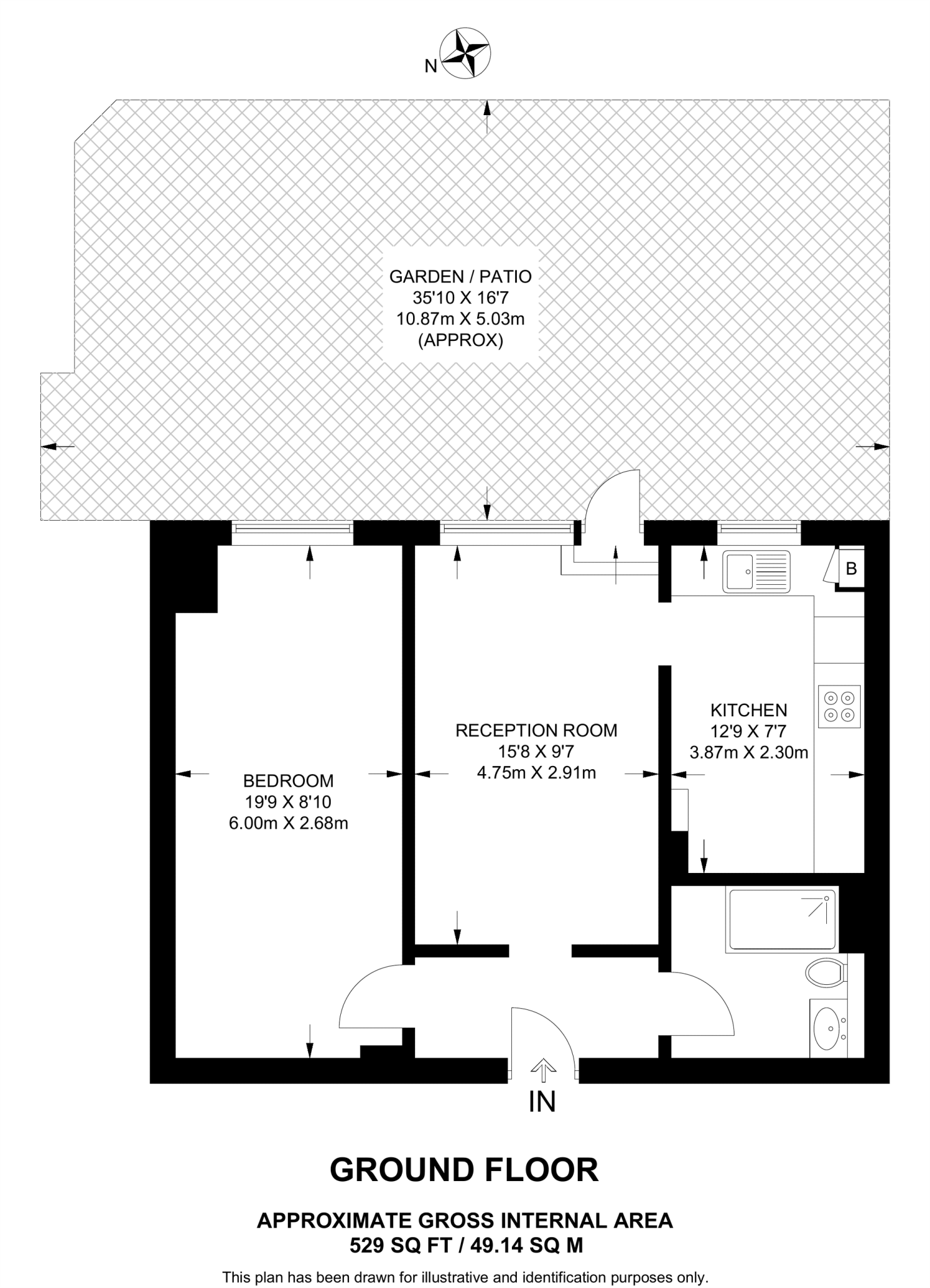
Ground-floor one-bedroom flat with private paved courtyard garden
Generous reception room with dining and entertaining space
Fully fitted kitchen with high-quality fixtures and fittings
Light bedroom with built-in storage; practical 529 sq ft layout
Set in secure high-rise development; communal maintenance applies
Leasehold tenure — check lease length and service charges
Building from 1967–75; double glazing installed before 2002
Area classed as very deprived; average local crime rates
A well-presented one-bedroom ground-floor apartment arranged within a secure high-rise block, offering a bright reception room with space to dine and entertain and a private paved courtyard for summer use. The flat feels modern inside with timber flooring, a fully fitted kitchen and a contemporary bathroom — ready to occupy or let straightaway.
At about 529 sq ft, the layout is practical: a light-filled bedroom with built-in storage, a generous living/dining area and straightforward boiler/radiator heating on mains gas. Excellent mobile signal and fast broadband make the home suited to remote work or streaming, and nearby transport links provide easy city access.
Important practical points: the property is leasehold and located in an area recorded as very deprived, with average local crime rates — worth factoring into long-term value and insurance costs. The building dates from 1967–75 and the double glazing was installed before 2002, so communal maintenance or component replacement (windows, common areas) may be required in future.
This apartment will suit a first-time buyer looking for a ready-to-move-in central London base or an investor seeking straightforward rental potential. Confirm lease length, service charges and any planned works before proceeding.
1 bedroom apartment for sale in Victoria Crescent, London, N15 — £285,000 • 1 bed • 1 bath • 507 ft²
1 bedroom flat for sale in Esin Court, Broad Lane, N15 — £352,800 • 1 bed • 1 bath • 519 ft²
1 bedroom flat for sale in St Peters Way, De Beauvoir Town, London, N1 — £425,000 • 1 bed • 1 bath • 523 ft²
1 bedroom flat for sale in The Avenue, Tottenham, London, N17 — £250,000 • 1 bed • 1 bath • 534 ft²
1 bedroom ground floor flat for sale in Daleview Road, London, N15 — £450,000 • 1 bed • 1 bath • 711 ft²
1 bedroom apartment for sale in King Henrys Walk, London, N1 — £450,000 • 1 bed • 1 bath • 521 ft²


























































































































































































































































































































































































