Characterful two-bedroom first-floor flat opposite Queens Park with parking and garden.
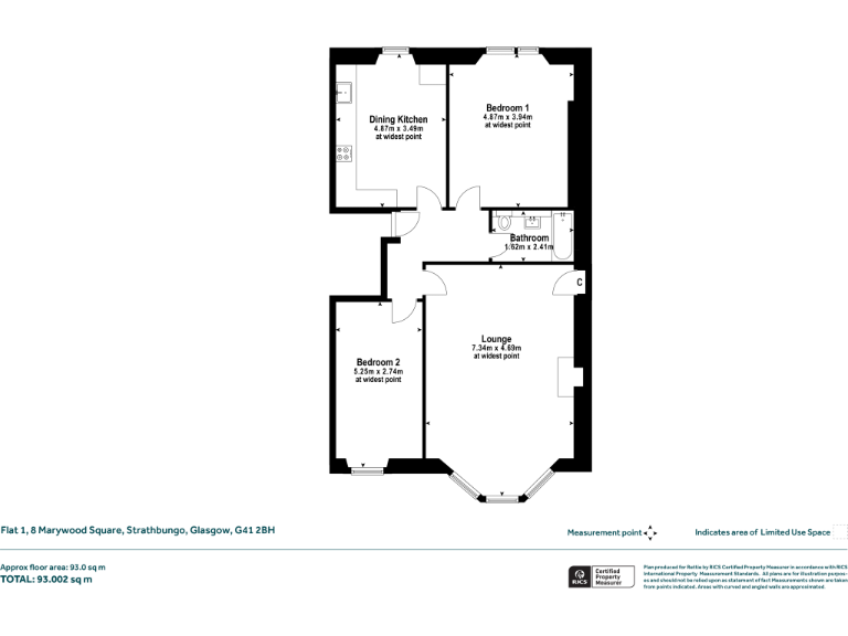
Large first-floor conversion — approx. 1,000 sq ft
Two double bedrooms; flexible second bedroom ideal for a home office
Bay-window lounge with wood-burning stove and original cornicing
Dining-sized kitchen with integrated appliances and space for table
Allocated off-street parking and well-kept communal rear garden
Sash and casement single glazing — lower thermal efficiency
Freehold tenure; EPC C, Council Tax Band D
Located opposite Queens Park; strong local amenities and transport
This first-floor, two-bedroom conversion sits within a handsome Victorian terrace on Marywood Square, offering spacious living across approximately 1,000 sq ft. The apartment blends period character — bay-windowed lounge, intricate cornicing and refurbished floorboards — with practical features including a dining-sized kitchen and a wood-burning stove.
Set on one of Strathbungo’s most sought-after streets, the flat benefits from gas central heating, an allocated off-street parking space and access to a well-kept communal rear garden. Queens Park, local cafés, restaurants and good public transport links are all within easy walking distance, making everyday life convenient and sociable.
Practical points to note: the property has sash and casement single glazing which is less thermally efficient than modern double glazing, and the wider area is classified as very deprived despite the pocket’s strong local amenity offer. The flat is offered freehold with an EPC rating of C and Council Tax Band D. This is a roomy, characterful home that suits buyers seeking period detail, space and proximity to green space, while accepting some energy-efficiency compromises.
2 bedroom apartment for sale in Ground Conversion, 41 Marywood Square, Strathbungo, G41 2BN, G41 — £245,000 • 2 bed • 1 bath • 775 ft²
2 bedroom flat for sale in Upper Conversion, 32 Marywood Square, Strathbungo, G41 2BJ, G41 — £275,000 • 2 bed • 1 bath • 1001 ft²
1 bedroom apartment for sale in 34 Marywood Square, Strathbungo, G41 2BJ, G41 — £220,000 • 1 bed • 1 bath • 775 ft²
2 bedroom apartment for sale in Marywood Square, Strathbungo, Glasgow, G41 — £260,000 • 2 bed • 1 bath • 794 ft²
2 bedroom apartment for sale in Ground Floor, 20 Marywood Square, Strathbungo, G41 2BJ, G41 — £250,000 • 2 bed • 1 bath • 807 ft²
1 bedroom apartment for sale in Niddrie Road, Strathbungo, Glasgow, G42 — £175,000 • 1 bed • 1 bath • 696 ft²


















































































































