Large, characterful one‑bedroom flat in Strathbungo — move‑in ready with study and communal garden..
Freehold one‑bedroom flat, approx. 696 sq ft
High ceilings and bay‑windowed lounge with refurbished floorboards
Dining‑sized kitchen and separate study/office space
Double glazing and gas central heating throughout
Communal rear garden with lawn and patio
EPC C, Council Tax Band B — running costs relatively low
First‑floor via communal stairs — no lift access
Wider area records high deprivation — may affect local services
This bright, first-floor one‑bedroom flat in Strathbungo offers generous living space (approximately 696 sq ft) in a handsome red sandstone tenement. High ceilings, a bay‑windowed lounge and a dining‑sized kitchen create an airy, flexible home that suits first-time buyers or professionals wanting room to work from home. The property is freehold and presented in neutral, move‑in condition with refurbished floorboards and modern finishes.
Practical features include double glazing, gas central heating and a secure door‑entry into a well‑kept communal close. A useful rear study/office off the living room and a double‑sized bedroom add versatility, while a communal rear garden with lawn and patio provides outdoor space. Council Tax Band B and an EPC rating of C keep running costs relatively low.
Location is a major draw: Strathbungo’s cafés, bars and restaurants are within easy reach, with frequent buses on Pollokshaws Road and Queens Park station nearby. Broadband and mobile signals are strong, supporting remote working and streaming.
A factual note on local context: the wider area records high deprivation levels, which may influence local services and future resale dynamics. The flat is on the first floor via communal stairs, and shared close maintenance is part of living in this period block. Overall, this is a spacious, characterful one‑bedroom with strong lifestyle appeal for buyers seeking a roomy, well‑located starter home.
1 bedroom apartment for sale in Pollokshaws Road, Strathbungo, Glasgow, G41 — £120,000 • 1 bed • 1 bath • 417 ft²
1 bedroom apartment for sale in Prince Edward Street, Queens Park, G42 — £159,000 • 1 bed • 1 bath • 715 ft²
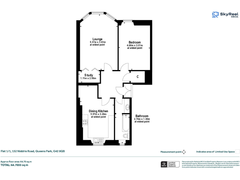
2 bedroom apartment for sale in Niddrie Road, Glasgow, G42 — £225,000 • 2 bed • 1 bath • 891 ft²
1 bedroom flat for sale in Torrisdale Street, Queens Park, Glasgow, G42 — £125,000 • 1 bed • 1 bath • 479 ft²
2 bedroom apartment for sale in Pollokshaws Road, Strathbungo, Glasgow, G41 — £145,000 • 2 bed • 1 bath • 688 ft²
2 bedroom flat for sale in 802 Pollokshaws Road, Flat 2/2, Pollokshaws, Glasgow, G41 2AY, G41 — £219,000 • 2 bed • 1 bath • 904 ft²






















































































