Chain-free three-bedroom family home on a large plot with strong extension potential.
No onward chain — offered freehold and chain free
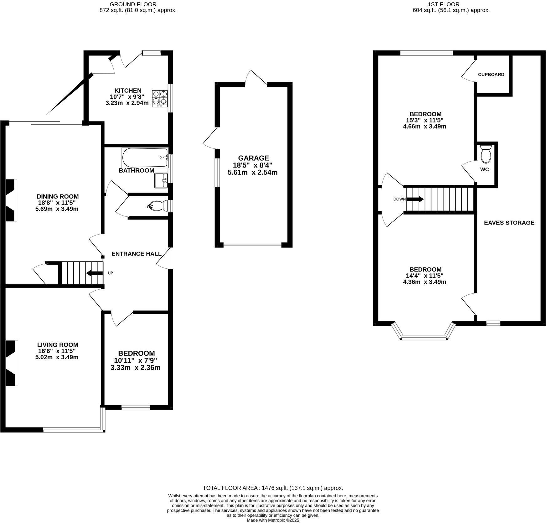
Large plot with substantial rear garden and driveway parking
Garage included; convenient storage and off-street parking
Potential to extend or redevelop, subject to planning consent
Requires full modernisation throughout — renovation needed
Only one full bathroom plus separate WC; may suit conversion plans
Excellent commuter links: Whyteleafe, Upper Warlingham, Caterham stations
Council tax is above average
Set on a large plot in a quiet no-through road, this three-bedroom semi-detached house is offered freehold and chain free — an appealing canvas for families or buyers seeking significant uplift. The accommodation is generous with two reception rooms, a ground-floor bedroom, two upstairs doubles and extensive eaves storage that could be converted into additional living space (subject to planning). A substantial rear garden and driveway plus a garage provide practical outdoor space and parking.
The property requires full modernisation, so it will suit purchasers prepared to renovate and invest. There is clear scope to extend or redevelop (subject to the relevant consents), which presents an opportunity to increase living space and value in this affluent part of Caterham. No flood risk is recorded and the area benefits from low crime and fast broadband.
Commuters will appreciate the proximity to three local stations — Whyteleafe (approx. 1 mile), Upper Warlingham (1.3 miles) and Caterham (1.6 miles) — offering direct services to London. Local amenities, good-rated schools and the green backdrop of the Surrey Hills make this a practical family location. Note: the house currently needs renovation and has only one full bathroom (plus a separate WC), and council tax is above average.
3 bedroom semi-detached house for sale in Croydon Road, CATERHAM, CR3 — £475,000 • 3 bed • 1 bath • 738 ft²
3 bedroom semi-detached house for sale in Buxton Lane, Caterham, CR3 5HN, CR3 — £525,000 • 3 bed • 2 bath • 1147 ft²
3 bedroom semi-detached house for sale in Fulford Road, Caterham, CR3 — £510,000 • 3 bed • 1 bath • 1097 ft²
3 bedroom semi-detached house for sale in Markville Gardens, Caterham, CR3 — £575,000 • 3 bed • 1 bath • 1495 ft²
3 bedroom semi-detached house for sale in Matlock Road, Caterham, CR3 — £525,000 • 3 bed • 1 bath • 1184 ft²
3 bedroom house for sale in Newstead Rise, Caterham, CR3 — £450,000 • 3 bed • 2 bath • 991 ft²






























































