**Standout Features:**
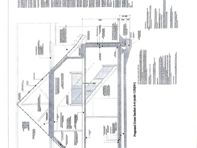
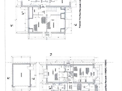
- Full planning permission approved for a modern detached house
- Foundations already completed; plot is ready for immediate construction
- Eco-friendly heating option with heat pump system potential
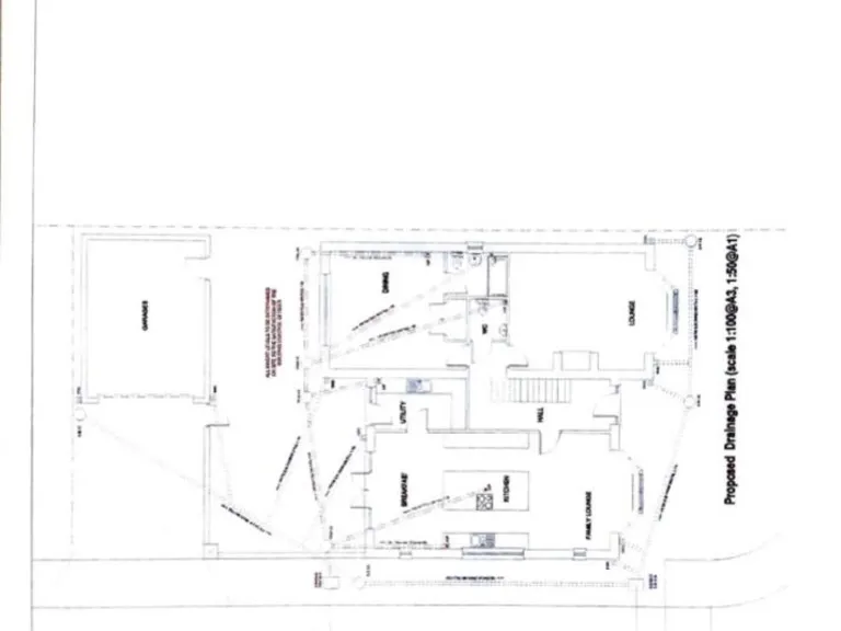
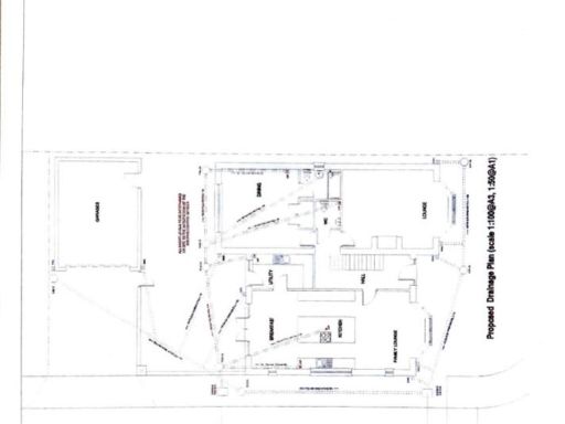
- Fully serviced with key utilities connected
- Located in the picturesque village of Hart
- Chain-free opportunity
**Concise Summary:**
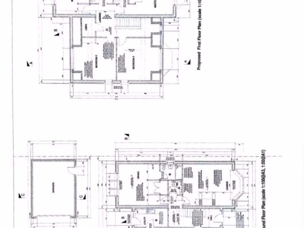
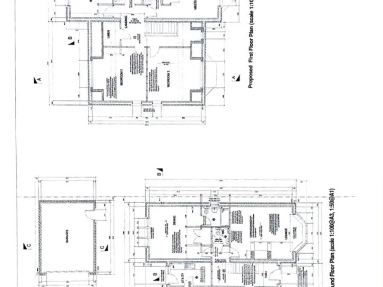
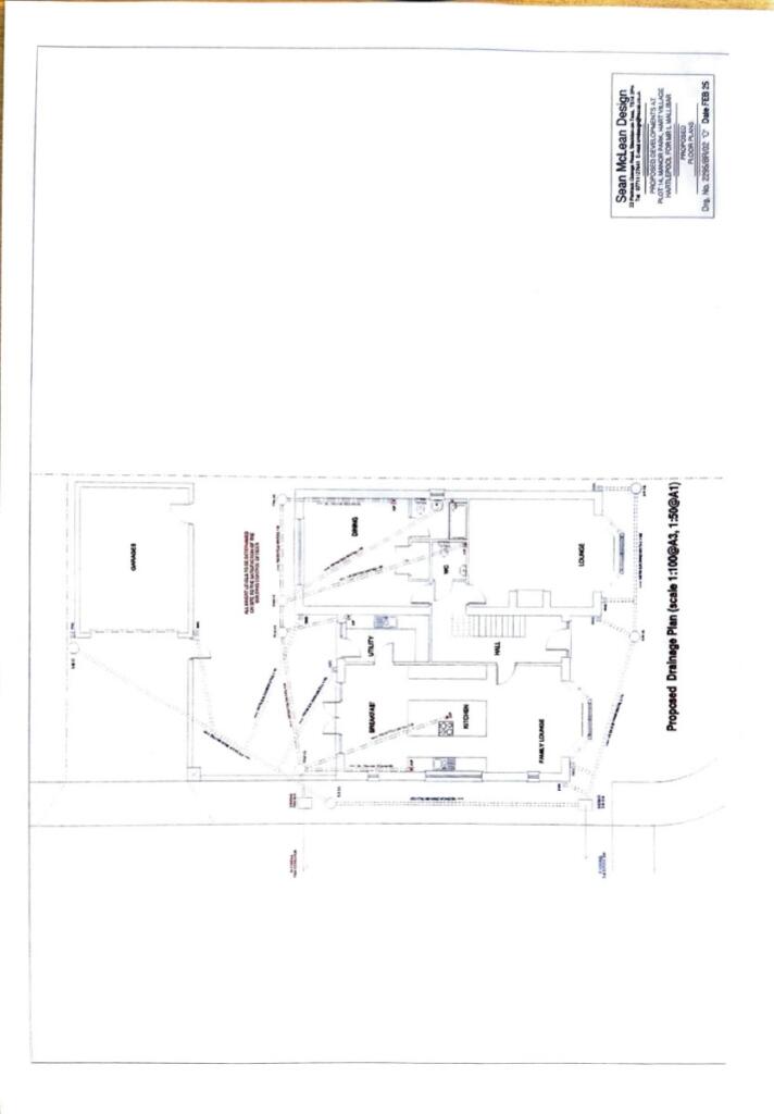
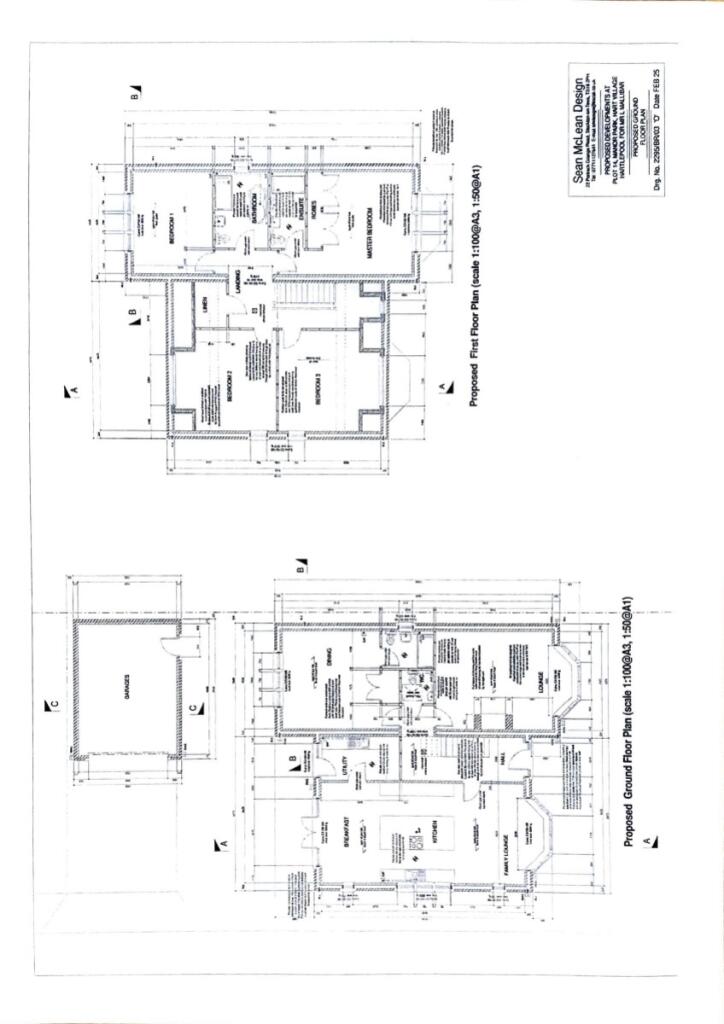
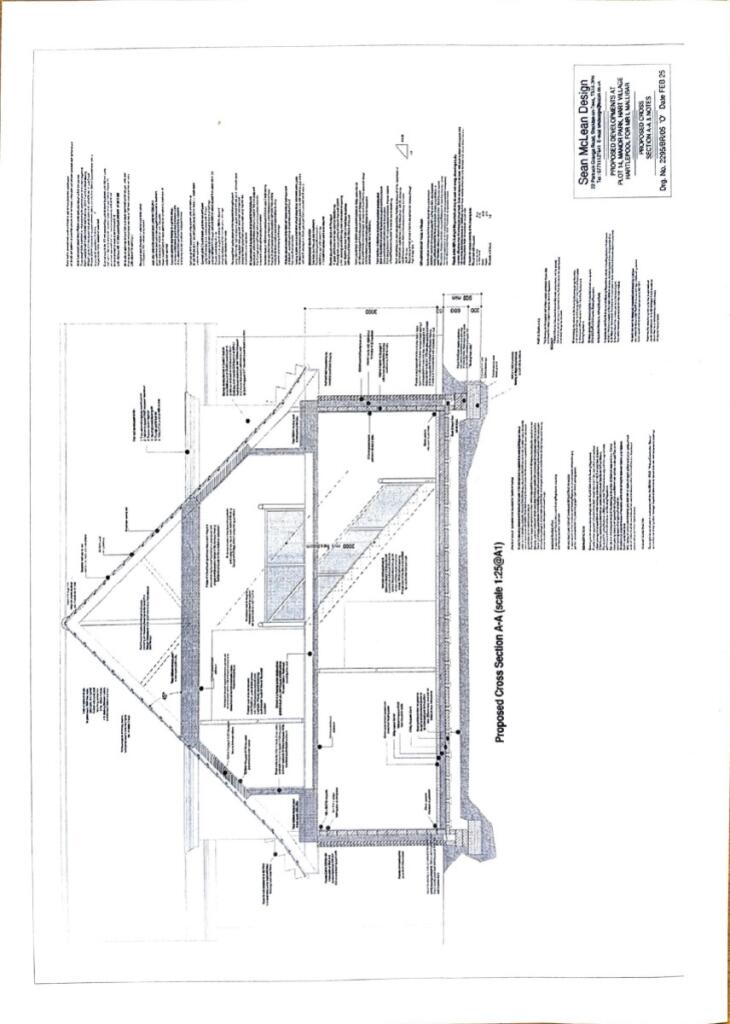
Discover a rare self-build plot in the idyllic village of Hart, with full planning permission and ready-to-build status. This generous, fully serviced 5-bedroom property opportunity comes with professionally completed foundations and the essential utility connections already in place, allowing you to start construction without delay. The opportunity also includes a provision for an eco-friendly heat pump system, enhancing its sustainability appeal.
Positioned amidst the serene beauty of the countryside, this location combines rural charm with convenient access to local amenities, perfect for families or investors seeking a tranquil yet connected lifestyle. Nearby, you’ll find reputable schools, such as the Outstanding-rated St John Vianney Catholic Primary School, ensuring educational needs are well-met. With an average crime rate and a thriving community, Hart offers both comfort and security for future homeowners.
Explore the potential of this exceptional plot and envision the bespoke dwelling you can create—tailored to your unique preferences in one of the area’s most sought-after locations. Enquire today for a viewing and secure your dream home opportunity!
Land for sale in Manor Park, Hart Village, TS27 — £180,000 • 1 bed • 1 bath • 6932 ft²
Land for sale in Manor Park, Hart Village, TS27 — £180,000 • 1 bed • 1 bath • 4306 ft²
Land for sale in Manor Park, Hart Village, TS27 — £180,000 • 1 bed • 1 bath • 4661 ft²
Land for sale in Manor Park, Hart Village, TS27 — £190,000 • 1 bed • 1 bath • 6361 ft²
Property for sale in Hartlepool, Hart, TS27 — £1,000,000 • 1 bed • 1 bath
4 bedroom detached house for sale in Wayfarer Meadows, Hartlepool, TS27 3, TS27 — £299,000 • 4 bed • 2 bath • 1302 ft²


























