**Standout Features:**
- Recently built (2021) with NHBC warranty
- Expansive 4-bedroom, 2-bathroom detached home
- Sleek open-plan kitchen, dining, and snug area
- Landscaped southwest-facing garden ideal for entertaining
- Integral garage and multi-car driveway
- Located in a family-friendly area, close to amenities and schools
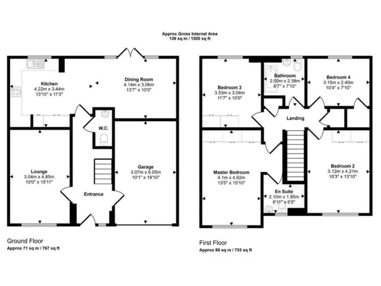
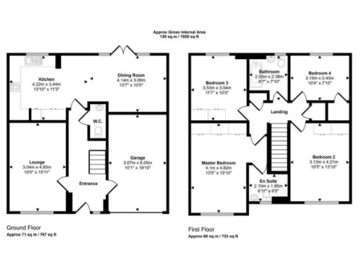
This beautifully presented 4-bedroom detached home in the desirable Hartwell Park, Hartlepool, offers a stylish and high-standard living experience. Built just two years ago, this modern residence features an open-plan kitchen, dining, and snug area that invites natural light through oversized French doors, seamlessly integrating indoor and outdoor spaces for alfresco dining. The property boasts a generous multi-car driveway and an integral garage, while the landscaped rear garden is perfect for family gatherings.
Inside, the spacious hallway with wood flooring introduces a warm ambience, leading to a contemporary living room and a guest washroom. Ascend the wide staircase to find four large bedrooms, three equipped with bespoke fitted wardrobes, and a master suite with an ensuite bathroom designed for relaxation. The family bathroom mirrors the ensuite's style, ensuring a cohesive aesthetic throughout.
Situated in a friendly village environment with excellent mobile signal and fast broadband speeds, this home is conveniently close to local amenities, schools, and easily accessible thoroughfares. Family-friendly schools with strong Ofsted ratings are nearby, enhancing the appeal for families looking to settle down. This exceptional property is a must-see for buyers who appreciate quality design and a tranquil community setting—don’t miss your chance to make it your own!
4 bedroom detached house for sale in Wayfarer Meadows, Hartwell Park, Hartlepool, TS27 — £304,000 • 4 bed • 2 bath • 1539 ft²
4 bedroom detached house for sale in Chastleton Close, HARTLEPOOL, TS26 — £425,000 • 4 bed • 2 bath • 1248 ft²
4 bedroom detached house for sale in Old Cemetery Road, Headland, Hartlepool, TS24 — £250,500 • 4 bed • 2 bath • 1259 ft²
4 bedroom detached house for sale in Old Cemetery Road, Headland, Hartlepool, TS24 — £339,500 • 4 bed • 2 bath • 1227 ft²
4 bedroom detached house for sale in Conroy Close, Hartlepool, TS26 — £480,000 • 4 bed • 2 bath • 1416 ft²
4 bedroom detached house for sale in Old Cemetery Road, Headland, Hartlepool, TS24 — £344,500 • 4 bed • 2 bath • 1227 ft²


























































































































































