**Standout Features:**
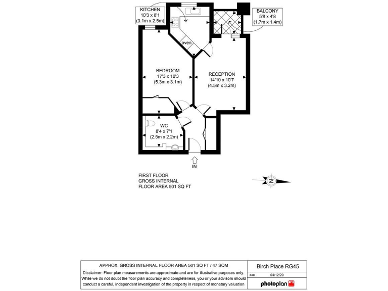
- One-bedroom first-floor retirement apartment.
- Westerly walk-out balcony, perfect for summer evenings.
- Located in an award-winning Retirement Living Plus development designed for those over 70.
- Modern kitchen with integrated appliances, spacious living area, and fitted shower room.
- Communal amenities include a bistro-style restaurant, wellness suite, landscaped gardens, and communal lounge.
- 24-hour emergency call system and onsite management for peace of mind.
- Additional care packages available to accommodate individual support needs.
- Excellent mobile signal and ultrafast broadband.
- Chain-free opportunity with a long lease remaining (996 years).
**Summary:**
Step into comfort and convenience with this modern one-bedroom apartment located in the prestigious Birch Place retirement community in Crowthorne. Designed exclusively for residents over the age of 70, this inviting space features a warm, open living area and a fully fitted kitchen that seamlessly connects to the outdoor balcony, where you can unwind and soak up summer sunsets. The development offers a wealth of amenities, including a bistro, landscaped gardens, and a wellness suite, ensuring a vibrant lifestyle surrounded by supportive community settings.
Crowthorne, known for its affluence and tranquility, provides a perfect backdrop with nearby shopping options, cozy cafés, and picturesque walking routes at Dinton Pastures Country Park. Enjoy added security with 24-hour emergency services and on-demand domestic support tailored to your needs. Whether you're seeking a secure environment or a chance to foster new connections, this property offers a unique blend of independence and community. Priced at £230,000, this turn-key residence won't be available for long—envision your new chapter at Birch Place today!
1 bedroom apartment for sale in Dukes Ride, Crowthorne, Berkshire, RG45 6GT, RG45 — £199,950 • 1 bed • 1 bath • 565 ft²
1 bedroom apartment for sale in Dukes Ride, Crowthorne, Berkshire,, RG45 — £210,000 • 1 bed • 1 bath • 570 ft²
1 bedroom apartment for sale in Birch Place, Dukes Ride, Crowthorne, RG45 — £230,000 • 1 bed • 1 bath • 808 ft²
1 bedroom apartment for sale in Birch Place, Dukes Ride, Crowthorne, RG45 — £240,000 • 1 bed • 1 bath • 644 ft²
2 bedroom apartment for sale in Dukes Ride, Crowthorne, RG45 — £360,000 • 2 bed • 1 bath • 840 ft²
1 bedroom retirement property for sale in Birch Place, Crowthorne, RG45 — £220,000 • 1 bed • 1 bath • 641 ft²














































































