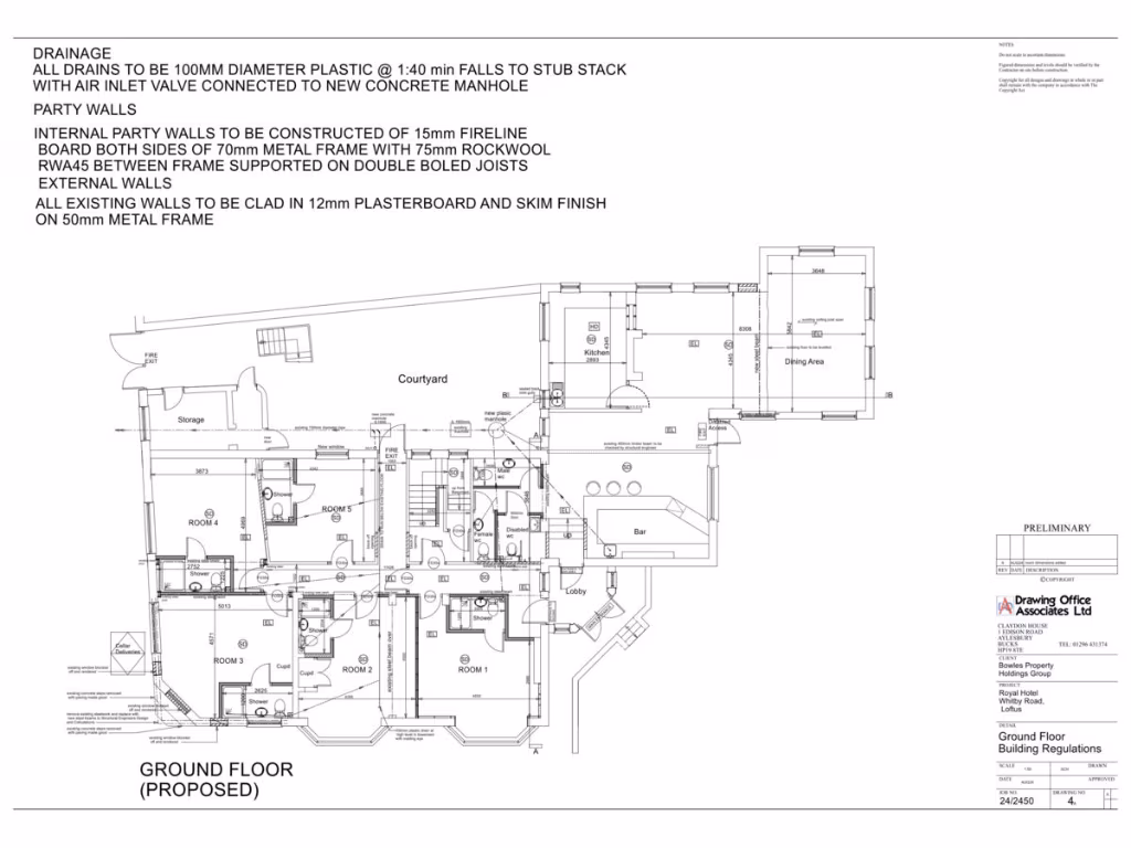
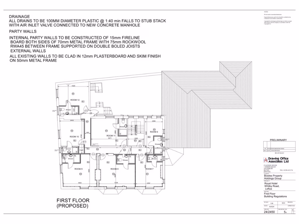
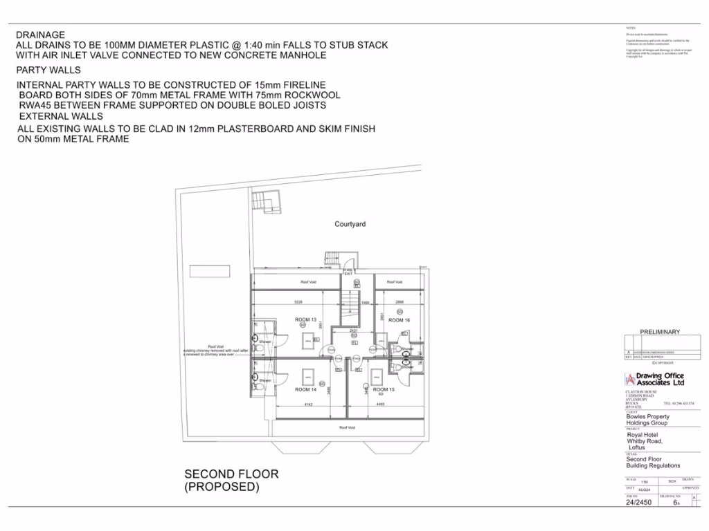
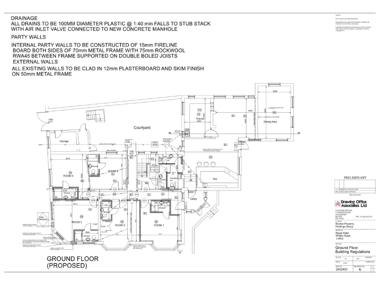
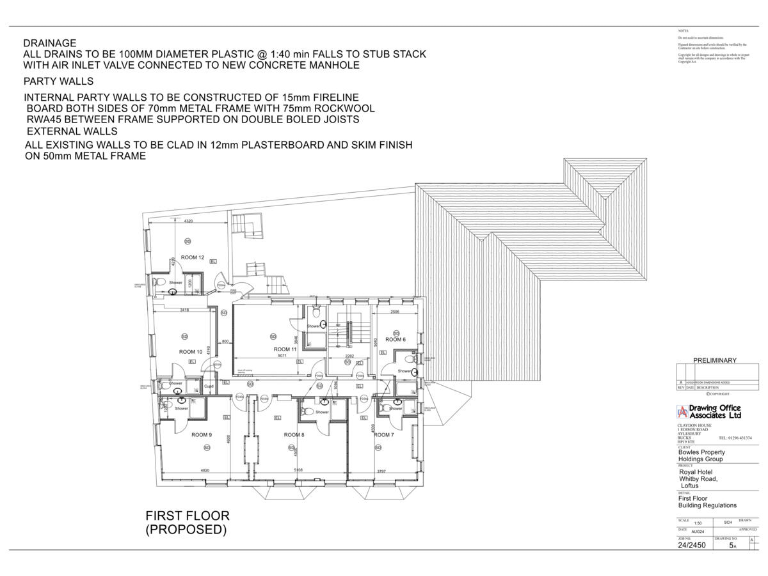
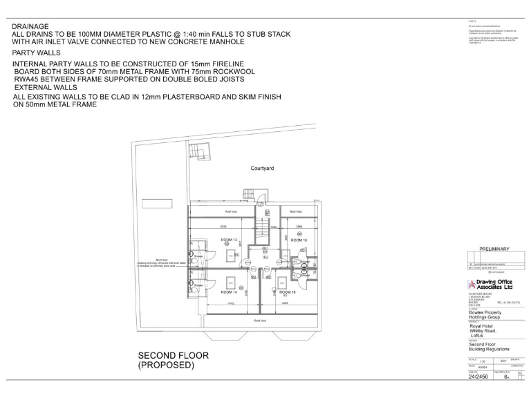
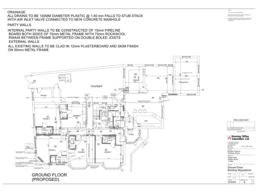
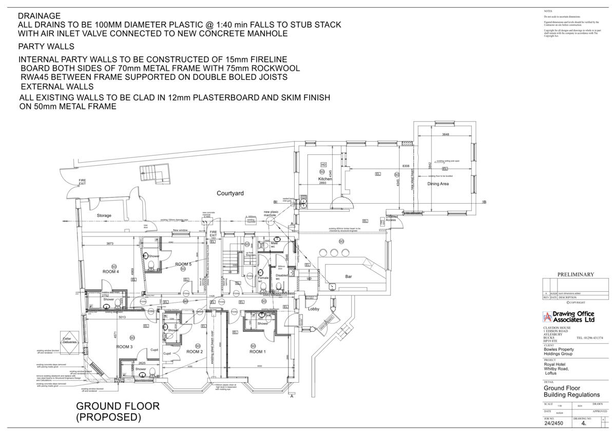
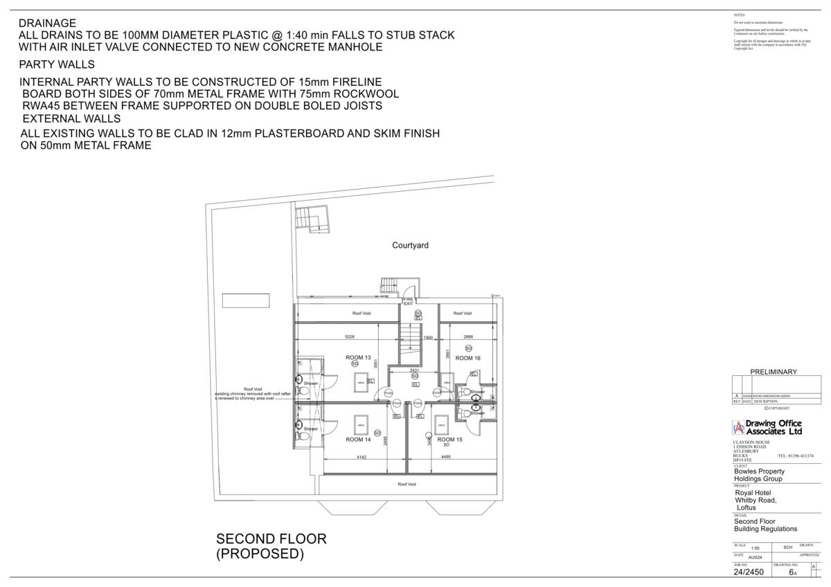
Planning permission in place for a 16-room hotel with bar and restaurant.
Freehold block over 500 sq m (approx. 5,414 sq ft)
This freehold block occupies over 500 sq m (approx. 5,414 sq ft) and has full planning permission for a 16-bedroom hotel with licensed bar and restaurant (Ref: R/2024/0549/FF). A brand new roof has been recently fitted and there is a large off-street car park with space for 12–14 vehicles — useful for guest turnover and events. The building currently requires full renovation throughout; a video of internal condition is available on request to assess scope and costs.
The property is offered at a guide price of £189,995 and includes a buyer’s premium (1% + VAT, minimum £2,995 + VAT) with staged payment on reservation and exchange — purchasers should factor this into acquisition costs. The location is 5 miles from a popular coastal town and benefits from excellent mobile signal and fast broadband, supporting hospitality or short-stay operations. Local area indicators show higher deprivation and elevated crime rates; consider security and local lettings strategy when planning use.
For investors this is a conversion/refurbishment opportunity with planning in place to reduce consent risk. The building’s size, parking provision and seaside-proximate location create clear income potential once renovated and fitted out as a small hotel with food and beverage facilities. Conversely, expect significant capital expenditure: full internal refurbishment, services upgrades, compliance with current building regulations and fit-out for licensed trading.
Hotel for sale in Whitby Road, Loftus, Saltburn-by-the-sea, TS13 — £189,995 • 1 bed • 1 bath • 5414 ft²
8 bedroom serviced apartment for sale in Newcomen Terrace, Redcar, North Yorkshire, TS10 — £500,000 • 8 bed • 1 bath
7 bedroom house for sale in High Street, Loftus, TS13 — £295,000 • 7 bed • 6 bath • 2613 ft²
Land for sale in Land at Coral Street, Saltburn-by-the-sea, TS12 — £300,000 • 1 bed • 1 bath • 16553 ft²
Commercial property for sale in Moonfleet, The Square, Skinningrove, Saltburn-By-The-Sea, TS13 4BD, TS13 — £1,000,000 • 7 bed • 7 bath • 5640 ft²
Hotel for sale in The Captain Cook Inn, 60 Staithes Lane, Staithes, TS13 5AD, TS13 — £899,000 • 1 bed • 1 bath • 2089 ft²


























































