High-spec detached property with annexe and extensive entertainment space.
Over 6,000 sq ft of living space across main house and annexe
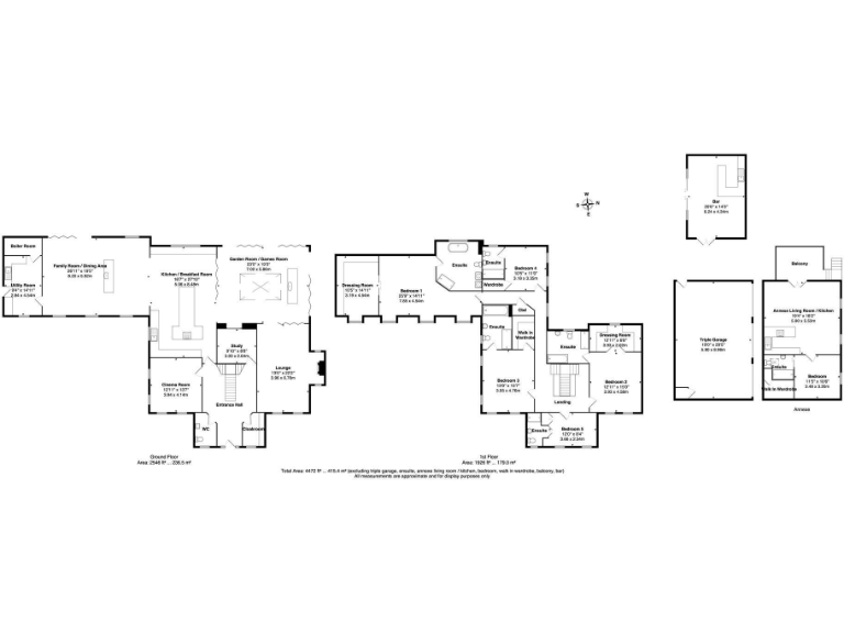
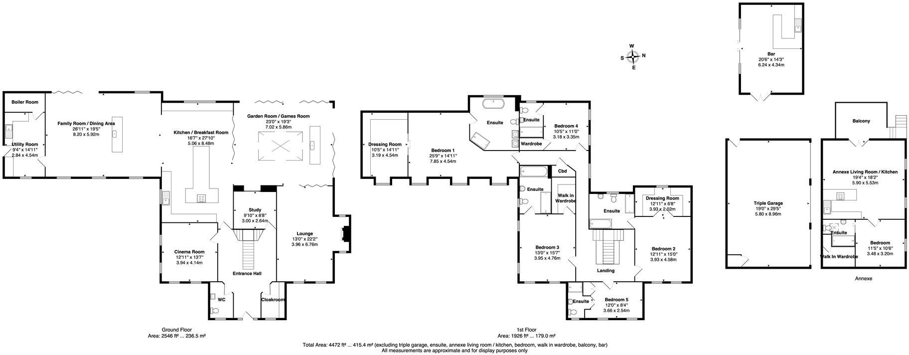
Set on a substantial plot overlooking Collingtree Park Golf Course, this high-spec detached home offers flexible living for extended families. The principal residence has five double bedrooms all with ensuites, while a self-contained one-bedroom annexe provides private space for guests or multi-generational living. The heart of the house is a spacious open-plan kitchen and living area that opens via bi-folds to a large porcelain patio and landscaped gardens.
Outdoor entertaining is a strength here: a 30 sqm insulated garden room with bar, covered hot tub and deck, large lawned areas and irrigation make the grounds easy to enjoy. Practical features include electric gated access, a triple garage with electric doors (currently used as a gym), multiple car charging points, CCTV and ample driveway parking. Broadband is fast and mobile signal is excellent.
This is a good family location close to well-regarded primary and secondary schools, with easy access to the M1 and town centre amenities. The scale and specification will suit buyers seeking generous living and entertaining space in a quiet, affluent suburb.
Considerations: the property and extensive grounds will carry higher running and upkeep costs than a standard family home. The triple garage has been adapted as a gym, which reduces internal secure vehicle storage unless reinstated. Viewing is recommended to appreciate layout, quality and the park views.
5 bedroom detached house for sale in Belfry Lane, Collingtree Park, Northampton, NN4 — £1,000,000 • 5 bed • 4 bath • 3488 ft²
5 bedroom detached house for sale in Belfry Lane, Collingtree Park, NN4 — £1,100,000 • 5 bed • 4 bath • 3354 ft²
5 bedroom detached house for sale in Medinah Close, Northampton, NN4 — £1,525,000 • 5 bed • 4 bath • 4000 ft²
4 bedroom detached house for sale in Spyglass Hill, Northampton, NN4 — £800,000 • 4 bed • 3 bath • 2941 ft²
5 bedroom detached house for sale in Gardenfield Crescent, Collingtree Park, Northampton, Northamptonshire, NN4 — £600,000 • 5 bed • 3 bath • 1775 ft²
5 bedroom detached house for sale in Belfry Lane, Collingtree, NN4 0PB, NN4 — £965,000 • 5 bed • 3 bath • 2936 ft²






































































































































































































