**Standout Features:**
- Leasehold term: 72 years remaining
- No onward chain
- Two bedrooms and a family bathroom
- Modern kitchen with partial renovation
- Allocated balcony
- Excellent mobile signal and fast broadband speeds
- Close transport links to Oxford city centre
**Notable Concerns:**
- Short lease might limit mortgage options
- Average crime rate in the area
- No insulation in cavity walls
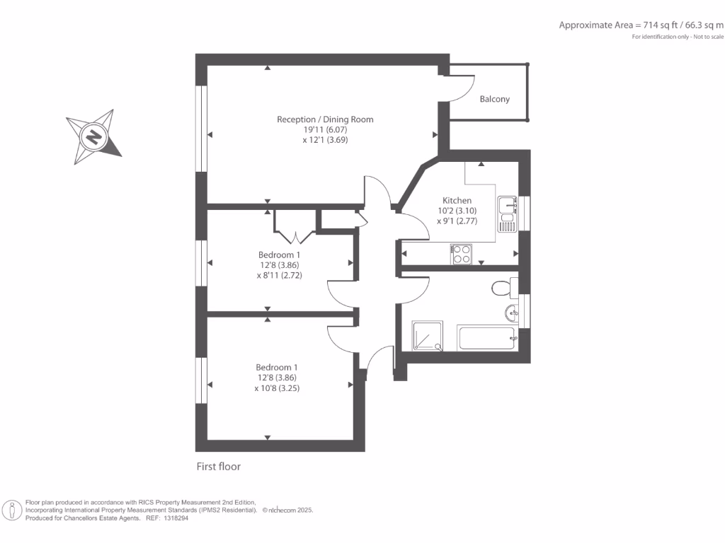
Discover this charming two-bedroom first-floor flat, perfectly situated for both accessibility and comfort. With gas central heating, double glazing, and a modern kitchen, this well-presented apartment features ample living space and a cozy balcony, making it an ideal fit for first-time buyers or investors seeking a property in dynamic urban surroundings.
Although the property boasts attractive amenities and is chain-free, potential buyers should note the remaining 72 years on the lease, which could pose mortgage challenges. The average-sized apartment exists in a vibrant area, close to highly rated primary and secondary schools, ensuring educational opportunities for families. With quick transport links to Oxford city centre, this gem promises lifestyle convenience amidst an urban cultural mix.
Act swiftly—properties like this are often snapped up quickly due to their desirable features and prime location!
2 bedroom flat for sale in Littlemore, East Oxford, OX4 — £200,000 • 2 bed • 1 bath • 653 ft²
2 bedroom flat for sale in East Oxford, Oxford, OX4 — £250,000 • 2 bed • 1 bath • 656 ft²
1 bedroom flat for sale in Headington, Oxford, OX3 — £150,000 • 1 bed • 1 bath • 322 ft²
2 bedroom flat for sale in Headington, Oxfordshire, OX3 — £230,000 • 2 bed • 1 bath • 764 ft²
2 bedroom flat for sale in Cholesbury Grange, Headington, OX3 — £300,000 • 2 bed • 1 bath • 733 ft²
2 bedroom flat for sale in Cowley, Oxfordshire, OX4 — £270,000 • 2 bed • 1 bath • 547 ft²










































































