Village family home with generous garden and substantial workshop.
- Double-fronted Victorian detached house with period features
- Large corner gardens, private and lawned with seating areas
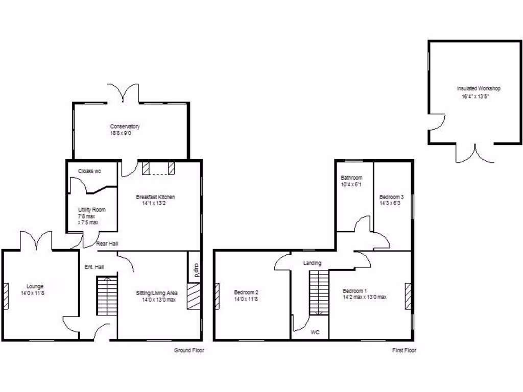
- Detached insulated workshop with mezzanine, ideal home office
- Conservatory overlooks rear garden, links to farmhouse kitchen
- PVC double glazing fitted (units pre-2002) and gas central heating
- Solid brick walls as built; no added wall insulation assumed
- Medium flood risk; check insurance and local flood history
- Broadband slower than urban areas; speeds up to ~56 Mbps
This double-fronted Victorian detached house sits on a large corner plot in the rural village of Wroot, offering substantial outdoor space and a detached insulated workshop with mezzanine — ideal for a home office, hobby room or storage. Inside, generous reception rooms, a farmhouse-style kitchen and a conservatory provide flexible family living with period features such as high skirtings, fireplaces and a spindle staircase.
The house is liveable now with mains gas central heating and PVC double glazing; the bathroom is modern and the layout suits family life with a ground-floor WC, utility room and three bedrooms upstairs. The sizeable garden gives scope for children’s play, vegetable beds or simple landscaping to create private outdoor living.
Notable practical points are factual: the property predates 1900 and has solid brick walls with no known added insulation, double glazing installed before 2002, and the boiler age is unspecified — buyers should budget for energy-efficiency improvements. There is a medium flooding risk for the area and broadband speeds are slow compared with urban locations. Internal viewing is advised to assess condition and any modernisation needs.
Overall this is a characterful village home on a generous plot, suited to a family wanting countryside living with easy access to Doncaster and Bawtry, or to someone seeking a period property with clear scope for sympathetic updating and energy upgrades.
3 bedroom bungalow for sale in High Street, Wroot, Doncaster, DN9 — £379,950 • 3 bed • 2 bath • 1164 ft²
7 bedroom detached house for sale in Tickhill Road, Balby, Doncaster, DN4 — £330,000 • 7 bed • 2 bath • 2162 ft²
3 bedroom detached house for sale in The Meadows, Westwoodside, Doncaster, DN9 — £365,000 • 3 bed • 3 bath • 1413 ft²
5 bedroom detached house for sale in Station Road, Bawtry, Doncaster, DN10 — £600,000 • 5 bed • 2 bath • 1712 ft²
5 bedroom detached house for sale in Station Rd, Bawtry, Doncaster, DN10 6PT, DN10 — £600,000 • 5 bed • 2 bath • 2421 ft²














































































