**Standout Features:**
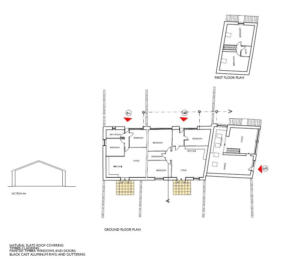
- Full planning permission for conversion into 11 holiday dwellings (Planning Number: 23C280L).
- Rural location on the edge of Capel Coch, Isle of Anglesey.
- Expansive views of surrounding countryside.
- Close proximity to Llangefni, A55 expressway, and local beaches.
- Low crime rate and strong community feel.
**Potential Concerns:**
- Existing structures require significant renovation.
- Current state of the property is derelict and may need substantial investment.
- Located in a remote area with limited amenities nearby.
**Summary:**
Discover a fantastic development opportunity nestled in the serene setting of Capel Coch on the picturesque Isle of Anglesey. This property boasts planning permission for the conversion of existing farm outbuildings into 11 attractive holiday dwellings, perfect for capitalizing on the area's growing tourism appeal. With expansive views of the rolling countryside, this site offers a tranquil escape while remaining conveniently close to local amenities in Llangefni and the stunning coastline.
While the traditional stone buildings are in a derelict state and will require comprehensive renovation, their rustic charm provides a solid foundation for transformation into charming accommodations. With ample outdoor space and a generous site layout, the potential for additional landscaping or gardens is significant. This unique investment opportunity presents a chance to create a lucrative venture set against the backdrop of Anglesey’s natural beauty—don’t miss out on this rare chance to be part of the thriving holiday rental market.
3 bedroom character property for sale in Llanfairynghornwy, Anglesey, LL65 — £775,000 • 3 bed • 1 bath • 1921 ft²
3 bedroom barn conversion for sale in Pentrefelin, Amlwch, Anglesey, LL68 — £175,000 • 3 bed • 2 bath • 568 ft²
3 bedroom detached house for sale in Pentrefelin, Amlwch, Anglesey, LL68 — £335,000 • 3 bed • 2 bath
Residential development for sale in Pentraeth, Isle of Anglesey, LL75 — £1,500,000 • 14 bed • 4 bath • 4464 ft²
Property for sale in (Plot Adj to To Gwyrdd), Four Mile Bridge, Anglesey, LL65 — £300,000 • 1 bed • 1 bath • 18589 ft²
Detached house for sale in Holyhead, LL65 — £175,000 • 1 bed • 1 bath














































































































