Generous private plot with open countryside views and versatile living spaces.
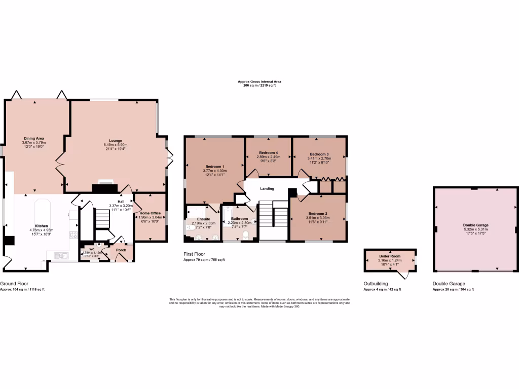
- Spacious four-bedroom detached house with en-suite and family bathroom
- Large private rear garden backing onto open countryside
- Extended living/dining kitchen with bi-fold doors and home office
- Unique in/out gravel driveway plus detached double garage with flat roof
- Oil-fired boiler and radiators; not on community fuel supply
- Energy Rating D; property from 1967–75 may need modernising
- Council Tax Band F (relatively expensive for running costs)
- Fast broadband, very low local crime, village location
Set on a generous plot abutting open countryside, this well-presented four-bedroom detached home suits a growing family seeking space and village life. The ground floor centres on an extended living/dining kitchen with bi-fold doors to the patio, an extended lounge and a useful ground-floor home office. Upstairs there are four good bedrooms, an en-suite to the principal room and a family bathroom.
Outdoor space is a clear strength: a large private lawn, extensive patio with pond, mature planting for privacy, and a unique in/out gravel driveway leading to a detached double garage. The garage has a flat roof and the plot offers scope to modernise or extend subject to planning — attractive for buyers seeking future value.
Practical points to note: heating is by an oil-fired boiler serving radiators (not connected to a community supply) and the property carries an Energy Rating of D. The house was built in the late 1960s–1970s, so some systems and finishes may benefit from updating. Council Tax sits in Band F, reflecting the property’s size and rural location.
Located in the unspoilt village of Rotherby within the Wreake Valley, the home is close to local amenities, country walks and several well-rated primary schools. Broadband speeds are reported as fast and the area records very low crime, making this a comfortable, practical family base in a prosperous rural setting.
4 bedroom detached house for sale in Station Road, Rearsby, LE7 — £500,000 • 4 bed • 2 bath • 1302 ft²
4 bedroom detached house for sale in Westfield Close, Rearsby, Leicester, Leicestershire, LE7 — £500,000 • 4 bed • 3 bath • 1590 ft²
4 bedroom detached house for sale in Wiiskaw House Packington, Ashby-De-La-Zouch, LE65 — £900,000 • 4 bed • 2 bath • 2396 ft²
4 bedroom detached house for sale in West Cross Lane, Mountsorrel, Loughborough, LE12 — £550,000 • 4 bed • 2 bath • 1786 ft²
5 bedroom detached house for sale in Stunning Rear Views on Dwyers Close, Asfordby, LE14 3RG, LE14 — £530,000 • 5 bed • 3 bath • 2200 ft²
4 bedroom detached house for sale in Church Lane, Ratby, LE6 — £650,000 • 4 bed • 1 bath • 1841 ft²






























































































































