Mixed-use freehold with steady trading and clear residential development potential.
Established food business trading since 1978 with loyal customer base
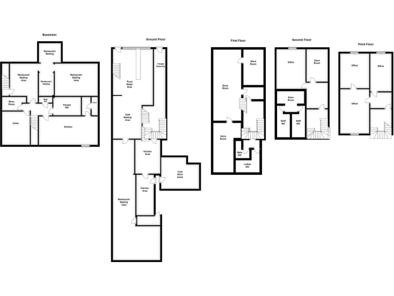
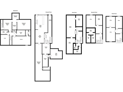
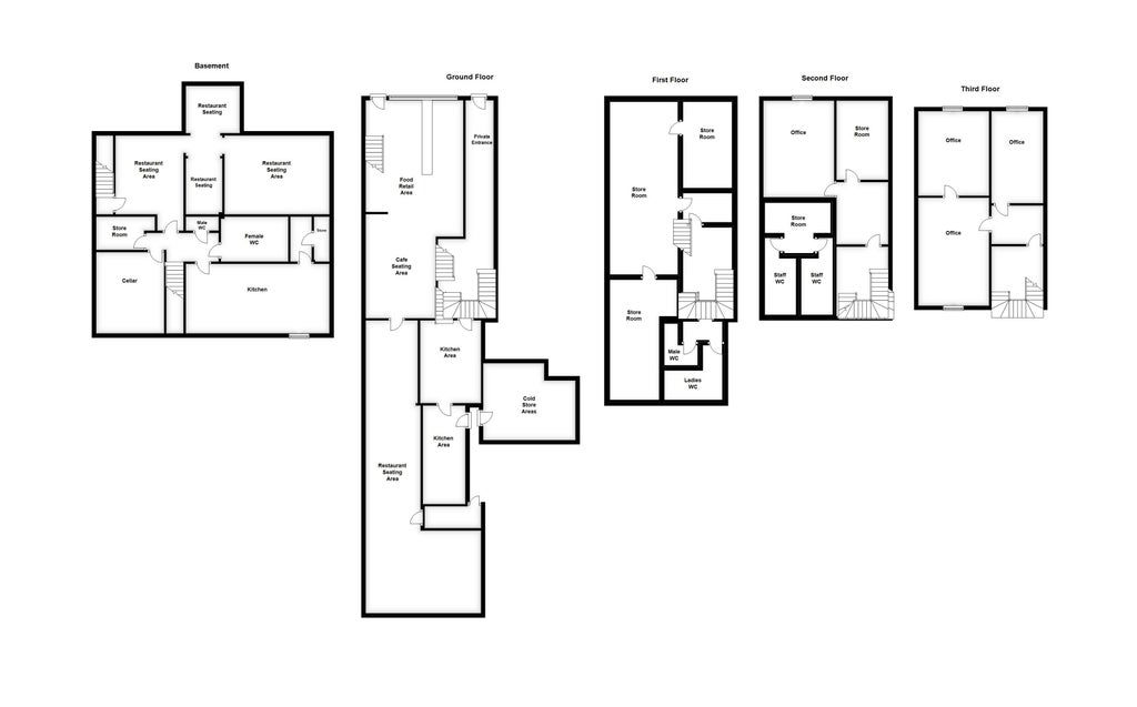
Planning permission approved to convert upper parts into four flats
Grade II listed — characterful but restricts alterations and raises costs
Net turnover ~£700k and net profit ~£140k (year to April 2025)
Basement partly rented to neighbour; £6,000 pa rolling licence cost
No private outdoor space; small town‑centre plot limits expansion
High local crime and deprived area may affect insurance and yields
Upper floors empty and ready for conversion but require specialist work
Sweeney & Todd is a rare central-Reading freehold combining a longstanding food business and clear redevelopment upside. The ground-floor restaurant delivers established turnover and loyal trade, while the empty upper floors already have planning consent for conversion into four residential flats — offering immediate value uplift for a developer or investor.
The building is Grade II listed and retains period character, which supports premium appeal but will limit alterations and add conservation-related costs. The upper parts are vacant and ready for conversion, yet the listed status means specialist works and additional approvals may be required. Half the basement is rented to a neighbour on a rolling licence, creating an ongoing £6,000 pa outflow and some access complexity.
Trading performance is strong: circa £700,000 net turnover with profits around £140,000, supported by a compact, experienced staff team. The central Castle Street location benefits from high footfall, transport links and proximity to retail and leisure hubs — positive for both continued restaurant income and future residential lettings or sales.
Buyers should note material negatives plainly: the property sits in a high-crime, deprived inner-city area which may affect rental yields and insurance costs. There is no external seating or garden and the plot is small, limiting extension potential. Listed status and town-centre constraints mean conversion costs and regulatory hurdles are likely higher than a non-listed scheme.
Pub for sale in LA-524607 - Blagrave Arms, 35 Blagrave Street, Reading RG1 1PW, RG1 — £695,000 • 1 bed • 1 bath
3 bedroom mixed use property for sale in London Street, Basingstoke, Hampshire, RG21 — £1,250,000 • 3 bed • 1 bath • 10494 ft²
Commercial property for sale in 156-158 Friar Street, Reading, Berkshire, RG1 — £1,800,000 • 1 bed • 1 bath • 4349 ft²
High street retail property for sale in Southampton Street, Reading, Berkshire, RG1 — £499,950 • 1 bed • 1 bath • 1402 ft²
Restaurant for sale in Reading, Berkshire, RG2 — £148,000 • 1 bed • 1 bath • 1208 ft²
Restaurant for sale in Reading, Berkshire, RG4 — £99,000 • 1 bed • 1 bath • 1529 ft²






































































