Contemporary village home with garden and ample parking.
Four bedrooms with refitted en suite to master
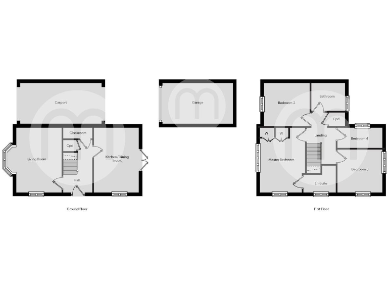
This well-presented four-bedroom link-detached house offers a low-maintenance family layout in sought-after Bocking. The ground floor benefits from a cloakroom and a bright living room with a bay window; a refitted kitchen/breakfast room opens via French doors onto an attractive rear garden. Upstairs there are four bedrooms, including a master with a refitted en suite, and a family bathroom.
Practical highlights include a single garage, carport parking for two vehicles, mains gas central heating, and double glazing. The property is freehold and was constructed in the late 2000s, so it should suit buyers looking for modern build standards without major immediate works.
Important considerations: the internal floor area is modest at about 1,023 sq ft, so families wanting large, expansive rooms should note the compact footprint. The local area is described as an ageing urban community and some nearby schooling includes one secondary rated as 'requires improvement'.
For buyers seeking a comfortable, contemporary family home with good parking and a manageable garden in a popular village setting, this house represents sensible value within the stated guide price range.
4 bedroom link detached house for sale in Samuel Courtauld Avenue, Braintree, Essex, CM7 — £425,000 • 4 bed • 2 bath • 707 ft²
4 bedroom link detached house for sale in Dyers Mead, Braintree, CM7 — £475,000 • 4 bed • 2 bath • 1443 ft²
4 bedroom terraced house for sale in Bovingdon Road, Braintree, Essex, CM7 — £425,000 • 4 bed • 3 bath • 1600 ft²
4 bedroom detached house for sale in Canterbury Grange, Braintree, CM7 — £450,000 • 4 bed • 1 bath • 1012 ft²
4 bedroom detached house for sale in Church Meadows, Bocking, Braintree, CM7 — £425,000 • 4 bed • 2 bath • 1314 ft²
4 bedroom link detached house for sale in Peter Taylor Avenue, Bocking, CM7 — £480,000 • 4 bed • 2 bath


















































































