Small freehold block with garden and clear refurbishment upside for investors.
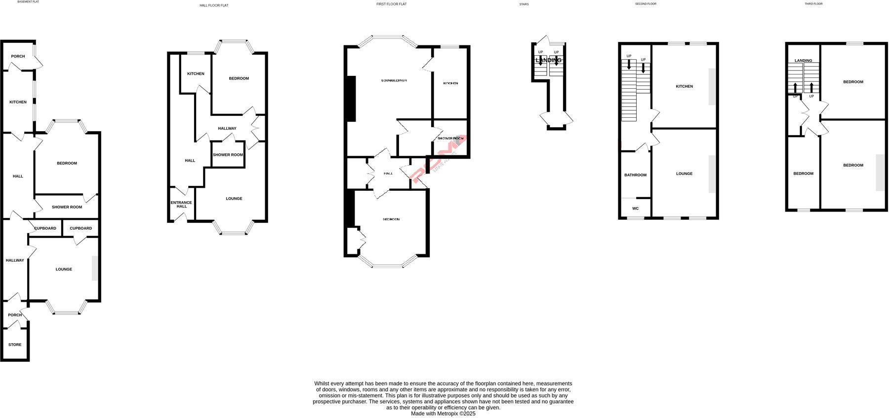
- Four self-contained flats: three 1-beds and one 3-bed maisonette
- Freehold; currently partly tenanted, maisonette vacant
- Projected gross rent circa £38,000 per year when fully let (vendor figure)
- Requires modernisation: electric heating, older double glazing, no wall insulation
- Rear paved courtyard and a small private basement courtyard/garden
- Area very deprived with above-average crime; management likely required
A substantial Victorian mid-terrace converted into four self-contained flats: three one-bedroom units and a large three-bedroom maisonette over the top two floors. The building is offered freehold with some flats tenanted and the maisonette currently vacant, making it a straightforward portfolio addition for an investor.
The block is described as needing renovation and modernisation: heating is electric storage heaters throughout, glazing is mainly older double glazing, and walls are solid brick with assumed no insulation. These are clear upgrade opportunities that will improve comfort and rental value, but require capital expenditure to complete.
Practical positives include a rear courtyard garden and a private basement courtyard, very cheap council tax (Band A for each flat), no flood risk, excellent mobile signal and direct access to central St Leonards amenities. Projected fully-let income is approximately £38,000 per annum (vendor figure) against a purchase price of £450,000, presenting an income-led investment case if refurbishment costs are managed.
Buyers should note the wider location context: the area is very deprived with above-average crime and is classified as a constrained, cosmopolitan student neighbourhood. That brings steady tenant demand in parts but also means lettings and management may be more hands-on. The property’s small overall footprint and need for modernisation are material factors when assessing yield and exit strategy.
6 bedroom block of apartments for sale in Mount Pleasant Road, Hastings, TN34 — £450,000 • 6 bed • 3 bath • 628 ft²
5 bedroom block of apartments for sale in Cambridge Gardens, Hastings, TN34 — £499,950 • 5 bed • 3 bath • 485 ft²
6 bedroom terraced house for sale in Mount Pleasant Road, Hastings, TN34 — £450,000 • 6 bed • 3 bath • 808 ft²
10 bedroom block of apartments for sale in Linton Road, Hastings, TN34 — £785,000 • 10 bed • 4 bath • 1023 ft²
2 bedroom flat for sale in Pevensey Road, St. Leonards-On-Sea, TN38 — £180,000 • 2 bed • 1 bath • 934 ft²
4 bedroom block of apartments for sale in Gensing Road, St. Leonards-On-Sea, TN38 — £400,000 • 4 bed • 2 bath • 980 ft²






















































































































