Tidy modern house with south garden and garage, ideal for families and commuters.
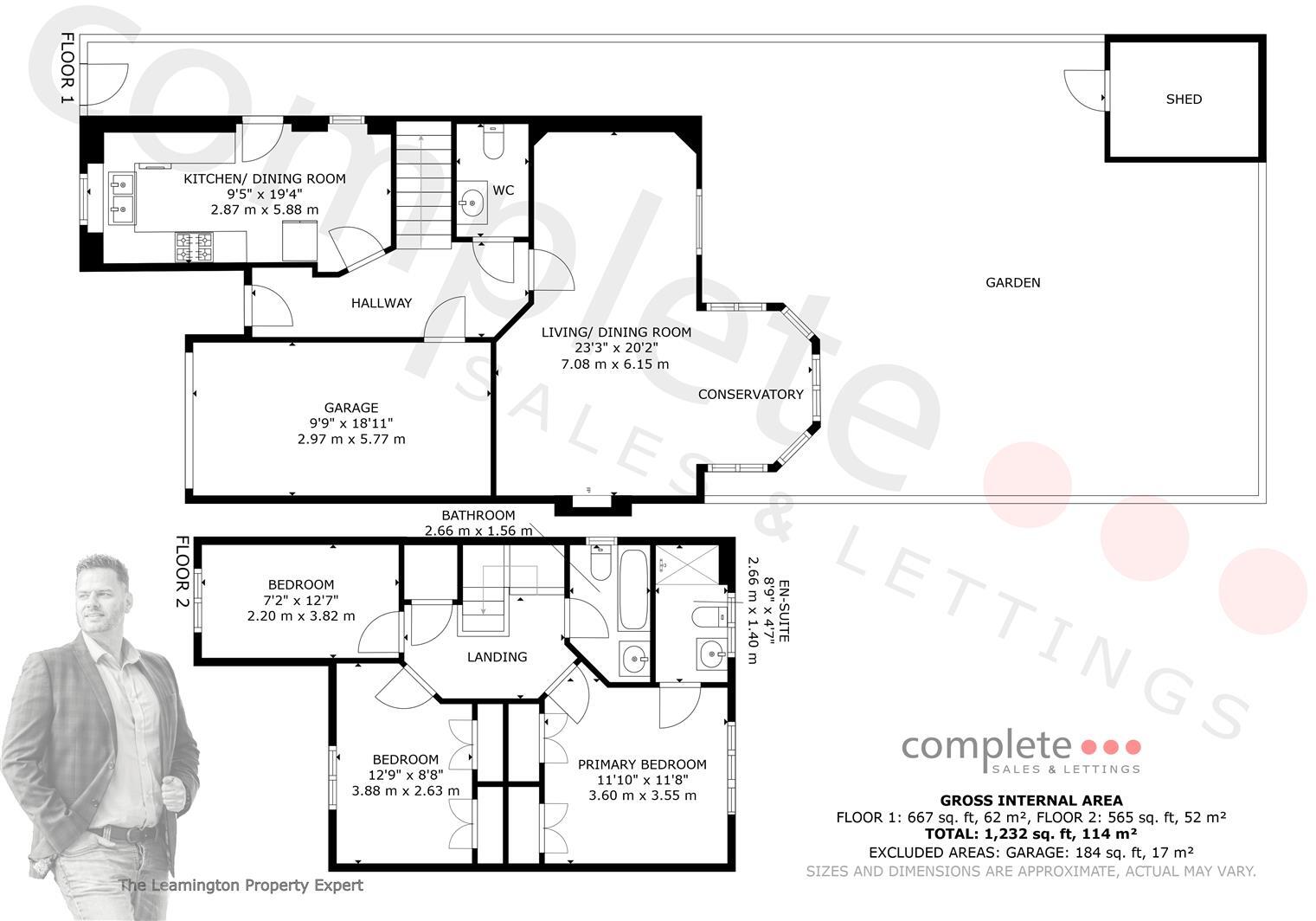
- Detached three-bedroom house with en-suite to main bedroom
- Full-width lounge/diner plus conservatory to the rear
- South-facing garden with paved patio and lawn
- Garage with power and lighting; driveway for two cars
- Built c.2002, modern double glazing and gas central heating
- Conservatory has polycarbonate roof, less energy efficient
- Modest plot depth; garden is comfortable not extensive
- Freehold, no flood risk, low local crime
A well-proportioned detached family home built by Crest Nicholson around 2002, offering three good-sized bedrooms, an en-suite and a full-width lounge/diner. The layout suits everyday family life with a breakfast kitchen, ground-floor guest WC and a conservatory that opens onto the garden. The property is freehold and sits in a quiet cul-de-sac near Leamington & County Golf Club, with easy access to local schools, the M40 and Leamington town centre.
The rear garden faces south and is thoughtfully landscaped with a patio and lawn — a low-maintenance outdoor space for children or seasonal entertaining. Practical parking is provided by a double-width block-paved driveway and an integral garage with power and lighting. The house benefits from modern double glazing, gas central heating via a boiler and generally neutral, well-kept interiors ready for immediate occupation.
Notable practical points: the conservatory has a polycarbonate roof (less thermally efficient than glass), and the plot is modest in depth so outdoor space is comfortable rather than extensive. Room sizes are average for this era of build; buyers seeking larger reception rooms or extensive garden depth should note the footprint. Overall this is a tidy, low-maintenance family home in a very convenient suburban location suitable for families or commuters.
3 bedroom detached house for sale in Wych Elm Drive, Leamington Spa, CV31 — £415,000 • 3 bed • 2 bath • 1201 ft²
2 bedroom semi-detached house for sale in Erica Drive, Whitnash, Leamington Spa, CV31 — £310,000 • 2 bed • 1 bath • 1081 ft²
3 bedroom semi-detached house for sale in Brunel Close, Whitnash, Royal Leamington Spa, CV31 — £350,000 • 3 bed • 1 bath • 1140 ft²
3 bedroom semi-detached house for sale in Heathcote Road, Whitnash, Leamington Spa, Warwickshire, CV31 — £350,000 • 3 bed • 1 bath • 940 ft²
3 bedroom detached house for sale in Ridgewood Close, Leamington Spa, CV32 — £465,000 • 3 bed • 2 bath • 1146 ft²
3 bedroom semi-detached house for sale in Woodward Close, Whitnash, CV31 — £335,000 • 3 bed • 1 bath • 794 ft²


























































































































