**Standout Features:**
- 4-bedroom barn conversion in a desirable rural setting
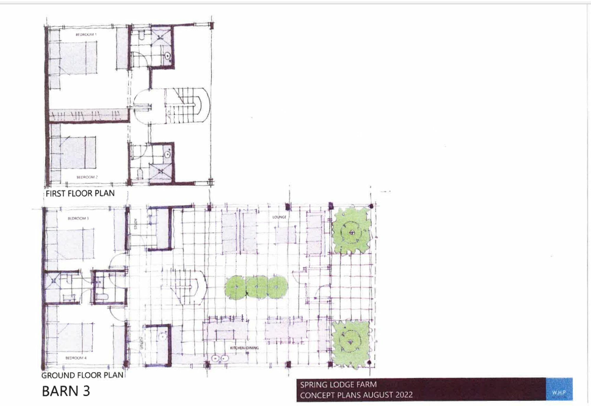
- Potential for a unique and spacious layout with a striking cathedral-style entrance
- Expansive gardens and proximity to local fields
- Freehold tenure offers long-term ownership benefits
- Flexible planning options available for renovation/conversion
**Notable Concerns:**
- Planning consent for the proposed layout has not yet been achieved; submission required by the buyer
- Previous development approvals in the area may offer insights but are not guaranteed
- Average mobile signal and slow broadband speeds may affect connectivity
- Positioned in a locality with above-average crime rates
**Summary:**
Welcome to Barn 3 at Spring Lodge Farm, a unique 4-bedroom barn conversion located on the edge of beautiful open fields in Criddling Stubbs. With its extraordinary potential for transformation, this steel-framed structure can become a stunning family home featuring a captivating cathedral-style entrance and an expansive open-plan living area. Envision a beautifully designed space that emphasizes natural light, thanks to its impressive full-height ceilings and large windows.
The layout includes ground floor living and dining areas, two double bedrooms with shared amenities, and a gallery landing that overlooks the remarkable living space. Upstairs, enjoy two sizeable bedrooms, each with an en-suite, enhancing the property's family-friendly appeal. The generous gardens and potential for additional garage space make this barn a rare find.
While the property requires the buyer to navigate planning permissions, the opportunities are vast, particularly for someone looking to invest in a distinctive and luxurious living experience. Located just a short drive to both the A1 and M62 and nestled near the quaint village of Womersley, this property offers an ideal balance of rural charm and accessibility.
Don’t miss out on this rare opportunity to shape a remarkable home in an idyllic setting—act swiftly to explore this gem before it’s gone!
3 bedroom barn conversion for sale in Barn 4, Spring Lodge Farm, Criddling Stubbs, WF11 — £160,000 • 3 bed • 3 bath
3 bedroom barn conversion for sale in Barn 1b, Spring Lodge Farm, Northfield Lane, Criddling Stubbs, WF11 — £160,000 • 3 bed • 2 bath
3 bedroom barn conversion for sale in Barn 1a, Spring Lodge Farm, Cridling Stubbs, WF11 — £160,000 • 3 bed • 1 bath
3 bedroom barn conversion for sale in Ackworth Park Farm, Pontefract Road, High Ackworth, WF7 — £490,000 • 3 bed • 2 bath • 1662 ft²
4 bedroom semi-detached house for sale in Doncaster Road, Foulby, Wakefield, WF4 — £775,000 • 4 bed • 3 bath • 2335 ft²
4 bedroom barn conversion for sale in The Hayloft at Highfield Barns..., DN5 — £650,000 • 4 bed • 4 bath • 2639 ft²






































