**Standout Features:**
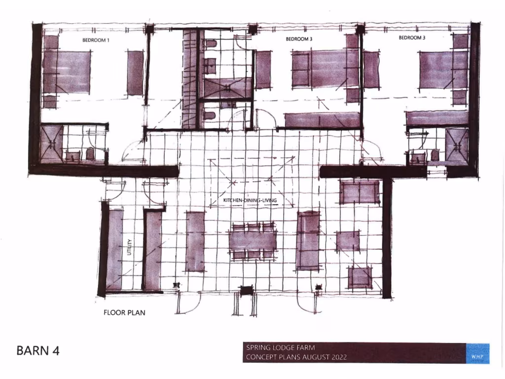
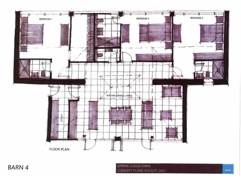
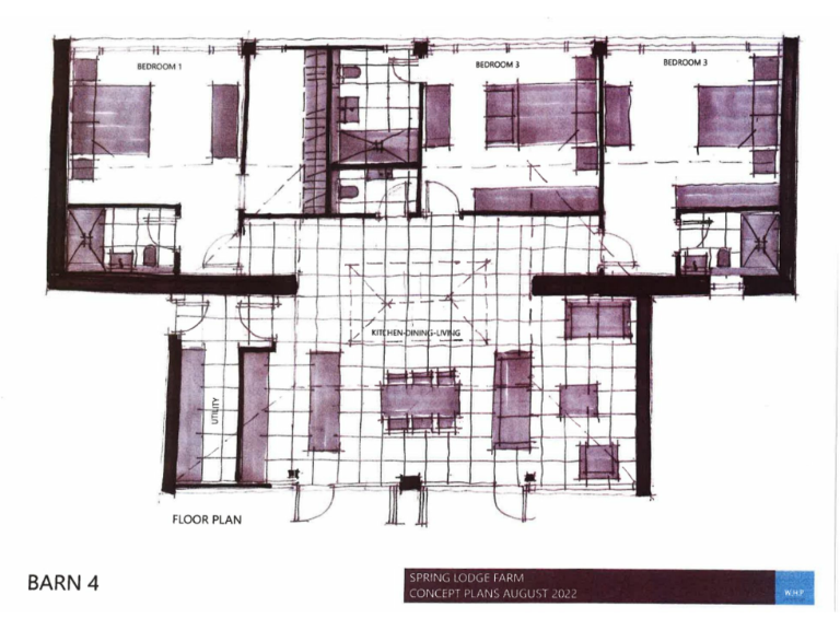
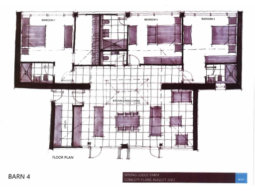
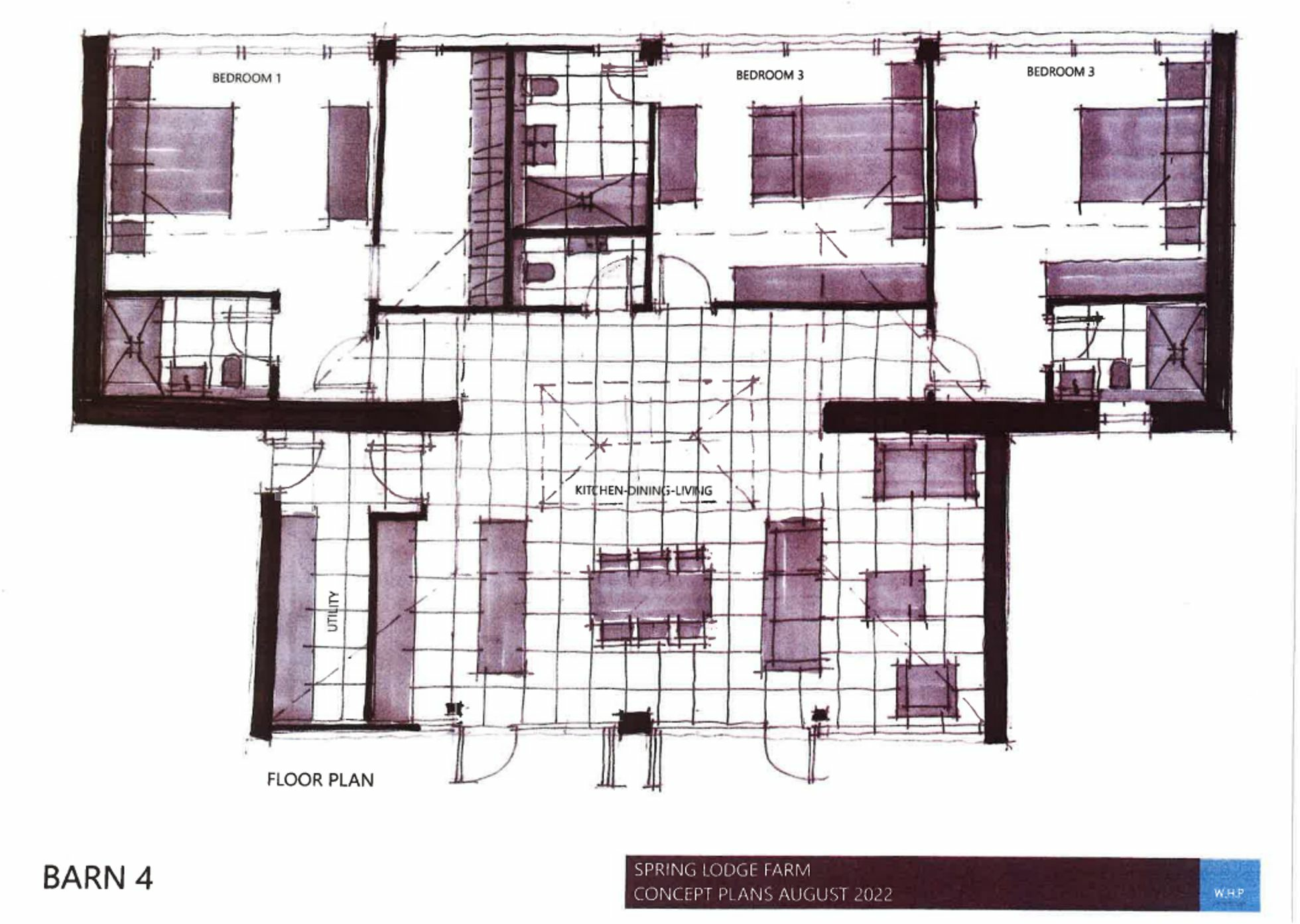
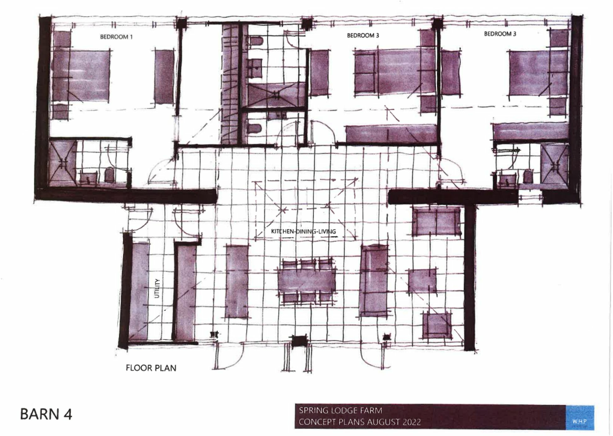
- 3-bedroom single-storey barn conversion with character
- Stunning views over open farmland
- All bedrooms equipped with en-suites; master with a dressing room
- Spacious open-plan living, dining, and kitchen area with extensive glazing
- Detached double garage included
- Located in a scenic former farmyard setting
**Potential Concerns:**
- Property requires renovation; planning consent for layout not yet achieved
- Broadband speeds are very slow; mobile signal is average
- Some areas may experience above-average crime rates
This charming 3-bedroom barn conversion at Spring Lodge Farm presents a unique opportunity for buyers looking to create their dream home in a picturesque rural setting. Nestled amidst beautiful farmland, this property features a spacious open-plan living area, perfect for entertaining and enjoying the serene landscape through its expansive windows. Each of the three generously-sized double bedrooms boasts an en-suite, with the master featuring a large dressing room, offering comfort and convenience.
While the property is unrenovated and awaiting your personal touch, it holds exciting potential for customization, making it ideal for investors or families eager to build a bespoke living space. Although planning consent for the current layout has yet to be obtained, interested buyers can explore options for submission—historical planning permissions in the area suggest that realizing your vision here is quite feasible.
Conveniently located just minutes from major roadways, the peaceful village environment offers a charming atmosphere with nearby amenities, such as well-rated primary schools. Don't miss this opportunity to breathe life into this delightful barn conversion and transform it into an exceptional home in a friendly community setting. Act swiftly, as homes with such potential and character are rare and in demand!
4 bedroom barn conversion for sale in Barn 3, Spring Lodge Farm, Northfield Lane, Criddling Stubbs, WF11 — £200,000 • 4 bed • 4 bath
3 bedroom barn conversion for sale in Barn 1b, Spring Lodge Farm, Northfield Lane, Criddling Stubbs, WF11 — £160,000 • 3 bed • 2 bath
3 bedroom barn conversion for sale in Barn 1a, Spring Lodge Farm, Cridling Stubbs, WF11 — £160,000 • 3 bed • 1 bath
4 bedroom semi-detached house for sale in Doncaster Road, Foulby, Wakefield, WF4 — £775,000 • 4 bed • 3 bath • 2335 ft²
3 bedroom barn conversion for sale in Ackworth Park Farm, Pontefract Road, High Ackworth, WF7 — £490,000 • 3 bed • 2 bath • 1662 ft²
3 bedroom barn conversion for sale in Stone Croft Barn at Highfield Barns..., DN5 — £400,000 • 3 bed • 3 bath • 1552 ft²






































































