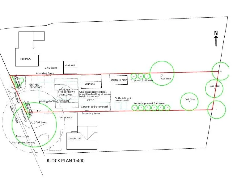
Large plot with annexe and planning consent ideal for renovation or rebuild.
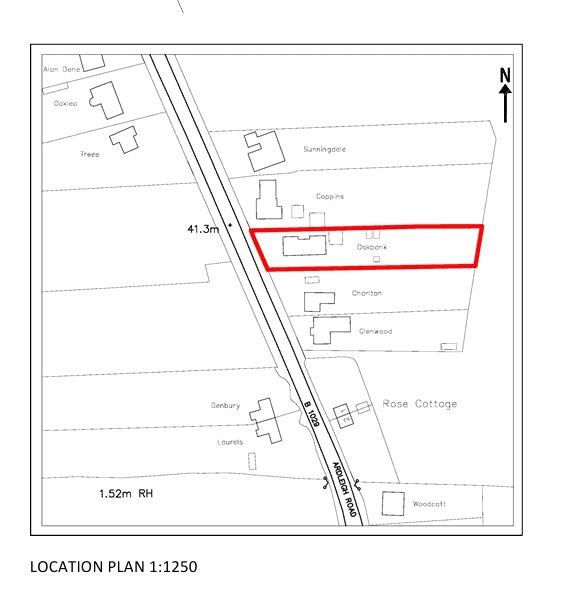
- Detached bungalow on c.0.38 acre plot (STS)
- Separate recently built self-contained annexe
- Full planning permission for replacement dwelling (ref 241930)
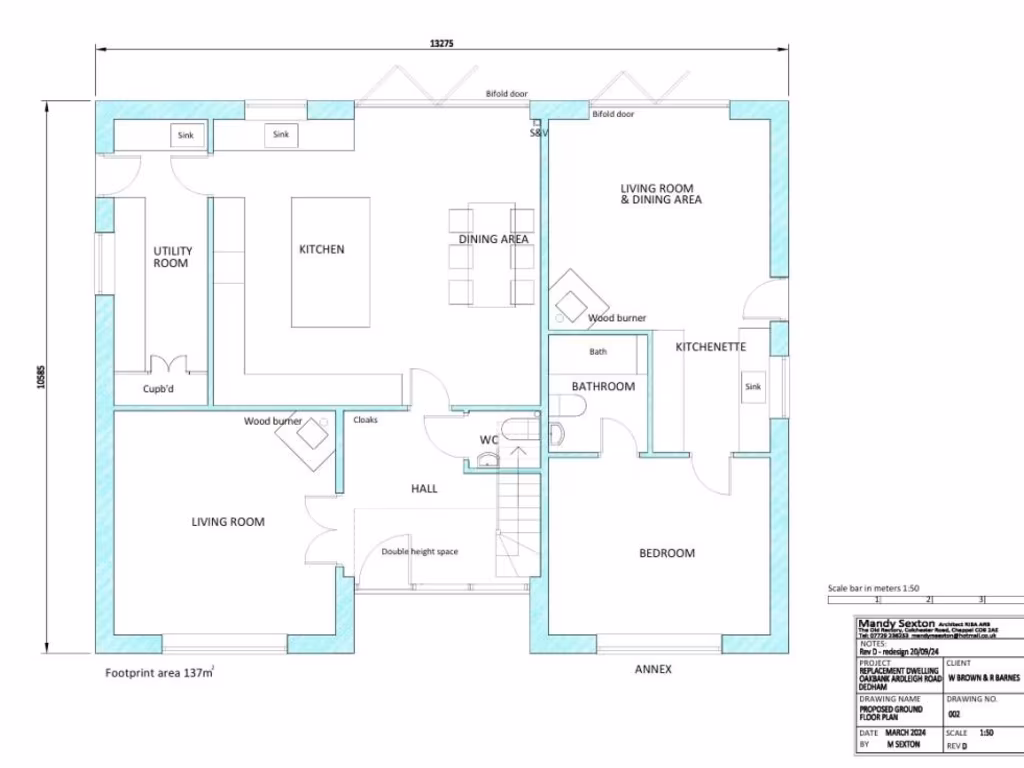
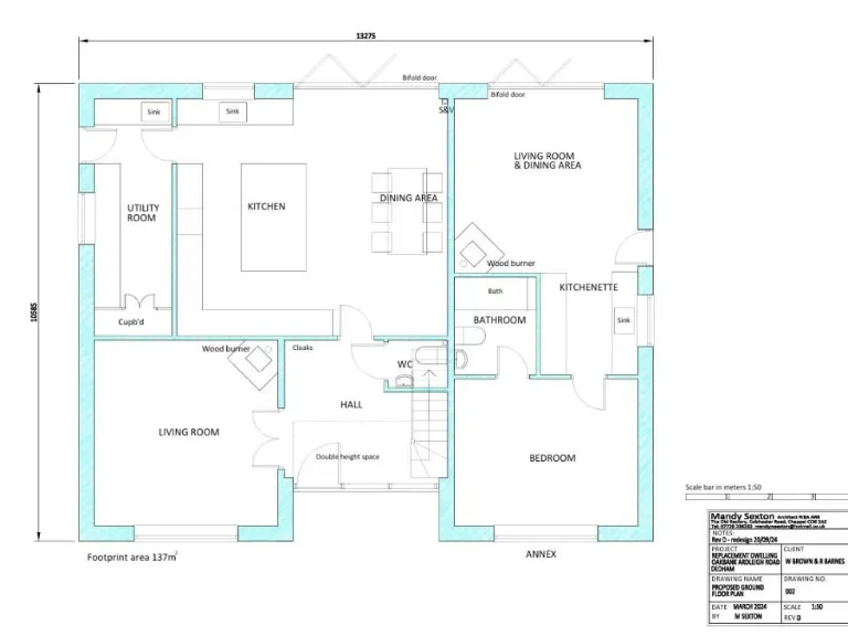
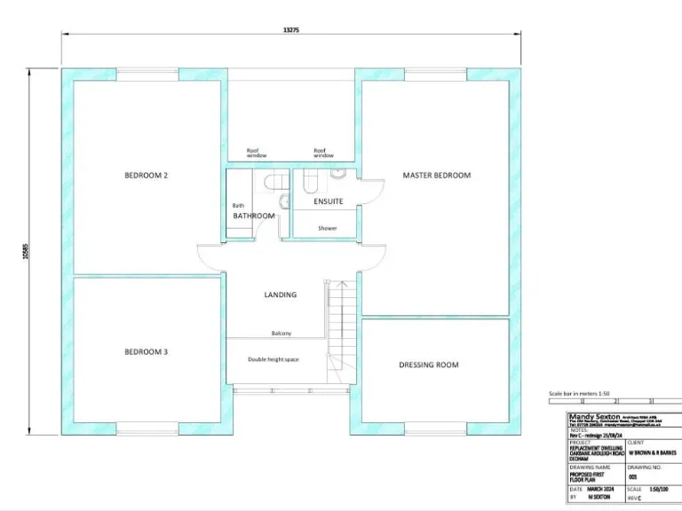
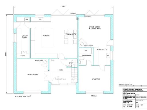
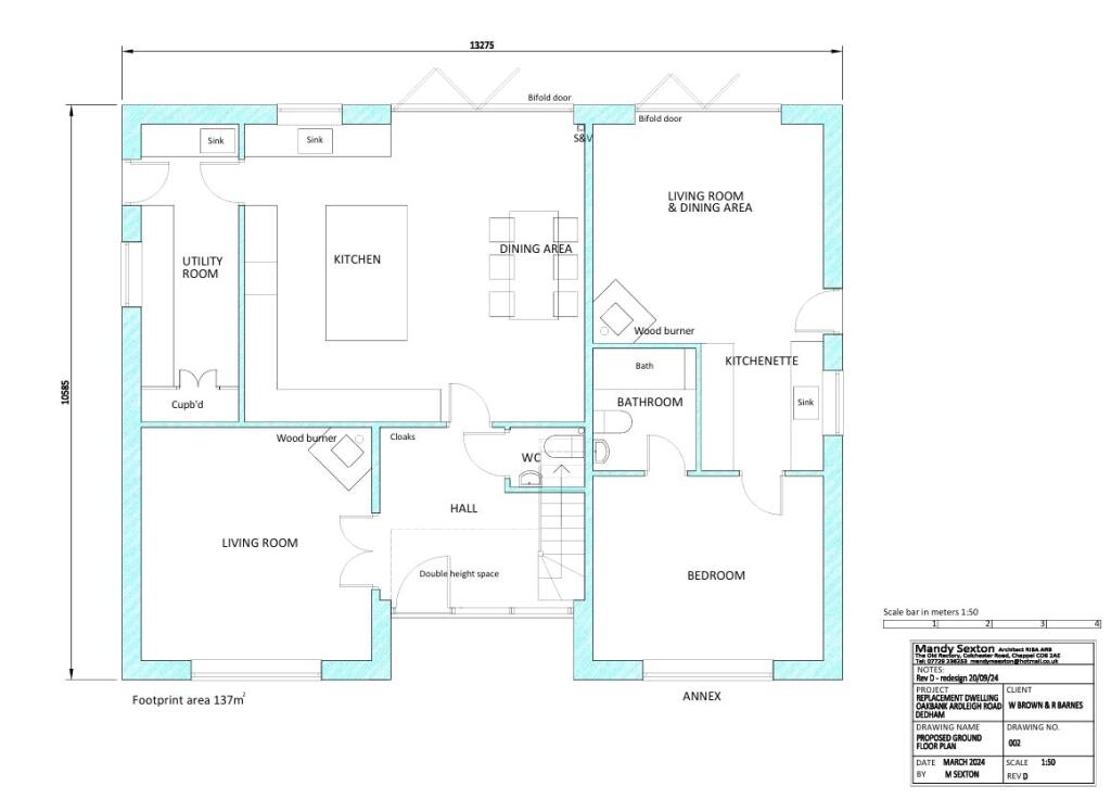
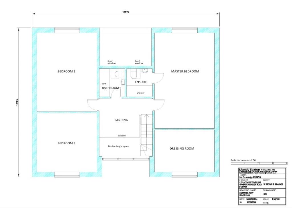
- Three-bedroom main house plus study and two receptions
- East-facing gardens, kitchen garden, chicken coop and beehive
- Oil-fired heating; boiler and radiators (not mains gas)
- System-built walls; no confirmed insulation (assumed)
- Council tax described as expensive
Set on about 0.38 acres (STS) in the sought-after village of Dedham, this detached single-storey bungalow and separate annexe offer flexible living and strong scope for improvement. The main house provides three bedrooms, two reception rooms plus a study, while the recently built annexe adds a self-contained bedroom, sitting room and bathroom — useful for guests, multi‑generational living or rental income.
Practical features include generous off-street parking, an east-facing garden with mature planting, a kitchen garden with chicken coop and beehive, and a range of outbuildings that could serve as storage or a home office. The property has full planning permission for a complete replacement dwelling (Colchester ref: 241930), making it attractive to buyers who wish to rebuild or significantly extend subject to the existing consent.
Buyers should note key service and maintenance points: heating is oil-fired via boiler and radiators, the home is of mid-20th-century system-built construction with no confirmed wall insulation, glazing is double but install date is unknown, and council tax is described as expensive. These factors, together with the property’s average internal size relative to the large plot, mean the home will suit purchasers wanting a project, renovation or redevelopment opportunity rather than a turnkey move-in.
Overall this is a rare rural plot with practical ancillary accommodation and explicit development potential. It will particularly suit downsizers who want single-level living with annexe flexibility, families seeking extra space, or developers/buyers prepared to carry out improvement or replacement works to unlock the site’s full value.
5 bedroom detached house for sale in Ardleigh Road, Dedham, Colchester, Essex, CO7 — £875,000 • 5 bed • 2 bath • 2760 ft²
4 bedroom detached house for sale in Long Road West, Dedham, Colchester, Essex, CO7 — £700,000 • 4 bed • 2 bath • 1507 ft²
2 bedroom bungalow for sale in Princel Mews, Dedham, Colchester, Essex, CO7 — £800,000 • 2 bed • 2 bath • 1163 ft²
4 bedroom bungalow for sale in Slough Lane, Ardleigh, Colchester, Essex, CO7 — £600,000 • 4 bed • 2 bath • 2077 ft²
4 bedroom detached bungalow for sale in Dedham Road, Ardleigh, CO7 — £675,000 • 4 bed • 1 bath • 1205 ft²
6 bedroom detached house for sale in Long Road West, Dedham, CO7 — £1,250,000 • 6 bed • 5 bath • 3188 ft²


























































































































































