CO7 6ES - 4 bedroom detached house for sale in Long Road West, Dedham…

View on Property Piper

4 bedroom detached house for sale in Long Road West, Dedham, Colchester, Essex, CO7

Summary - Inverness, Long Road West, Dedham CO7 6ES

4 bed 2 bath Detached

**Standout Features:**
- Spacious detached family home with two-bedroom self-contained annexe
- Approx 1/2 acre plot enhancing privacy and outdoor space
- Flexible living layout with a large kitchen/dining room, study, and ample reception areas
- Extensive gardens, patios, and well-kept outbuildings
- Low crime rate and fast broadband for convenience
- Located in the desirable village of Dedham

**Summary:**
Discover the perfect blend of space and versatility in this inviting detached family home situated in the picturesque village of Dedham. Spanning around 1,507 sq ft, this property boasts four well-proportioned bedrooms, two bathrooms, and a generous living area with bay windows, creating a warm, gathering atmosphere for family and friends. The modern kitchen/dining room, equipped with contemporary appliances, offers a seamless connection to a delightful patio garden, ideal for entertaining or enjoying quiet evenings outdoors.

The self-contained two-bedroom annexe presents an excellent opportunity for multi-generational living, guest accommodation, or even a home office, all while ensuring privacy and independence. Set back from the road on a half-acre plot, the sprawling outdoor space is perfect for children to explore and play, complemented by various outbuildings for extra storage or hobby space.

With off-street parking and excellent transport links nearby, this home combines comfort, functionality, and a peaceful countryside lifestyle. Enjoy easy access to highly-rated schools and local amenities while benefiting from a low crime rate. This property is a rare find in a sought-after area, so schedule a viewing soon; opportunities like this don’t last long!

Property Details

Brochure Descriptions

Image Descriptions

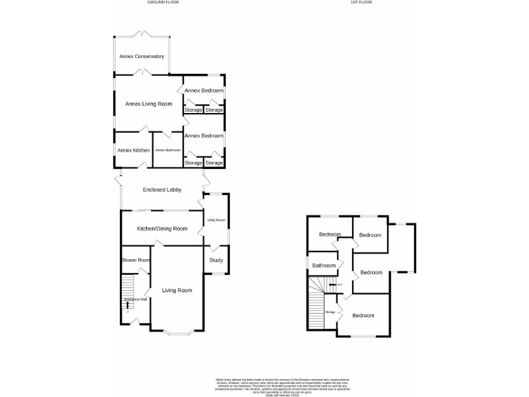
Floorplan Description

Rooms

Textual Property Features

Detected Visual Features

EPC Details

Nearby Schools

Nearest Bars And Restaurants

,,,,}

Nearest General Shops

,,}

Nearest Grocery shops

,,}

Nearest Supermarkets

,,}

Nearest Religious buildings

,,}

Nearest Medical buildings

,,,}

Nearest Leisure Facilities

,,,,}

Nearest Tourist attractions

,,}

Nearest Train stations

,,,,}

Nearest Bus stations and stops

,,,,}

Nearest Hotels

,,}

Tags

Local Market Stats

Similar Properties

Meta

High Res Images

Compatible Images

Low res Images

Thumbnails

Raw Images

High Res Floorplan Images

Compatible Floorplan Images

Low res Floorplan Images

FloorplanImages Thumbnail

Raw Floorplan Images