KT19 8RD - 3 bed victorian three bedroom home in Epsom And Ewell, KT19…

View on Property Piper

3 bedroom semi-detached house for sale in Upper Court Road, Epsom, KT19

Summary - Upper Court Road KT19 8RD

3 bed 1 bath Semi-Detached

Compact character home with garden close to Epsom town facilities.
3 bedrooms and two reception rooms ideal for small family living
Victorian features: bay windows and original fireplaces
Double-glazed windows and mains gas central heating present
Freehold and chain free for quicker completion
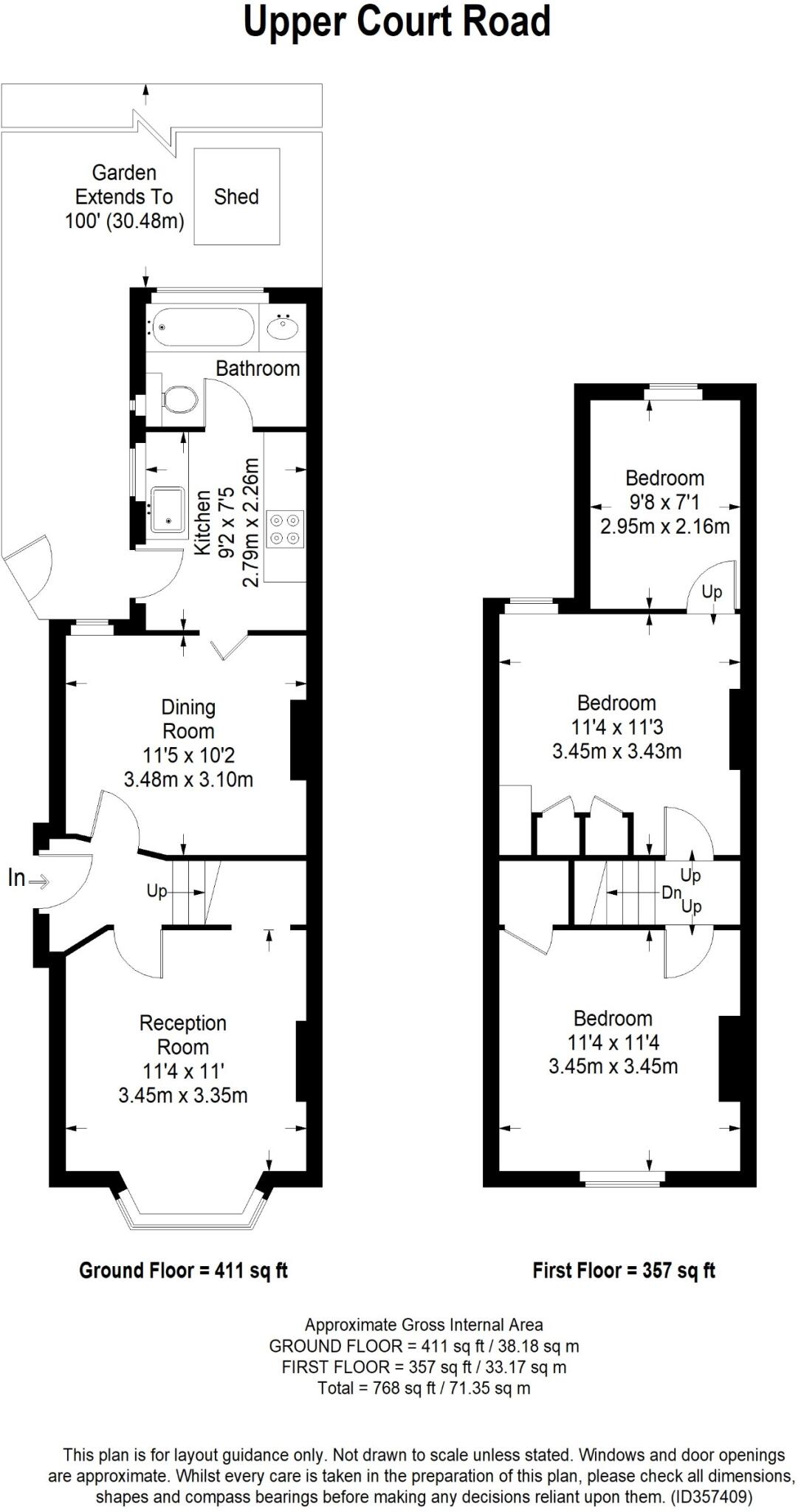
Small overall size: approximately 768 sq ft
Requires modernization: kitchen, bathroom, decor and exterior
Cavity walls likely uninsulated; EPC rating D
Medium flood risk and local area records higher crime levels
This Victorian semi-detached house offers three bedrooms, two reception rooms and front and rear gardens on a decent plot in KT19. The property retains period features such as bay windows and fireplaces, and benefits from double glazing, mains gas central heating and a loft with access. Its compact 768 sq ft footprint suits a small family or couple seeking a character home close to Epsom town centre.

The layout includes a lounge and dining room, kitchen with basic fitted units and a single bathroom. Practical details: freehold tenure, chain free sale, EPC D and fast broadband availability. Local schools rated Good–Outstanding are within reach, and shops and bus links are nearby for everyday convenience.

Buyers should note the house requires modernization throughout—decor, kitchen and bath are dated and the exterior and gardens need attention. The cavity walls were built without insulation (assumed) so energy-efficiency improvements may be needed. There is a medium flood risk for the area and the wider locale records higher crime levels; these are important considerations for family buyers.

Overall this is a compact, period family home with clear short-term comfortable use and longer-term potential for improvement. It will suit buyers prepared to invest time and budget to update services, cosmetic finishes and garden areas to unlock better value.

Property Details

Image Descriptions

Floorplan Description

Rooms

Textual Property Features

Target Audience

AI Tags

Detected Visual Features

EPC Details

Nearby Schools

Nearest Bars And Restaurants

,,,,}

Nearest General Shops

,,}

Nearest Grocery shops

,,}

Nearest Supermarkets

,,}

Nearest Religious buildings

,,}

Nearest Medical buildings

,,,}

Nearest Airports

,,}

Nearest Leisure Facilities

,,,,}

Nearest Tourist attractions

,,}

Nearest Train stations

,,,,}

Nearest Bus stations and stops

,,,,}

Nearest Hotels

,,}

Tags

Local Market Stats

AirBnB Data

Similar Properties

Meta

High Res Images

Compatible Images

Low res Images

Thumbnails

Raw Images

High Res Floorplan Images

Compatible Floorplan Images

Low res Floorplan Images

FloorplanImages Thumbnail

Raw Floorplan Images