Long-term income with tenant in place, garage and rear garden for portfolio growth.
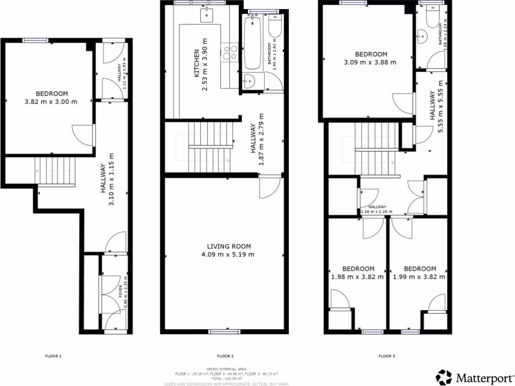
4 bedrooms across three storeys with private rear garden
Private garage parking plus off-street forecourt parking
Long-term tenant in situ, current gross income £8,400 pa
Requires modernization and updating to increase rent or value
Freehold tenure; average overall size, compact room proportions
Located in a very deprived local area — weaker capital growth risk
Buyers’ premium applies on purchase — check sale terms
Full Let Property Pack available for tenancy and income details
This three-storey mid-terrace property on Dundas Street is offered as a buy-to-let opportunity with a long-term tenant in situ. The freehold 4-bedroom layout, private rear garden and separate garage parking provide practical rental appeal and steady income potential. Annual gross rental currently £8,400; tenant has occupied the property for several years and indicates intention to remain.
The house requires modernization and some updating to maximise rental rate or conversion potential. Internal condition and exact footprint should be verified by inspection; images and summary suggest mid-20th-century utilitarian construction with compact rooms and standard ceiling heights. The area is classified as very deprived, which affects capital growth prospects but can support demand for affordable rental accommodation.
This property will suit investors or developers targeting yield and near-term cashflow rather than an owner-occupier seeking a turnkey family home. A buyers’ premium applies to the sale, and full tenancy details and a Let Property Pack are available to assess covenant strength and future re-letting scenarios. Buyers should factor in refurbishment costs and local market dynamics before purchase.
3 bedroom flat for sale in Canavan Park, Falkirk, FK2 — £125,000 • 3 bed • 1 bath • 721 ft²
3 bedroom end of terrace house for sale in 22 Queen Street, Grangemouth, FK3 9AU, FK3 — £199,995 • 3 bed • 1 bath • 959 ft²
2 bedroom terraced house for sale in 57 Newbiggin Road, Grangemouth, FK3 — £105,000 • 2 bed • 1 bath • 714 ft²
2 bedroom terraced house for sale in Bensfield Drive, Larbert, Stirlingshire, FK2 — £165,000 • 2 bed • 1 bath • 614 ft²
4 bedroom semi-detached house for sale in Hamilton Road, Grangemouth, FK3 — £175,000 • 4 bed • 2 bath • 1033 ft²
2 bedroom flat for sale in Crookston Court, Larbert, Stirlingshire, FK5 — £117,499 • 2 bed • 1 bath • 517 ft²






















































































































































