Characterful countryside home with large garden and double garage.
Converted barn with vaulted ceilings and exposed timber beams
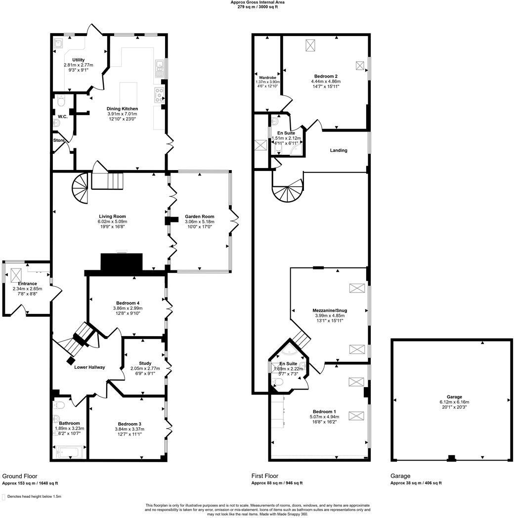
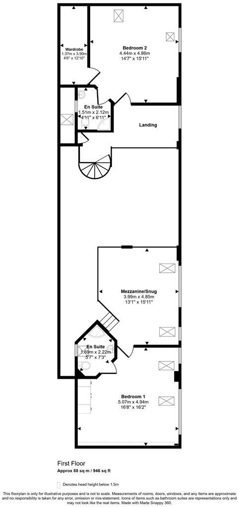
An impressive barn conversion set in the heart of sought-after Hoby, offering vaulted ceilings, exposed beams and flexible living across a generous footprint. The open-plan living room with a mezzanine/snug and bespoke Amdega garden room creates dramatic, light-filled social space for family life and entertaining. The property sits on a large plot with mature, well-maintained gardens, patio areas and far-reaching views across neighbouring farmland.
Accommodation includes four double bedrooms, three bathrooms, a large rustic dining kitchen with granite worktops and an entrance porch that makes a welcoming, practical arrival space. Practical extras include a double garage with power and lighting, ample driveway parking and useful undercroft storage. The layout provides distinct zones for family living, home working and quieter bedrooms with French doors to the garden.
Important practical points: heating is oil-fired with a boiler and radiators, which can mean higher running costs compared with mains gas; council tax is described as quite expensive. The property was converted/constructed in the late 1990s/early 2000s and buyers should commission their own surveys and checks on services and structural detail. No flood risk is recorded and the village location benefits from very low crime, good broadband and easy access to nearby schools and commuter routes.
This home will suit buyers seeking characterful rural living with modern comforts — families wanting space, couples who entertain or buyers seeking a stylish countryside base within easy reach of Melton Mowbray, Leicester and Loughborough.
4 bedroom barn conversion for sale in Orchard Barn, Billesdon, Leicestershire, LE7 — £850,000 • 4 bed • 3 bath • 2802 ft²
3 bedroom barn conversion for sale in Belvoir Road, Redmile, Nottingham, NG13 — £735,000 • 3 bed • 2 bath • 2276 ft²
5 bedroom detached house for sale in Outwoods Lane, Coleorton, LE67 — £850,000 • 5 bed • 2 bath • 2785 ft²
4 bedroom detached house for sale in Barn Conversion in Nether Broughton, LE14 3EZ, LE14 — £800,000 • 4 bed • 3 bath • 3100 ft²
5 bedroom barn conversion for sale in River Lane, Kilby, Leicestershire, LE18 — £1,400,000 • 5 bed • 3 bath • 4520 ft²
3 bedroom bungalow for sale in Church Lane, Saxelbye, Melton Mowbray, Leicestershire, LE14 — £750,000 • 3 bed • 3 bath • 1880 ft²










































































































































