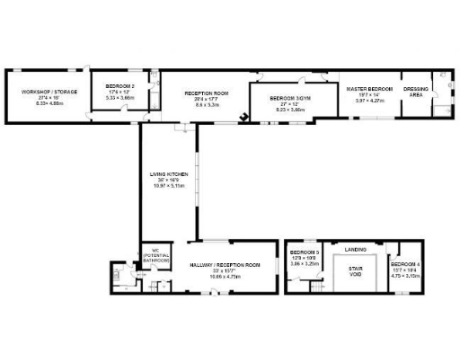
**Property Highlights:**
- Stunning barn conversion completed in 2018
- 5 bedrooms (including a master suite with dressing room and en-suite)
- 3 bathrooms, with potential for additional bathroom in utility space
- Expansive open-plan living kitchen with integrated appliances and bi-fold doors
- Large private plot of 2.2 acres featuring formal gardens and a paddock
- Spacious workshop/store with conversion potential
- Driveway and large garage, plus low crime rural setting
Nestled in the charming village of Kilby, this remarkable barn conversion perfectly balances luxurious living with the serene charm of the countryside. Spanning over 4,520 square feet, it boasts an elegant reception hall, expansive open-plan living areas, and five generously-sized bedrooms, making it ideal for families or those seeking peaceful retreat. The flowing layout features large windows and bi-fold doors that invite natural light and picturesque views of surrounding greenery, creating an airy, inviting atmosphere.
The property is poised for potential enhancements, with existing plumbing for a bathroom in the utility room and a spacious workshop that could be transformed into additional living space (subject to planning). The vast grounds include well-maintained gardens, a paddock for recreational use, and ample parking for visitors, perfect for entertaining or equestrian pursuits. With schools and village amenities nearby, and only seven miles south of Leicester, this home offers both tranquility and convenience. Don’t miss the chance to own this exceptional property that combines modern comforts with the beauty of rural living; such opportunities in this idyllic setting won’t last long.
4 bedroom detached house for sale in Walton Road, Kimcote, LE17 — £795,000 • 4 bed • 3 bath • 3560 ft²
4 bedroom barn conversion for sale in Lodge Farm Barns, Fleckney, LE8 — £740,000 • 4 bed • 2 bath • 2290 ft²
4 bedroom barn conversion for sale in Seymour Road, Burton-On-The-Wolds, LE12 — £550,000 • 4 bed • 4 bath • 1644 ft²
5 bedroom detached house for sale in Church Barn, Main Street, Blaston, Market Harborough, LE16 — £1,200,000 • 5 bed • 3 bath • 4370 ft²
4 bedroom detached house for sale in Top Yard Barn, Great Bowden, LE16 — £1,400,000 • 4 bed • 3 bath • 3390 ft²
6 bedroom detached house for sale in Seagrave Road, Thrussington, LE7 — £1,195,000 • 6 bed • 4 bath • 3662 ft²










































































