Completed 2021 with high-spec fixtures and underfloor heating
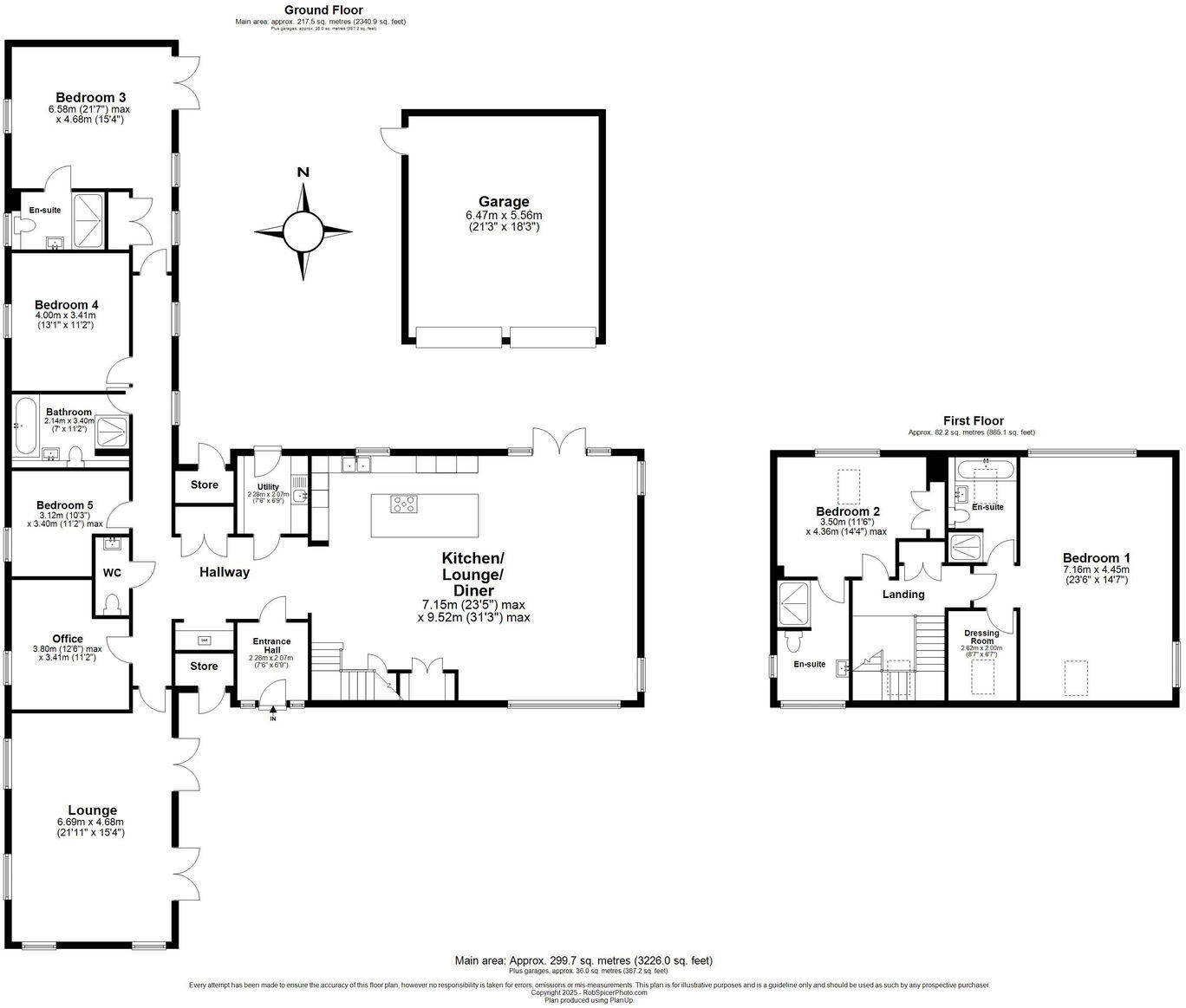
This impressive barn-style detached home completed in 2021 delivers generous living space and high-spec finishes across an adaptable layout. The open-plan kitchen/living area, separate lounge and generous glazing create bright, sociable ground-floor accommodation that can be used for one-level living if required. Underfloor heating, vaulted ceilings, exposed beams and integrated Siemens appliances elevate everyday comfort and style.
Five double bedrooms include a large first-floor primary suite with walk-in wardrobe and four-piece en suite; three further en suites plus a family bathroom keep morning routines smooth for busy households. The plot is a strong practical selling point: a private, low-maintenance rear garden with outdoor kitchen and seating, plus driveway parking and a double garage (currently used as a gym) with visitor spaces on the gated development’s communal courtyard.
Location suits buyers seeking quiet countryside life with reasonable commuter links: Roxton village amenities are nearby and St Neots/Bedford are within easy drive for wider services and mainline stations. Note practical details honestly: the property uses LPG boiler heating, has average mobile and broadband speeds, and a c.£360pa resident management/service charge for the development. The hamlet setting and gated five-home scheme will particularly appeal to families and executive buyers wanting space, privacy and modern specification.
4 bedroom barn conversion for sale in Wychtree Farm, Keysoe, MK44 — £850,000 • 4 bed • 3 bath • 3300 ft²
4 bedroom barn conversion for sale in Church End, Renhold, Bedfordshire, MK41 — £825,000 • 4 bed • 5 bath • 2106 ft²
4 bedroom detached house for sale in Tawny Barn, Green End, Bedford, MK44 — £750,000 • 4 bed • 3 bath • 2340 ft²
4 bedroom detached house for sale in Top Farm Barns, Wyboston, Bedford, MK44 — £1,100,000 • 4 bed • 3 bath • 2800 ft²
3 bedroom detached house for sale in Bedford Road, Gt Barford, MK44 — £900,000 • 3 bed • 2 bath • 3483 ft²
3 bedroom barn conversion for sale in Thurleigh Road, Bolnhurst, MK44 — £475,000 • 3 bed • 2 bath • 1438 ft²


































































































































































