Compact family home with garden and included kitchen upgrade.
- New-build detached house with four bedrooms
- Included kitchen upgrades worth £1,500
- Compact footprint: approximately 965 sq ft total
- Small rear garden and off-street parking
- Freehold tenure; EPC and council tax TBC
- Area classed as deprived; local renting population high
- Broadband fast; mobile signal average
- Council tax and some upgrades may incur extra costs
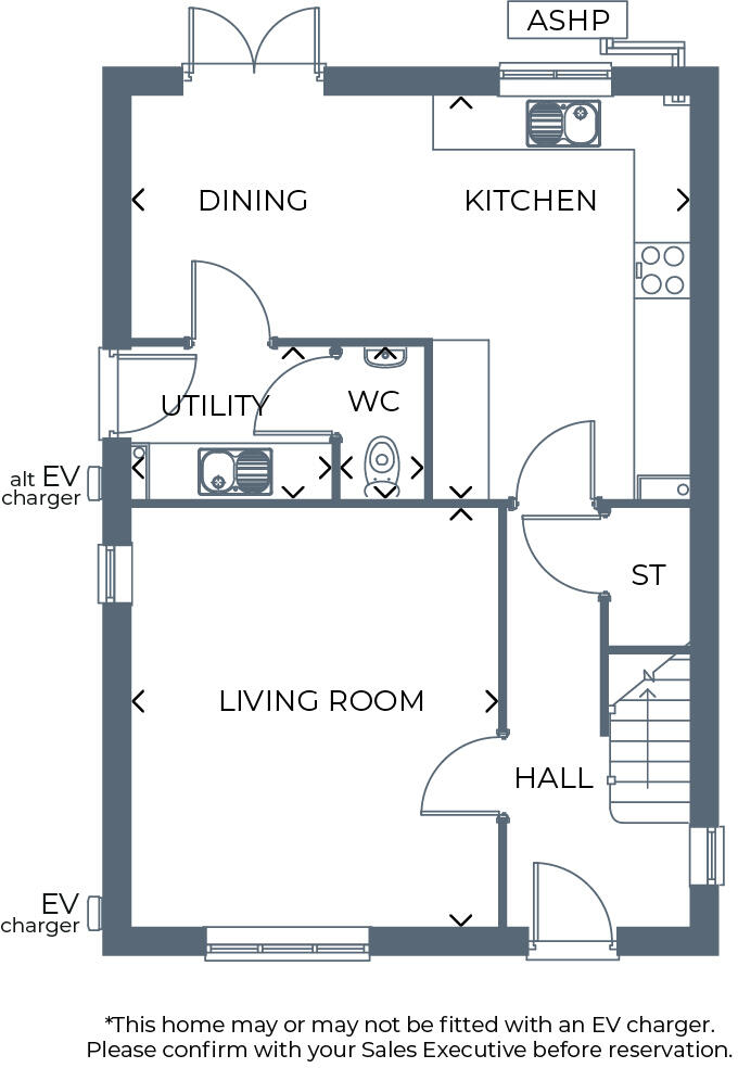
A contemporary new-build detached family home on the Lyons Edge development, the Dalkey offers four bedrooms and flexible living across two storeys. The ground floor has a large living room and an open kitchen-dining area with French doors onto a small rear garden; a utility and ground-floor WC add practical convenience. A modest £1,500 kitchen upgrade is included.
At about 965 sq ft the house is compact for a four-bedroom detached, but well planned for family use. The main bedroom is served by an en-suite layout in the sales literature and there are three further bedrooms plus a family bathroom. Off-street parking and a small front garden provide low-maintenance outside space.
Location suits buyers who need good road links to Durham and Sunderland (around 20 minutes by car), local shops and a Good-rated primary school within walking distance. Broadband speeds are fast; mobile signal and crime levels are average. The area is classed as deprived locally and the wider community profile indicates many renting households, so buyers should consider longer-term resale and rental prospects carefully.
Practical points: the property is freehold and new build, with EPC and council tax band TBC. Plot and room sizes are modest — viewings recommended to judge space — and some optional upgrades may be at additional cost.
4 bedroom detached house for sale in Windsor Drive,
South Hetton,
DH6 2UU, DH6 — £239,995 • 4 bed • 1 bath • 944 ft²
4 bedroom detached house for sale in Windsor Drive,
South Hetton,
DH6 2UU, DH6 — £239,995 • 4 bed • 1 bath • 965 ft²
4 bedroom detached house for sale in Colliery Road,
Bearpark,
Durham,
DH7 7AU, DH7 — £276,995 • 4 bed • 1 bath • 965 ft²
3 bedroom detached house for sale in Windsor Drive,
South Hetton,
DH6 2UU, DH6 — £207,995 • 3 bed • 1 bath • 775 ft²
3 bedroom semi-detached house for sale in Windsor Drive,
South Hetton,
DH6 2UU, DH6 — £167,995 • 3 bed • 1 bath • 748 ft²
2 bedroom semi-detached house for sale in Windsor Drive,
South Hetton,
DH6 2UU, DH6 — £111,996 • 2 bed • 1 bath • 658 ft²






















































